リッシュビル3階の賃貸情報
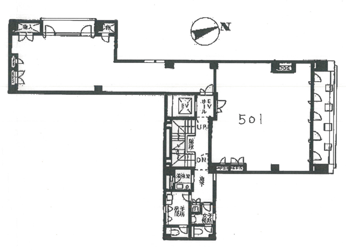
28.72 坪 (94.88m²)
※このサイトに記載がある賃貸条件は、敷金・保証金などの預かり金を除き、別途消費税がかかります。
リッシュビルの建物概要
設備詳細
| 空調 | 個別空調 |
|---|---|
| トイレ | - |
| 床仕様 | OA対応床(フリーアクセス) |
| エレベータ | 1 基 |
| 駐車場設備 | - |
| その他 | 機械警備 / 24時間利用可 / 光ファイバー / 新耐震基準 |
リッシュビル3階の賃貸オフィス・事務所に関するお問い合わせ
リッシュビルについて
リッシュビルは、中央区日本橋2丁目に位置する、アクセスの良さと高いグレードを兼ね備えた賃貸オフィスビルです。本ビルは、東京の経済と文化の中心地にあることから、企業の事務所移転や新規オフィス立地に最適な環境を提供します。以下では、リッシュビルの特徴、立地、設備について、その魅力を詳しくご紹介します。 【立地の特徴】 リッシュビルの最大の魅力は、その立地にあります。日本橋駅から徒歩1分、東京駅からは徒歩5分という非常に便利な位置にありながら、中央通りや永代通りから一本奥に入った場所に位置するため、静かで落ち着いた環境を享受できます。これにより、都心の喧騒から離れた落ち着いたオフィス環境を求める企業にとって理想的な場所となっています。 【設備の特徴】 リッシュビルは、1機のエレベーターを備えていますが、このビルの魅力は設備の先進性よりも、その伝統と文化的な価値にあります。耐震構造としても安心の基準を満たしており、安定したビジネス運営を支えます。共用部にはお手洗い等が設置されており、オフィスレイアウトを柔軟に行うことが可能です。 【ビジネスにおける利点】 リッシュビルは、江戸時代から続く東京中央区日本橋の歴史的背景を有し、伝統と新時代の融合した独特な文化的空間を提供します。ビジネスの場として、歴史と伝統に裏打ちされた信頼感を持ち合わせる一方で、現代のビジネスニーズにも応える立地と環境を備えています。このように、リッシュビルは伝統とモダニティが共存する環境で、堅実にビジネスを展開したい企業にとって頼もしいパートナーとなり得ます。 リッシュビルは、その地理的利便性、落ち着いた環境、そして歴史と文化を感じさせる建築として、企業のオフィスとしての魅力が高いビルです。企業が新たなビジネスの舞台として選ぶには、優れた選択肢の一つと言えるでしょう。
リッシュビルのこだわり
自分で探すより問い合わせる方が早いことがあります
WEB非公開物件があるから
オーナー様のご希望により「WEBでは非公開」にしている物件があります。 それらはWEBでいくら検索しても見つかりません。 先ずは条件などお知らせ頂けましたら非公開物件含め ピッタリのオフィスをご提案させて頂きます。 無理なお勧めはしておりませんので、お気軽にお問い合わせください。
対面でのご相談も受け付けております
ご来店も歓迎です
オフィス移転は社内・社外ともに非公開に行われることが殆どです。そのためアットオフィスでは、基本的に訪問によるコンサルティングを行っておりますが、ご来店の相談も歓迎です。お一人おひとりに親身にご対応させて頂きたい為、要予約とさせて頂いております。ご来店の際は先ずは下記よりご予約下さい。
近くのエリアで探してみる
八重洲/日本橋/三越前エリアでリッシュビルに似た条件の物件
読込中...
リッシュビルと同じ最寄駅の物件
読込中...
| 取扱様態 | 仲介 |
|---|---|
| 取扱会社 | 株式会社 アットオフィス |