昭和ビルの賃料条件
| 階数 | 坪数 | 賃料 + 共益費 | 敷金/礼金敷金 礼金 | 検討 |
|---|---|---|---|---|
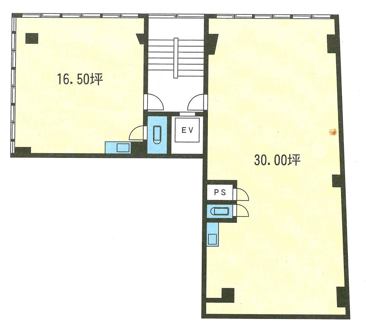
| 3階 | 30坪 (99.17m²) | 330,000円 (坪:11,000 円) | 8ヶ月 無8ヶ月/無 | |
| 4階 | 16.5坪 (54.55m²) | 214,500円 (坪:13,000 円) | 8ヶ月 無8ヶ月/無 |
※このサイトに記載がある賃貸条件は、敷金・保証金などの預かり金を除き、別途消費税がかかります。
物件情報
設備詳細
| 空調 | 個別空調 |
|---|---|
| トイレ | 男女共用トイレ・室内 |
| 床仕様 | OA対応床(フリーアクセス) |
| エレベータ | 1 基 |
| 駐車場設備 | - |
| その他 | 光ファイバー / 24時間利用可 / 機械警備 / 東京賃料が坪11000円以下 |
昭和ビルの賃貸オフィス・事務所に関するお問い合わせ
昭和ビルについて
秋葉原駅からわずか徒歩3分という絶好の立地に誇りを持つ昭和ビルは、千代田区神田和泉町に位置し、昭和通りに面した視認性に優れたオフィス賃貸ビルです。このビルは、1976年に竣工されたものの、2007年にリニューアル工事を行い、現代のオフィスニーズに応える施設として生まれ変わりました。 昭和ビルの最大の魅力は、その立地と設備の充実さにあります。天井高2.65mの広々とした空間は、働く人々にとって快適な環境を提供し、創造性と生産性を高めます。各貸室には個別空調が完備されており、働く人々の快適性を一層高めています。また、光ファイバーの引き込みが可能であり、高速インターネット環境も整っています。セキュリティ面では、機械警備システムにより24時間体制で安全が守られており、ビジネスにおける安心感を提供します。 昭和ビルは、地上5階建てで、1フロアあたり約50坪の広さがあり、小規模から中規模の企業に最適なオフィススペースを提供しています。募集時期やフロアによっては、約30坪のA号室と約17坪のB号室といった分割区画もあり、企業のニーズに合わせた柔軟なオフィスプランを実現します。 周辺環境もビジネスにおいて重要な要素であり、昭和ビルはその点でも魅力的です。周辺には多数の飲食店が点在し、ランチやアフター5の利用に困ることはありません。また、コンビニや銀行など日常的に必要となる施設も充実しており、オフィス周辺の利便性は抜群です。 交通アクセスにおいても、秋葉原駅から徒歩3分という立地は、従業員や顧客の利便性を大きく高めます。さらに、岩本町駅、末広町駅も徒歩圏内にあり、都内各地へのアクセスも容易です。 昭和ビルは、その立地、設備、周辺環境のすべてにおいて、ビジネスの成功をサポートする理想的なオフィス空間を提供します。このビルは、企業の成長を見据えた長期的なビジョンを持つビジネスオーナーにとって、最適な選択肢であると言えるでしょう。
昭和ビルのこだわり
自分で探すより問い合わせる方が早いことがあります
WEB非公開物件があるから
オーナー様のご希望により「WEBでは非公開」にしている物件があります。 それらはWEBでいくら検索しても見つかりません。 先ずは条件などお知らせ頂けましたら非公開物件含め ピッタリのオフィスをご提案させて頂きます。 無理なお勧めはしておりませんので、お気軽にお問い合わせください。
対面でのご相談も受け付けております
ご来店も歓迎です
オフィス移転は社内・社外ともに非公開に行われることが殆どです。そのためアットオフィスでは、基本的に訪問によるコンサルティングを行っておりますが、ご来店の相談も歓迎です。お一人おひとりに親身にご対応させて頂きたい為、要予約とさせて頂いております。ご来店の際は先ずは下記よりご予約下さい。
募集終了のテナント区画
| 階数 | 坪数 | 賃料 + 共益費 | 敷金/礼金敷金 礼金 | 検討 |
|---|---|---|---|---|
| 1階 | 41坪 (135.54m²) | 募集終了 | - | - |
| 1階 | 40坪 (132.23m²) | 募集終了 | - | - |
| 2階 | 30坪 (99.17m²) | 募集終了 | - | - |
| 2階 | 16.5坪 (54.55m²) | 募集終了 | - | - |
| 3階 | 46.5坪 (153.71m²) | 募集終了 | - | - |
| 3階 | 16.5坪 (54.54m²) | 募集終了 | - | - |
| 3階 | 30坪 (99.17m²) | 募集終了 | - | - |
| 3階 | 13.5坪 (44.63m²) | 募集終了 | - | - |
| 4階 | 30坪 (99.17m²) | 募集終了 | - | - |
| 4階 | 13.5坪 (44.63m²) | 募集終了 | - | - |
| 5階 | 16.5坪 (54.54m²) | 募集終了 | - | - |
読込中...
神田/秋葉原エリアで昭和ビルに似た条件の物件
読込中...
| 取扱様態 | 仲介 |
|---|---|
| 取扱会社 | 株式会社 アットオフィス |