※このサイトに記載がある賃貸条件は、敷金・保証金などの預かり金を除き、別途消費税がかかります。
物件情報
設備詳細
| 空調 | 個別空調 |
|---|---|
| トイレ | 男女別トイレ |
| 床仕様 | - |
| エレベータ | 1 基 / エレベーター有 |
| 駐車場設備 | - |
| その他 | 光ファイバー / 24時間利用可 / 機械警備 / 大通り面する / 新耐震基準 |
池袋グランディアビルの賃貸オフィス・事務所に関するお問い合わせ
池袋グランディアビルについて
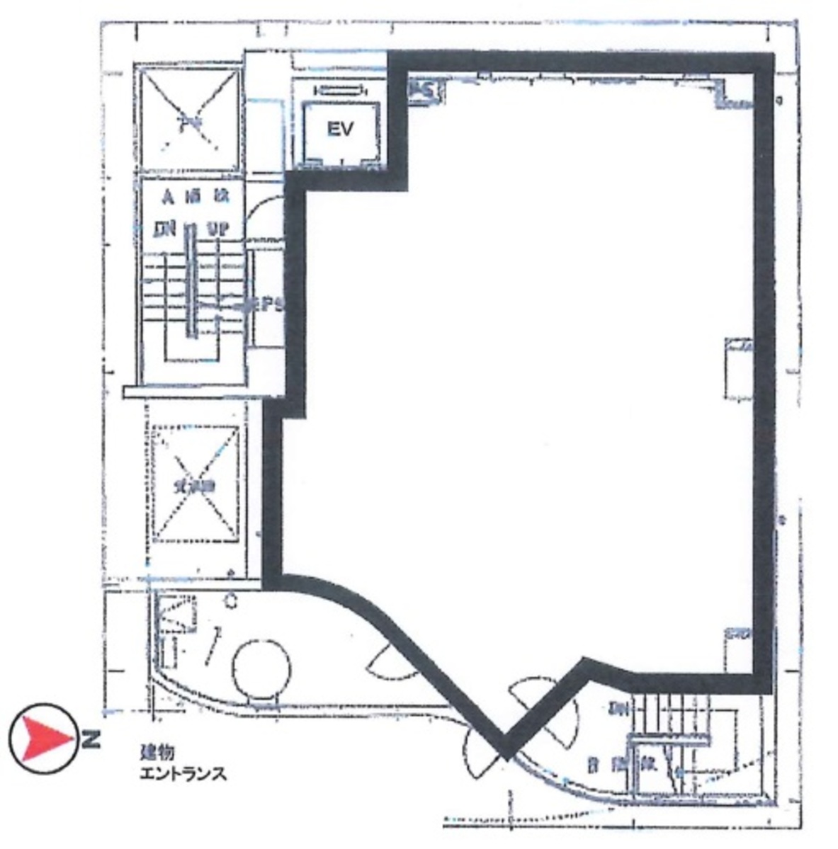
## 池袋グランディアビルのご紹介 ### 魅力的な立地とアクセスの良さ 池袋グランディアビルは、豊島区池袋2丁目に位置し、池袋駅から徒歩10分の距離にあります。JR山手線、埼京線、東京メトロ丸の内線など、複数の主要路線からアクセスが可能で、通勤や商談の際に非常に便利です。劇場通り沿いに立地しており、視認性の高いファサードが特徴です。来客時の案内もスムーズに行えます。 ### 優れた室内レイアウト 基準階面積は約40坪で、長方形に近い間取りが特徴です。このため、オフィスレイアウトが非常にしやすく、効率的にスペースを活用できます。特に、通り側の壁が湾曲しており、独特のデザインが際立ちます。窓面が広く、自然光がたっぷり差し込み、明るく開放的な空間を提供します。 ### 充実した設備とセキュリティ 池袋グランディアビルは1986年に竣工し、地上9階建ての建物です。エレベーターは1基設置されており、各フロアへのアクセスもスムーズです。新耐震基準を満たしており、安心してご利用いただけます。トイレは男女別で、貸室内に設置されているため、プライバシーも確保されています。また、空調は個別空調システムを採用しており、快適なオフィス環境を実現します。 セキュリティ面も充実しており、機械警備システムを導入しています。安心して業務に集中できる環境が整っています。 ### 周辺環境 池袋グランディアビルの周辺には、飲食店やコンビニエンスストアが多数点在しており、非常に便利です。徒歩1分の距離には赤札堂池袋ジョイシー店があり、日常の買い物にも困りません。また、ファミリーマート池袋二丁目店やキッチンオリジン池袋店も至近にあり、ランチタイムやちょっとした買い物にも便利です。 ### ビジネスにおける利点 池袋グランディアビルは、その優れた立地とアクセスの良さ、充実した設備、そして安心のセキュリティにより、ビジネスを展開する上で非常に魅力的なオフィスビルです。特に、多くの路線が交わる池袋駅から徒歩圏内という点は、ビジネスの拠点としての大きな強みとなります。また、周辺に飲食店やコンビニが充実しているため、社員の利便性も高く、働きやすい環境が整っています。 ### 最後に 池袋グランディアビルは、その魅力的な立地と充実した設備により、多くのビジネスニーズに対応できるオフィスビルです。明るく開放的な空間で、効率的なレイアウトが可能なため、業務の効率化にも寄与します。ぜひ一度、現地をご覧いただき、その魅力をご体感ください。ご検討いただけることを心よりお待ちしております。
自分で探すより問い合わせる方が早いことがあります
WEB非公開物件があるから
オーナー様のご希望により「WEBでは非公開」にしている物件があります。 それらはWEBでいくら検索しても見つかりません。 先ずは条件などお知らせ頂けましたら非公開物件含め ピッタリのオフィスをご提案させて頂きます。 無理なお勧めはしておりませんので、お気軽にお問い合わせください。
対面でのご相談も受け付けております
ご来店も歓迎です
オフィス移転は社内・社外ともに非公開に行われることが殆どです。そのためアットオフィスでは、基本的に訪問によるコンサルティングを行っておりますが、ご来店の相談も歓迎です。お一人おひとりに親身にご対応させて頂きたい為、要予約とさせて頂いております。ご来店の際は先ずは下記よりご予約下さい。
募集終了のテナント区画
| 階数 | 坪数 | 賃料 + 共益費 | 敷金/礼金敷金 礼金 | 検討 |
|---|---|---|---|---|
| 1階 | 26.19坪 (86.55m²) | 募集終了 | - | - |
| 2階 | 34.2坪 (113m²) | 募集終了 | - | - |
| 4階 | 40.52坪 (133.96m²) | 募集終了 | - | - |
| 6階 | 40.52坪 (133.95m²) | 募集終了 | - | - |
| 7階 | 40.52坪 (133.95m²) | 募集終了 | - | - |
| 8階 | 40.52坪 (133.95m²) | 募集終了 | - | - |
| 9階 | 40.52坪 (133.95m²) | 募集終了 | - | - |
| 9階 | 40.52坪 (133.95m²) | 募集終了 | - | - |
読込中...
池袋/大塚/目白エリアで池袋グランディアビルに似た条件の物件
読込中...
| 取扱様態 | 仲介 |
|---|---|
| 取扱会社 | 株式会社 アットオフィス |