NSビル6階の賃貸情報
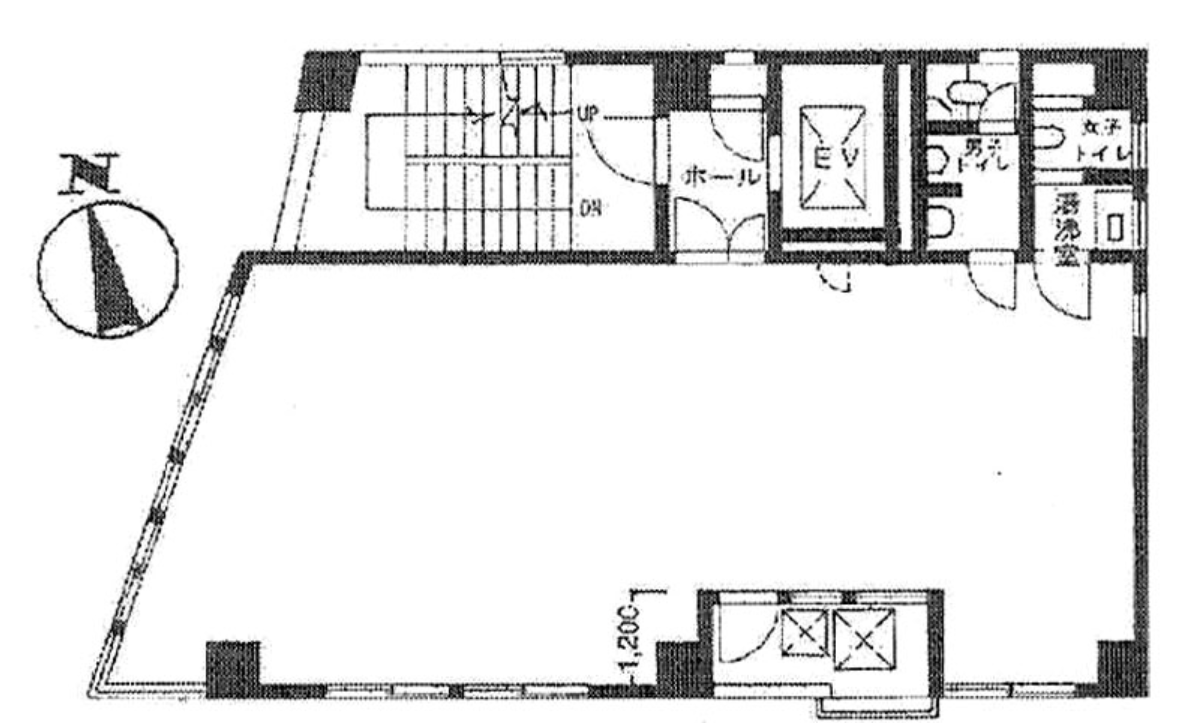
22.66 坪 (74.94m²)
※このサイトに記載がある賃貸条件は、敷金・保証金などの預かり金を除き、別途消費税がかかります。
NSビルの建物概要
設備詳細
| 空調 | 個別空調 |
|---|---|
| トイレ | 男女別トイレ室内 |
| 床仕様 | - |
| エレベータ | 1 基 |
| 駐車場設備 | - |
| その他 | 東京賃料が坪11000円以下 |
NSビル6階の賃貸オフィス・事務所に関するお問い合わせ
NSビルについて
NSビルは新川2丁目、中央区の賑やかなエリアに位置しているオフィスビルです。このビルは、茅場町駅からも徒歩圏内にあり、アクセスの良さが特徴のひとつです。エレベーターは1機設置されており、テナントの移動の利便性を考慮しています。ワンフロア・ワンテナントの設計になっており、テナントはプライバシーと独立性を享受できます。このような構造は、企業のブランドイメージを構築しやすく、社内のコミュニケーションも円滑に行えるという利点があります。 一方、中城ビルは鍛冶橋通り沿いに位置し、八丁堀駅からは徒歩わずか1分という驚異の立地条件を誇ります。1982年に竣工されたこの耐震性オフィスビルは、長年に渡り安全性と快適性を提供してきました。トイレは男女別で、テナントの利便性を考慮した設計になっています。キリンビール本社の至近にあるため、飲食関連のビジネスにも最適な立地と言えるでしょう。中城ビルは、その立地と機能性を兼ね備えたビルとして、多様な企業に選ばれています。 NSビルと中城ビルは、それぞれ異なる特長を持つオフィスビルです。NSビルは、一つの階を一つのテナントが使用できるワンフロア・ワンテナントの特性を持ち、企業のプライバシーと独立性を重視する事業者に最適な選択肢です。また、中央区という東京のビジネス中心地に位置し、茅場町駅へのアクセスも良好です。 中城ビルは、その立地の良さが際立つビルであり、八丁堀駅からのアクセスの良さは、従業員や来客の利便性を高めます。耐震性に優れた建物として、安全なオフィス環境を提供しています。また、男女別トイレなど、テナントの快適性を考慮した設備が整っています。 これらのビルの特徴を踏まえ、ビジネスのニーズに合わせて選択することができます。NSビルはプライバシーと独立性を重視する企業に、中城ビルはアクセスの良さと安全性を求める企業に、それぞれ最適な選択肢となるでしょう。どちらのビルも、企業が成長し、発展するための強固な基盤を提供します。
自分で探すより問い合わせる方が早いことがあります
WEB非公開物件があるから
オーナー様のご希望により「WEBでは非公開」にしている物件があります。 それらはWEBでいくら検索しても見つかりません。 先ずは条件などお知らせ頂けましたら非公開物件含め ピッタリのオフィスをご提案させて頂きます。 無理なお勧めはしておりませんので、お気軽にお問い合わせください。
対面でのご相談も受け付けております
ご来店も歓迎です
オフィス移転は社内・社外ともに非公開に行われることが殆どです。そのためアットオフィスでは、基本的に訪問によるコンサルティングを行っておりますが、ご来店の相談も歓迎です。お一人おひとりに親身にご対応させて頂きたい為、要予約とさせて頂いております。ご来店の際は先ずは下記よりご予約下さい。
近くのエリアで探してみる
茅場町/新川/八丁堀エリアでNSビルに似た条件の物件
読込中...
NSビルと同じ最寄駅の物件
読込中...
| 取扱様態 | 仲介 |
|---|---|
| 取扱会社 | 株式会社 アットオフィス |