ナックスビルの賃料条件
| 階数 | 坪数 | 賃料 + 共益費 | 敷金/礼金敷金 礼金 | 検討 |
|---|---|---|---|---|
| 3階 | 29.95坪 (99.04m²) | 464,225円 (坪:15,500 円) | 6ヶ月 1ヶ月6ヶ月/1ヶ月 | |
| 9階 | 29.95坪 (99.04m²) | 494,175円 (坪:16,500 円) | 6ヶ月 1ヶ月6ヶ月/1ヶ月 |
※このサイトに記載がある賃貸条件は、敷金・保証金などの預かり金を除き、別途消費税がかかります。
物件情報
設備詳細
| 空調 | 個別空調 |
|---|---|
| トイレ | 男女別トイレ室内 |
| 床仕様 | - |
| エレベータ | 1 基 |
| 駐車場設備 | - |
| その他 | オートロック / 機械警備 / 24時間利用可 / 新耐震基準 |
ナックスビルの賃貸オフィス・事務所に関するお問い合わせ
ナックスビルについて
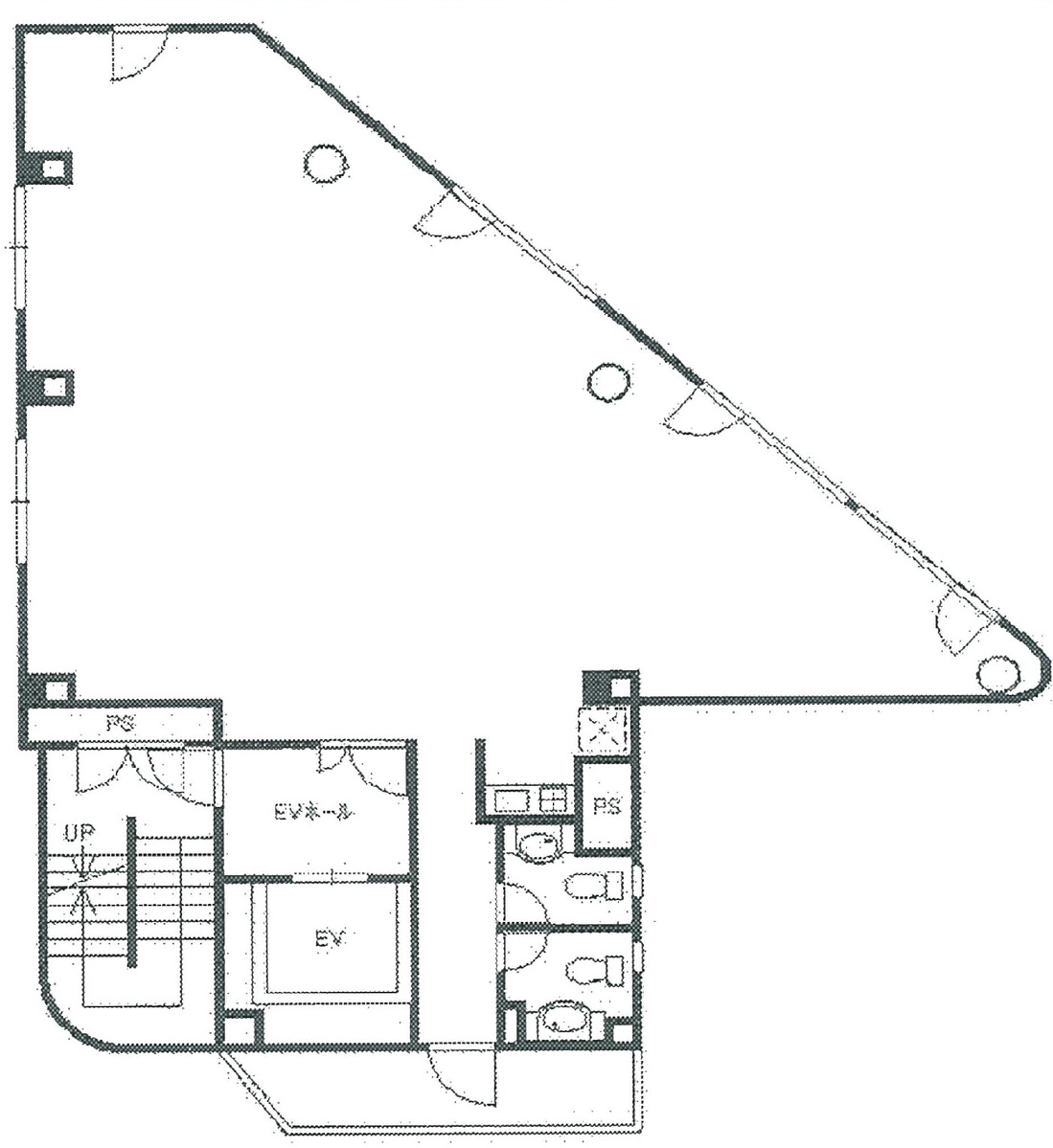
ナックスビルは、東京都中央区新川1丁目に位置する、1990年に竣工した賃貸オフィスビルです。地上9階建てで、基準階の面積は約29坪から30坪となっており、ビジネスの様々なニーズに対応できる柔軟性を備えています。この物件は新耐震基準に基づき施工されており、安心してご利用いただける耐震性能を有しています。 立地においては、ナックスビルは茅場町駅から徒歩2分という駅近の好立地にあり、八丁堀駅や水天宮前駅も徒歩圏内にあります。このため、交通の利便性が非常に高く、ビジネスの拠点として最適です。さらに、永代通りに近接していることから、ビルへのアクセスも容易であり、従業員や来客の方々にとっても非常に便利な立地条件を備えています。 設備面では、ナックスビルは24時間利用可能なオフィススペースを提供しており、機械警備システムやオートロックなどのセキュリティ設備も整っているため、安全性にも配慮されています。また、ビル内に1基のエレベーターが設置されており、男女別のトイレや各階に個別空調設備が完備されています。これにより、働く環境の快適性も確保されています。 ビルの内部構造においても、ナックスビルは三角形に近い室内構造を採用しており、窓面が広く明るい印象のオフィス空間を実現しています。このユニークな間取りは、クリエイティブなワークスペースを求めるテナントにとって魅力的なポイントとなるでしょう。 総じて、ナックスビルは立地、耐震性、設備、オフィス空間の質の面でバランスの取れた賃貸オフィス物件です。これらの特徴は、ビジネスの拠点としての利便性を高めるとともに、働く人々の快適性や安全性を確保しており、多様なビジネスニーズに対応できる環境を提供しています。
ナックスビルのこだわり
自分で探すより問い合わせる方が早いことがあります
WEB非公開物件があるから
オーナー様のご希望により「WEBでは非公開」にしている物件があります。 それらはWEBでいくら検索しても見つかりません。 先ずは条件などお知らせ頂けましたら非公開物件含め ピッタリのオフィスをご提案させて頂きます。 無理なお勧めはしておりませんので、お気軽にお問い合わせください。
対面でのご相談も受け付けております
ご来店も歓迎です
オフィス移転は社内・社外ともに非公開に行われることが殆どです。そのためアットオフィスでは、基本的に訪問によるコンサルティングを行っておりますが、ご来店の相談も歓迎です。お一人おひとりに親身にご対応させて頂きたい為、要予約とさせて頂いております。ご来店の際は先ずは下記よりご予約下さい。
募集終了のテナント区画
| 階数 | 坪数 | 賃料 + 共益費 | 敷金/礼金敷金 礼金 | 検討 |
|---|---|---|---|---|
| 8階 | 29.95坪 (99.01m²) | 募集終了 | - | - |
読込中...
近くのエリアで探してみる
茅場町/新川/八丁堀エリアでナックスビルに似た条件の物件
読込中...
| 取扱様態 | 仲介 |
|---|---|
| 取扱会社 | 株式会社 アットオフィス |