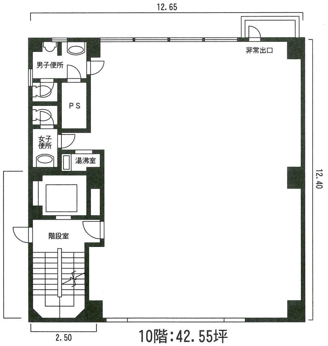
光和ビル10階の賃貸情報
42.55 坪 (140.66m²)
※このサイトに記載がある賃貸条件は、敷金・保証金などの預かり金を除き、別途消費税がかかります。
光和ビルの建物概要
設備詳細
| 空調 | 個別空調 |
|---|---|
| トイレ | - |
| 床仕様 | - |
| エレベータ | 1 基 |
| 駐車場設備 | - |
| その他 | 光ファイバー / 24時間利用可 / 機械警備 |
光和ビル10階の賃貸オフィス・事務所に関するお問い合わせ
光和ビルについて
光和ビルは、東京都中央区京橋2丁目に位置する、ビジネス利用に適したオフィス賃貸ビルです。このビルは、その立地、設計、設備の面で非常に魅力的な特徴を有しています。以下、光和ビルの特性を詳細に解説します。 ### 立地の利便性 光和ビルは、京橋駅から徒歩わずか2分という駅近の立地にあります。さらに、3駅以上を利用可能な好立地に位置しており、宝町駅まで徒歩1分、室町駅A6地上出口目の前にあり、エレベーターでのA7出口も近隣にございます。これらの地理的利点は、従業員や来訪者にとってのアクセスの容易さを保証し、ビジネスの機動性を向上させます。 ### 設計と設備 光和ビルは、使いやすさを重点に置いた設計が特徴です。無柱空間の採用により、オフィス内のレイアウトを自由自在に調整可能であり、効率的なオフィス環境の構築をサポートします。また、昭和通りに面しており、採光性に優れているため、明るく開放的な職場環境を提供します。 ビル内の設備も充実しており、男女別のトイレ、個別空調システム、機械警備、そして1機のエレベーターが完備されており、24時間利用可能です。これらの設備は、快適かつセキュアなオフィス環境の確保に寄与します。 ### 利点とビジネスへの影響 光和ビルの立地と設計、設備の特性は、テナント企業にとって大きな利点をもたらします。駅近という立地は、従業員の通勤の利便性を高めるだけでなく、ビジネスパートナーや顧客とのアクセスのしやすさを意味します。無柱空間の利用は、オフィスの柔軟性を高め、成長や変化するビジネスニーズに対応しやすくします。また、充実した設備は、日々の業務をサポートし、従業員の働きやすさを向上させることで、全体の生産性の向上に貢献します。 総じて、光和ビルは、その優れた立地、柔軟に対応可能なオフィス空間、そして快適かつ安全な環境を提供することで、テナント企業のビジネスの発展をサポートする理想的な選択肢です。
光和ビルのこだわり
自分で探すより問い合わせる方が早いことがあります
WEB非公開物件があるから
オーナー様のご希望により「WEBでは非公開」にしている物件があります。 それらはWEBでいくら検索しても見つかりません。 先ずは条件などお知らせ頂けましたら非公開物件含め ピッタリのオフィスをご提案させて頂きます。 無理なお勧めはしておりませんので、お気軽にお問い合わせください。
対面でのご相談も受け付けております
ご来店も歓迎です
オフィス移転は社内・社外ともに非公開に行われることが殆どです。そのためアットオフィスでは、基本的に訪問によるコンサルティングを行っておりますが、ご来店の相談も歓迎です。お一人おひとりに親身にご対応させて頂きたい為、要予約とさせて頂いております。ご来店の際は先ずは下記よりご予約下さい。
近くのエリアで探してみる
八重洲/日本橋/三越前エリアで光和ビルに似た条件の物件
読込中...
光和ビルと同じ最寄駅の物件
読込中...
| 取扱様態 | 仲介 |
|---|---|
| 取扱会社 | 株式会社 アットオフィス |