※このサイトに記載がある賃貸条件は、敷金・保証金などの預かり金を除き、別途消費税がかかります。
物件情報
設備詳細
| 空調 | 個別空調 |
|---|---|
| トイレ | 男女別トイレ室外 |
| 床仕様 | OA対応床(フリーアクセス) |
| エレベータ | 1 基 |
| 駐車場設備 | 機械式駐車場 |
| その他 | 新耐震基準 / 機械警備 |
白鹿茅場町ビルの賃貸オフィス・事務所に関するお問い合わせ
白鹿茅場町ビルについて
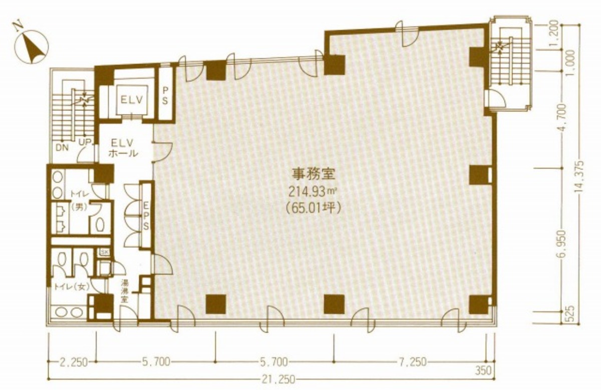
白鹿茅場町ビルは東京都中央区新川、ビジネスの中心地に誇りを持って佇む、1993年に竣工した地上9階建のオフィスビルです。このビルは、新耐震基準に則って建設された安心と安全を兼ね備えた物件であり、日々の業務を支える堅牢な基盤を提供します。白鹿茅場町ビルの最大の魅力は、その立地の利便性にあります。茅場町駅から徒歩5分、水天宮前駅から徒歩6分、そして八丁堀駅から徒歩9分と、複数の駅が利用可能で、東京メトロ東西線・日比谷線、東京メトロ半蔵門線、JR京葉線といった多方面へのアクセスが容易です。また、永代通りに面していることから、視認性も高く、ビジネスパートナーや顧客を迎える際のアクセスのしやすさも抜群です。 ビルの設備面では、基準階約65坪の広々としたオフィススペースが特徴で、ワンフロア・ワンテナントの使用が可能です。これにより、テナントは自社のビジョンに合わせたオフィスレイアウトを自由に設計することができ、効率の良いオペレーションを実現します。また、個別空調システムを完備しており、働く従業員の快適さを一年中保証します。天井高2600mmというゆとりのある空間設計は、開放感を提供し、創造性と生産性の向上に寄与します。 セキュリティ面では、機械警備システムを導入しており、ビル内外の安全を24時間体制で守ります。加えて、機械式の駐車場を24台分備えており、来訪者やテナントの方々にとって非常に便利です。ビルのエントランスホールは清潔感あふれる白を基調としており、訪れる人々を暖かく迎え入れます。 周辺環境もビルの魅力の一つです。ビルの近くには、コンビニ、スーパー、ドラッグストアがあり、日々の生活に必要なものを手軽に調達することができます。また、多様な飲食店が点在しており、ビジネスランチやアフター5の憩いの場にも困りません。さらに、日本橋方面へ足をのばせば、高島屋などのショッピング施設も楽しめ、仕事後のリラクゼーションタイムを豊かにします。 白鹿茅場町ビルは、その立地、設備、セキュリティ、周辺環境といった全方位でビジネスの成功をサポートするオフィスビルです。安全性と利便性を兼ね備えたこの物件は、あなたのビジネスを次のレベルへと導くための最適な選択肢となるでしょう。
自分で探すより問い合わせる方が早いことがあります
WEB非公開物件があるから
オーナー様のご希望により「WEBでは非公開」にしている物件があります。 それらはWEBでいくら検索しても見つかりません。 先ずは条件などお知らせ頂けましたら非公開物件含め ピッタリのオフィスをご提案させて頂きます。 無理なお勧めはしておりませんので、お気軽にお問い合わせください。
対面でのご相談も受け付けております
ご来店も歓迎です
オフィス移転は社内・社外ともに非公開に行われることが殆どです。そのためアットオフィスでは、基本的に訪問によるコンサルティングを行っておりますが、ご来店の相談も歓迎です。お一人おひとりに親身にご対応させて頂きたい為、要予約とさせて頂いております。ご来店の際は先ずは下記よりご予約下さい。
募集終了のテナント区画
| 階数 | 坪数 | 賃料 + 共益費 | 敷金/礼金敷金 礼金 | 検討 |
|---|---|---|---|---|
| 1階 | 25.15坪 (83.14m²) | 募集終了 | - | - |
| 2階 | 65.02坪 (214.93m²) | 募集終了 | - | - |
| 3階 | 65.01坪 (214.91m²) | 募集終了 | - | - |
| 5階 | 65.02坪 (214.93m²) | 募集終了 | - | - |
| 7階 | 65.02坪 (214.93m²) | 募集終了 | - | - |
読込中...
近くのエリアで探してみる
茅場町/新川/八丁堀エリアで白鹿茅場町ビルに似た条件の物件
読込中...
| 取扱様態 | 仲介 |
|---|---|
| 取扱会社 | 株式会社 アットオフィス |