※このサイトに記載がある賃貸条件は、敷金・保証金などの預かり金を除き、別途消費税がかかります。
物件情報
設備詳細
| 空調 | - |
|---|---|
| トイレ | 男女別トイレ室内 |
| 床仕様 | OA対応床(フリーアクセス) |
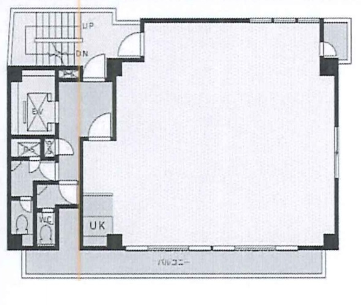
| エレベータ | 1 基 |
| 駐車場設備 | 空有 |
| その他 | 機械警備 / 24時間利用可 / 光ファイバー / 新耐震基準 |
DKサンビルの賃貸オフィス・事務所に関するお問い合わせ
DKサンビルについて
DKサンビルは、活気あふれる日本橋室町4丁目に位置するオフィス賃貸ビルで、ビジネスシーンに最適な立地を誇ります。1983年に新耐震基準に基づき建築されたこの物件は、鉄骨鉄筋コンクリート造で、安全性にも配慮された構造です。ビル内に駐車場が完備されており、エレベーターも1機設置されていますので、アクセスは非常にスムーズです。また、個別空調システムにより、快適なオフィス環境を実現しています。 立地面では、神田駅から徒歩3分、新日本橋駅からも徒歩3分という好立地にあり、大手町駅や三越前駅も徒歩圏内にあるため、都内へのアクセスも抜群です。この地域は、飲食店やコンビニ、銀行といったさまざまな施設が充実しており、ビジネスシーンだけでなく日常生活にも便利な環境です。 DKサンビルの特徴として、高速通信をサポートする光ファイバー環境が整っており、ビジネスの効率化を支えます。セキュリティ設備も万全で、24時間利用可能なため、時間を気にせず仕事に取り組むことが可能です。さらに、居抜き物件としてのオプションもあり、初期費用を抑えて新たなオフィス環境を構築することができます。 空間については、15から30坪の区画が用意されており、様々な規模の企業が自社に合った最適なオフィスを選択できます。トイレや給湯スペースが貸室内にあるため、プライバシーも保護されます。 DKサンビルは、安全性、アクセスの良さ、利便性を兼ね備えたオフィスビルです。快適なオフィス環境を求める企業にとって、理想的な選択肢となるでしょう。このビルで、新たなビジネスの成功への第一歩を踏み出しましょう。ご興味のある方は、ぜひお問い合わせください。
DKサンビルのこだわり
自分で探すより問い合わせる方が早いことがあります
WEB非公開物件があるから
オーナー様のご希望により「WEBでは非公開」にしている物件があります。 それらはWEBでいくら検索しても見つかりません。 先ずは条件などお知らせ頂けましたら非公開物件含め ピッタリのオフィスをご提案させて頂きます。 無理なお勧めはしておりませんので、お気軽にお問い合わせください。
対面でのご相談も受け付けております
ご来店も歓迎です
オフィス移転は社内・社外ともに非公開に行われることが殆どです。そのためアットオフィスでは、基本的に訪問によるコンサルティングを行っておりますが、ご来店の相談も歓迎です。お一人おひとりに親身にご対応させて頂きたい為、要予約とさせて頂いております。ご来店の際は先ずは下記よりご予約下さい。
募集終了のテナント区画
| 階数 | 坪数 | 賃料 + 共益費 | 敷金/礼金敷金 礼金 | 検討 |
|---|---|---|---|---|
| B1階 | 31.71坪 (104.82m²) | 募集終了 | - | - |
| B1階 | 24坪 (79.33m²) | 募集終了 | - | - |
| 1階 | 25坪 (82.64m²) | 募集終了 | - | - |
| 2階 | 31.5坪 (104.13m²) | 募集終了 | - | - |
| 4階 | 31.5坪 (104.13m²) | 募集終了 | - | - |
| 5階 | 31.5坪 (104.13m²) | 募集終了 | - | - |
| 6階 | 29.47坪 (97.42m²) | 募集終了 | - | - |
| 7階 | 23坪 (76.03m²) | 募集終了 | - | - |
| 8階 | 16.43坪 (54.32m²) | 募集終了 | - | - |
| 8階 | 16坪 (52.89m²) | 募集終了 | - | - |
読込中...
近くのエリアで探してみる
八重洲/日本橋/三越前エリアでDKサンビルに似た条件の物件
読込中...
| 取扱様態 | 仲介 |
|---|---|
| 取扱会社 | 株式会社 アットオフィス |