明宏ビル別館7階の賃貸情報
23.5 坪 (77.68m²)
399,500円 (坪:17,000 円)
※このサイトに記載がある賃貸条件は、敷金・保証金などの預かり金を除き、別途消費税がかかります。
明宏ビル別館の建物概要
設備詳細
| 空調 | 個別空調 |
|---|---|
| トイレ | 男女別トイレ / 男女別トイレ室外 |
| 床仕様 | - |
| エレベータ | 1 基 / エレベーター有 |
| 駐車場設備 | - |
| その他 | 24時間利用可 / 光ファイバー / 管理人常駐 / 会議室 |
明宏ビル別館7階の賃貸オフィス・事務所に関するお問い合わせ
明宏ビル別館について
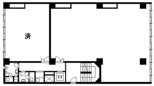
明宏ビル別館は、東京都港区新橋1-18-2に位置する1972年竣工の賃貸事務所物件です。本物件は、地上9階建てで基準階面積は約72坪となっており、オフィスのニーズに応じて分割区画の提供も可能です。本ビルは耐震補強工事も完了しており、安心してご利用いただけます。 立地の面では、都営三田線「内幸町」駅から徒歩1分、JR線「新橋」駅から徒歩4分という非常に優れたアクセス条件を持っています。さらに、「虎ノ門」駅へのアクセスも良好で、3駅が徒歩圏内にあります。日比谷通りから少し入った場所に位置することで、周辺の慌ただしさから一歩離れた、落ち着いたオフィス環境を提供します。 物件周辺には銀行支店が多く、ビジネス上の様々なニーズに迅速に対応可能です。また、飲食店やカフェなども豊富にあるため、ビジネスランチや打ち合わせの場所選びにも困りません。 設備面では、光ファイバー対応の高速インターネット環境、個別空調システム、男女別トイレなど、テナントの快適なオフィスライフをサポートする設備が整っています。加えて、ビル内には貸し会議室もあり、来客時の打ち合わせやセミナー開催などに活用できます。駐車場も併設されており、車を利用するテナントにも便利です。 オフィスの室内は、長方形に近いL字型の空間となっており、柱の無い設計によりレイアウトの自由度が高く、テナントのニーズに合わせたオフィス環境を実現することが可能です。 以上の特徴から、明宏ビル別館はアクセスの良さ、充実した設備、柔軟なレイアウトが可能なオフィス空間として、様々な業種の企業に適した賃貸事務所物件と言えるでしょう。ビジネスの成長を支える環境をお探しの企業に、ぜひ一度ご検討いただきたい物件です。
明宏ビル別館のこだわり
自分で探すより問い合わせる方が早いことがあります
WEB非公開物件があるから
オーナー様のご希望により「WEBでは非公開」にしている物件があります。 それらはWEBでいくら検索しても見つかりません。 先ずは条件などお知らせ頂けましたら非公開物件含め ピッタリのオフィスをご提案させて頂きます。 無理なお勧めはしておりませんので、お気軽にお問い合わせください。
対面でのご相談も受け付けております
ご来店も歓迎です
オフィス移転は社内・社外ともに非公開に行われることが殆どです。そのためアットオフィスでは、基本的に訪問によるコンサルティングを行っておりますが、ご来店の相談も歓迎です。お一人おひとりに親身にご対応させて頂きたい為、要予約とさせて頂いております。ご来店の際は先ずは下記よりご予約下さい。
近くのエリアで探してみる
新橋/虎ノ門/神谷町エリアで明宏ビル別館に似た条件の物件
読込中...
明宏ビル別館と同じ最寄駅の物件
読込中...
| 取扱様態 | 仲介 |
|---|---|
| 取扱会社 | 株式会社 アットオフィス |