周方社ビル4階の賃貸情報
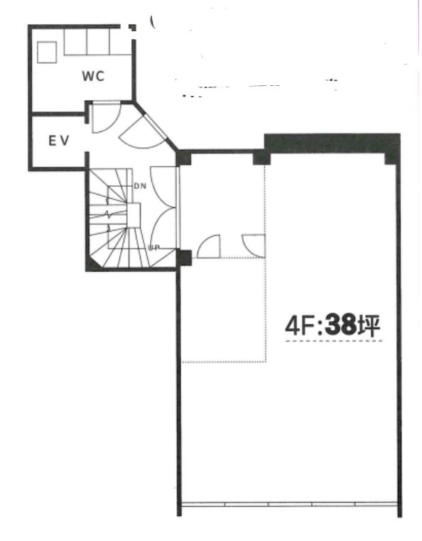
38 坪 (125.61m²)
※このサイトに記載がある賃貸条件は、敷金・保証金などの預かり金を除き、別途消費税がかかります。
周方社ビルの建物概要
設備詳細
| 空調 | 個別空調 |
|---|---|
| トイレ | - |
| 床仕様 | - |
| エレベータ | 1 基 |
| 駐車場設備 | - |
| その他 | 光ファイバー / 24時間利用可 / 居抜き / オフィス居抜き特集 / 店舗可(飲食不可) |
周方社ビル4階の賃貸オフィス・事務所に関するお問い合わせ
周方社ビルについて
中央区日本橋室町1丁目に位置する周方社ビルは、ビジネスの中心地にふさわしい最高のオフィス空間を提供します。このビルは、東京のビジネスエリートたちにとって最適な場所を求める際の、あらゆる要望を満たす設計となっております。 まず、立地の利便性はこのビルの最大の魅力の一つです。銀座線、半蔵門線が利用可能な三越前駅からわずか徒歩1分という距離に位置し、東京のどこへ行くにもアクセスが容易です。中央通りの裏手に位置するため、喧騒から離れて静かな環境で仕事に集中することが可能です。また、近隣には飲食店や銀行、郵便局などビジネスに必要なサービスが充実しており、日常の業務をスムーズに進めることができます。 ビル自体のスペックにも注目です。大きな窓は豊富な自然光をオフィス内に取り込み、作業スペースを明るく快適なものにしています。このような環境は、従業員の生産性とクリエイティビティを高めることに貢献します。また、ビルには1機のエレベーターが設置されており、スムーズにフロア間の移動が可能です。 周方社ビルは、優れた立地と高い建物スペックを兼ね備えた中央区における際立った物件です。三越前駅周辺の中では、コストパフォーマンスに優れ、ビジネスニーズを満たす設備と環境を提供しています。あなたのビジネスを次のレベルへと押し上げるための理想的なオフィススペースを、周方社ビルが実現します。その独自の魅力とビジネスにおける利点をぜひ一度、ご自身の目で確かめてください。
周方社ビルのこだわり
自分で探すより問い合わせる方が早いことがあります
WEB非公開物件があるから
オーナー様のご希望により「WEBでは非公開」にしている物件があります。 それらはWEBでいくら検索しても見つかりません。 先ずは条件などお知らせ頂けましたら非公開物件含め ピッタリのオフィスをご提案させて頂きます。 無理なお勧めはしておりませんので、お気軽にお問い合わせください。
対面でのご相談も受け付けております
ご来店も歓迎です
オフィス移転は社内・社外ともに非公開に行われることが殆どです。そのためアットオフィスでは、基本的に訪問によるコンサルティングを行っておりますが、ご来店の相談も歓迎です。お一人おひとりに親身にご対応させて頂きたい為、要予約とさせて頂いております。ご来店の際は先ずは下記よりご予約下さい。
近くのエリアで探してみる
八重洲/日本橋/三越前エリアで周方社ビルに似た条件の物件
読込中...
周方社ビルと同じ最寄駅の物件
読込中...
| 取扱様態 | 仲介 |
|---|---|
| 取扱会社 | 株式会社 アットオフィス |