小町ビル4階の賃貸情報
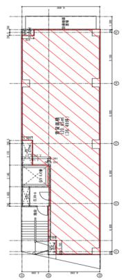
36.74 坪 (121.45m²)
※このサイトに記載がある賃貸条件は、敷金・保証金などの預かり金を除き、別途消費税がかかります。
小町ビルの建物概要
設備詳細
| 空調 | 個別空調 |
|---|---|
| トイレ | - |
| 床仕様 | - |
| エレベータ | 1 基 |
| 駐車場設備 | - |
| その他 | 機械警備 / 新耐震基準 / 居抜き / クリニック / 店舗可(飲食可) |
小町ビル4階の賃貸オフィス・事務所に関するお問い合わせ
小町ビルについて
立川市曙町2丁目に所在する小町ビルは、多摩都市モノレール線「立川北駅」から徒歩1分の場所に位置しています。駅から近い立地であり、周辺には各種店舗や施設が集積しているエリアに建っています。事業拠点として検討される際、周辺環境の多様な選択肢を活用いただけます。 建物には機械警備が導入されており、継続的な利用にも一定の安心感が得られる設備内容となっています。また、新耐震基準に適合した建物ですので、建築上の基準を満たしており、オフィスや営業所など事業用賃貸物件としての利用を想定した造りとなっています。 多摩都市モノレール線を利用した都市間の移動が可能であり、周辺のさまざまな商業施設やオフィスビルとの連携を図る拠点としてもご検討いただけます。立地や建物概要について詳細をご希望の場合は、お気軽にお問い合わせください。
小町ビルのこだわり
自分で探すより問い合わせる方が早いことがあります
WEB非公開物件があるから
オーナー様のご希望により「WEBでは非公開」にしている物件があります。 それらはWEBでいくら検索しても見つかりません。 先ずは条件などお知らせ頂けましたら非公開物件含め ピッタリのオフィスをご提案させて頂きます。 無理なお勧めはしておりませんので、お気軽にお問い合わせください。
対面でのご相談も受け付けております
ご来店も歓迎です
オフィス移転は社内・社外ともに非公開に行われることが殆どです。そのためアットオフィスでは、基本的に訪問によるコンサルティングを行っておりますが、ご来店の相談も歓迎です。お一人おひとりに親身にご対応させて頂きたい為、要予約とさせて頂いております。ご来店の際は先ずは下記よりご予約下さい。
近くのエリアで探してみる
エリアで小町ビルに似た条件の物件
読込中...
小町ビルと同じ最寄駅の物件
読込中...
| 取扱様態 | 仲介 |
|---|---|
| 取扱会社 | 株式会社 アットオフィス |