※このサイトに記載がある賃貸条件は、敷金・保証金などの預かり金を除き、別途消費税がかかります。
物件情報
設備詳細
| 空調 | 個別空調 |
|---|---|
| トイレ | 男女共用トイレ・室内 |
| 床仕様 | - |
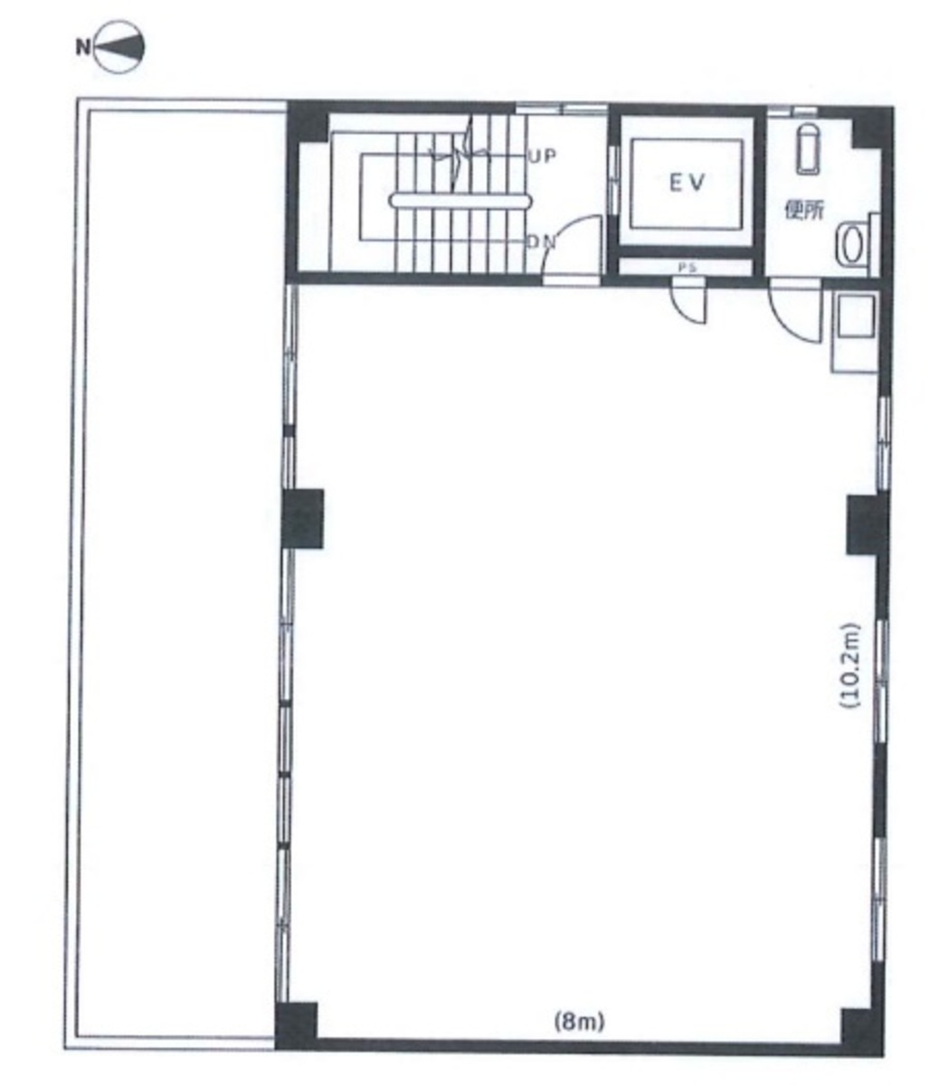
| エレベータ | 2 基 |
| 駐車場設備 | 空有 |
| その他 | クリニック / フリーレント / 塾・スクール |
金原ビルの賃貸オフィス・事務所に関するお問い合わせ
金原ビルについて
中央区日本橋本町に位置する金原ビルは、1978年に竣工し、現代のビジネスニーズに応えるため全面リニューアルを経て、高いスペックと快適なオフィス環境を提供しています。このビルは、基準階約35坪の広々としたオフィススペースを誇り、白を基調とした清潔感あふれる外観と、温かみのあるピンクベージュ色のエントランスが特徴です。窓面が広く、自然光が豊富に入ることで、開放感あふれる室内環境を実現しています。 金原ビルは、エレベーターが1基設置されており、共用部の一部リニューアルを行っております。また、月極駐車場がビル内に用意されており、利便性の高い立地条件の中、ビジネスの効率化をサポートします。立地についても、三越前駅、新日本橋駅が徒歩2分、JR山手線神田駅も徒歩6分と、3駅以上の利用が可能で、アクセスの良さはビジネスの機会を広げる重要な要素です。 周辺環境も充実しており、コンビニやカフェ、飲食店が豊富にあり、ランチタイムやちょっとしたブレイクタイムにも困りません。また、COREDO室町や三越などの商業施設も近く、ビジネスだけでなく日常生活の利便性も高いエリアです。 金原ビルは、新耐震基準に対応しており、安心してビジネスを行える基盤が整っています。このビルを拠点にすることで、企業のブランドイメージの向上にも寄与し、従業員の働きがいやモチベーションの向上にもつながるでしょう。高いスペックと快適なオフィス環境、そして抜群の立地条件を兼ね備えた金原ビルは、あなたのビジネスの成功を強力にサポートします。是非、金原ビルで新たなビジネスの舞台を広げてください。
金原ビルのこだわり
自分で探すより問い合わせる方が早いことがあります
WEB非公開物件があるから
オーナー様のご希望により「WEBでは非公開」にしている物件があります。 それらはWEBでいくら検索しても見つかりません。 先ずは条件などお知らせ頂けましたら非公開物件含め ピッタリのオフィスをご提案させて頂きます。 無理なお勧めはしておりませんので、お気軽にお問い合わせください。
対面でのご相談も受け付けております
ご来店も歓迎です
オフィス移転は社内・社外ともに非公開に行われることが殆どです。そのためアットオフィスでは、基本的に訪問によるコンサルティングを行っておりますが、ご来店の相談も歓迎です。お一人おひとりに親身にご対応させて頂きたい為、要予約とさせて頂いております。ご来店の際は先ずは下記よりご予約下さい。
募集終了のテナント区画
| 階数 | 坪数 | 賃料 + 共益費 | 敷金/礼金敷金 礼金 | 検討 |
|---|---|---|---|---|
| 3階 | 35.46坪 (117.24m²) | 募集終了 | - | - |
| 4階 | 25.84坪 (85.41m²) | 募集終了 | - | - |
| 5階 | 10.78坪 (35.66m²) | 募集終了 | - | - |
読込中...
近くのエリアで探してみる
八重洲/日本橋/三越前エリアで金原ビルに似た条件の物件
読込中...
| 取扱様態 | 仲介 |
|---|---|
| 取扱会社 | 株式会社 アットオフィス |