※このサイトに記載がある賃貸条件は、敷金・保証金などの預かり金を除き、別途消費税がかかります。
物件情報
設備詳細
| 空調 | セントラル空調 |
|---|---|
| トイレ | - |
| 床仕様 | OA対応床(フリーアクセス) |
| エレベータ | 4 基 |
| 駐車場設備 | - |
| その他 | 24時間利用可 / 大型ビル / 管理人常駐 / 光ファイバー / 新耐震基準 / 1階の物件 / セットアップ / 居抜き / オフィス居抜き特集 |
内幸町ダイビルの賃貸オフィス・事務所に関するお問い合わせ
内幸町ダイビルについて
内幸町ダイビルのご紹介です。千代田区内幸町1丁目、ビジネスの中心地に位置するこの優れたオフィスビルは、ビジネスの成功を支える多くの特長を持っています。新橋駅から徒歩わずか5分、さらに内幸町駅からは徒歩1分という抜群のアクセスの良さで、日々の通勤が格段に便利になります。また、霞ヶ関駅も徒歩8分の距離にあり、都心へのアクセスも容易です。 1983年に新耐震基準施工で竣工された本物件は、9階建てで基準階坪数は約235坪です。リニューアル工事も2011年に完了しており、最新のオフィスニーズに対応する設備とデザインが整っています。オフィスフロアは、明るく開放的な空間で、天井高は2500mm。OAフロアを完備しており、ワイヤレス環境や最新のオフィス機器にも対応しています。 セキュリティ面では、保安警備員と設備スタッフが常駐しており、夜間も隣接する日比谷ダイビルでの監視があり、安心してビジネスを行うことができます。地下駐車場には35台を収容可能で、駐車スペースについてもご安心ください。 また、隣接する日比谷ダイビル内の貸会議室が利用可能で、ビジネスミーティングやセミナーなど様々な用途に対応します。その他、1階には便利なコンビニエンスストアも設置されており、日々の忙しいビジネスライフをサポートします。 この地域は、オフィス街ながらも日比谷公園といった緑が広がるエリアであり、ビジネスと自然の調和を楽しむことができます。周辺には銀行や郵便局、飲食店など、ビジネスに必要な施設が充実しており、ビジネスチャンスを広げるのに最適な立地条件を備えています。 内幸町ダイビルは、ビルブランドとしての信頼性と、高いスペックを兼ね備えたオフィスビルです。分割区画も可能で、様々なビジネスニーズに柔軟に対応します。ビジネスの成功への第一歩を、内幸町ダイビルで踏み出しませんか?
自分で探すより問い合わせる方が早いことがあります
WEB非公開物件があるから
オーナー様のご希望により「WEBでは非公開」にしている物件があります。 それらはWEBでいくら検索しても見つかりません。 先ずは条件などお知らせ頂けましたら非公開物件含め ピッタリのオフィスをご提案させて頂きます。 無理なお勧めはしておりませんので、お気軽にお問い合わせください。
対面でのご相談も受け付けております
ご来店も歓迎です
オフィス移転は社内・社外ともに非公開に行われることが殆どです。そのためアットオフィスでは、基本的に訪問によるコンサルティングを行っておりますが、ご来店の相談も歓迎です。お一人おひとりに親身にご対応させて頂きたい為、要予約とさせて頂いております。ご来店の際は先ずは下記よりご予約下さい。
募集終了のテナント区画
| 階数 | 坪数 | 賃料 + 共益費 | 敷金/礼金敷金 礼金 | 検討 |
|---|---|---|---|---|
| 1階 | 28.34坪 (93.69m²) | 募集終了 | - | - |
| 2階 | 232.98坪 (770.18m²) | 募集終了 | - | - |
| 2階 | 152.48坪 (504.07m²) | 募集終了 | - | - |
| 2階 | 31.78坪 (105.05m²) | 募集終了 | - | - |
| 3階 | 103.68坪 (342.74m²) | 募集終了 | - | - |
| 3階 | 33.01坪 (109.12m²) | 募集終了 | - | - |
| 3階 | 57.41坪 (189.78m²) | 募集終了 | - | - |
| 4階 | 112.23坪 (371m²) | 募集終了 | - | - |
| 4階 | 235.01坪 (776.89m²) | 募集終了 | - | - |
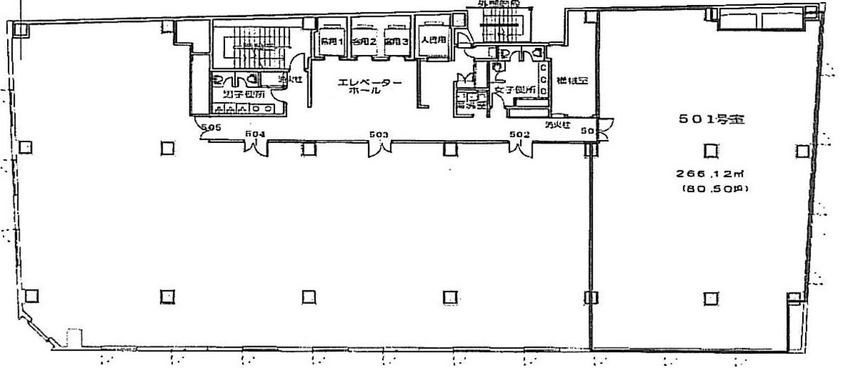
| 5階 | 80.5坪 (266.12m²) | 募集終了 | - | - |
| 5階 | 32.37坪 (107m²) | 募集終了 | - | - |
| 5階 | 58.9坪 (194.71m²) | 募集終了 | - | - |
| 5階 | 74.18坪 (245.21m²) | 募集終了 | - | - |
| 6階 | 145.24坪 (480.13m²) | 募集終了 | - | - |
| 6階 | 235.01坪 (776.89m²) | 募集終了 | - | - |
| 7階 | 32.36坪 (106.97m²) | 募集終了 | - | - |
| 7階 | 80.24坪 (265.26m²) | 募集終了 | - | - |
| 8階 | 77.73坪 (256.95m²) | 募集終了 | - | - |
| 8階 | 52.5坪 (173.57m²) | 募集終了 | - | - |
| 8階 | 25.23坪 (83.4m²) | 募集終了 | - | - |
| 9階 | 100.27坪 (331.46m²) | 募集終了 | - | - |
読込中...
近くのエリアで探してみる
霞が関/日比谷/永田町エリアで内幸町ダイビルに似た条件の物件
読込中...
| 取扱様態 | 仲介 |
|---|---|
| 取扱会社 | 株式会社 アットオフィス |