日比谷ダイビル4階の賃貸情報
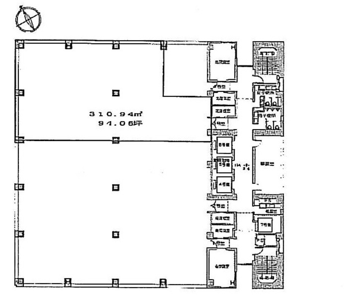
265.92 坪 (879.06m²)
※このサイトに記載がある賃貸条件は、敷金・保証金などの預かり金を除き、別途消費税がかかります。
日比谷ダイビルの建物概要
設備詳細
| 空調 | 個別空調 |
|---|---|
| トイレ | 男女別トイレ室外 |
| 床仕様 | - |
| エレベータ | 7 基 |
| 駐車場設備 | 空有 |
| その他 | 光ファイバー / 24時間利用可 / 大型ビル / 高層ビル / 新耐震基準 / 駅直結 |
日比谷ダイビル4階の賃貸オフィス・事務所に関するお問い合わせ
日比谷ダイビルについて
日比谷ダイビルは、東京のビジネスの中心地、千代田区内幸町に位置するハイグレードオフィスビルです。1989年に竣工し、新耐震基準に適合したこのオフィスタワーは、機能性と安全性を兼ね備えた現代のビジネスニーズに応える設計となっています。立地の優れたこの物件は、内幸町駅からわずか徒歩1分の距離にあり、新橋駅や日比谷駅、霞ヶ関駅も徒歩圏内という、3駅以上からのアクセスの利便性を誇ります。 ビルの基準階面積は200坪を超える広さで、最大約260坪のワンフロアを提供。床面はフリーアクセス仕様で、OA機器などの設置が容易になっているため、企業のオフィスレイアウトに柔軟に対応できます。天井高は2600mmと開放感があり、長方形の間取りが効率的なオフィス環境を実現します。 日比谷ダイビル内には、24時間利用可能な貸会議室があり、ビジネスミーティングやセミナーなど多様な用途で活用できることが特徴です。さらに、月極駐車場も完備しているため、来客時の利便性も高く、ビジネスの拠点として抜群の機能を提供します。 ビルのセキュリティ面においても、警備員や設備スタッフが24時間常駐しており、安心してビジネスを行うことができます。エレベーターは高層用と低層用に分かれており、それぞれ3基設置されています。これにより、オフィスフロアへの移動がスムーズに行えます。 周辺環境も魅力の一つで、日比谷公園が近くにあり自然を感じられる他、多数の金融機関、コンビニ、カフェや飲食店が点在しており、ビジネス利用だけでなく、日々の業務に必要なサービスやリフレッシュの場としても最適です。 日比谷ダイビルは、そのハイグレードなオフィス環境、抜群の立地、充実した設傈とサービスにより、ビジネスの成功を支える最適な場所です。このオフィスタワーは、企業が次世代のビジネスを展開するための理想的な環境を提供し続けます。
自分で探すより問い合わせる方が早いことがあります
WEB非公開物件があるから
オーナー様のご希望により「WEBでは非公開」にしている物件があります。 それらはWEBでいくら検索しても見つかりません。 先ずは条件などお知らせ頂けましたら非公開物件含め ピッタリのオフィスをご提案させて頂きます。 無理なお勧めはしておりませんので、お気軽にお問い合わせください。
対面でのご相談も受け付けております
ご来店も歓迎です
オフィス移転は社内・社外ともに非公開に行われることが殆どです。そのためアットオフィスでは、基本的に訪問によるコンサルティングを行っておりますが、ご来店の相談も歓迎です。お一人おひとりに親身にご対応させて頂きたい為、要予約とさせて頂いております。ご来店の際は先ずは下記よりご予約下さい。
近くのエリアで探してみる
霞が関/日比谷/永田町エリアで日比谷ダイビルに似た条件の物件
読込中...
日比谷ダイビルと同じ最寄駅の物件
読込中...
| 取扱様態 | 仲介 |
|---|---|
| 取扱会社 | 株式会社 アットオフィス |