秋葉原KKビル2階の賃貸情報
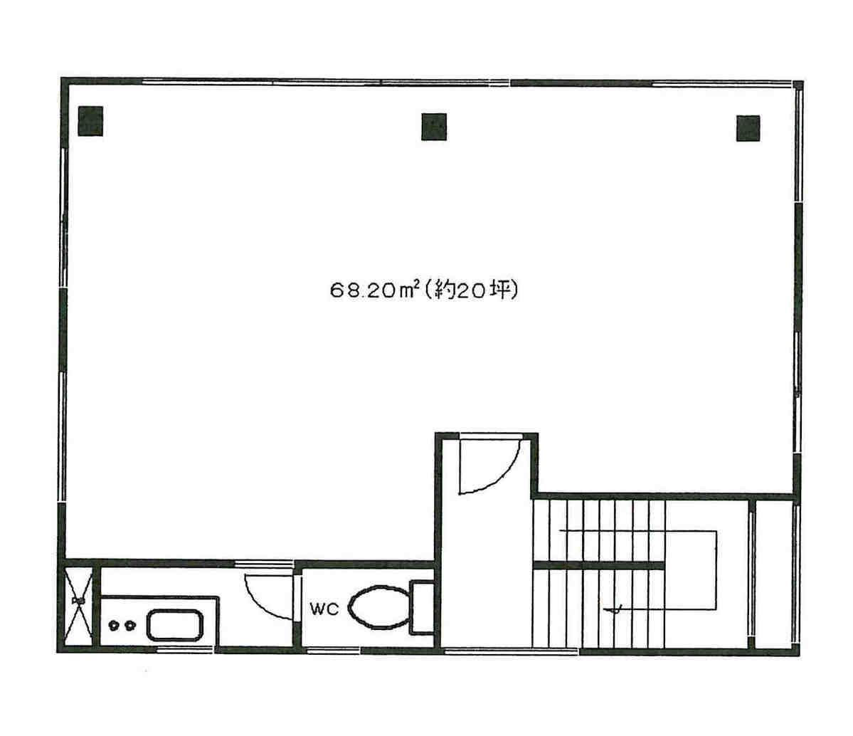
20.63 坪 (68.2m²)
※このサイトに記載がある賃貸条件は、敷金・保証金などの預かり金を除き、別途消費税がかかります。
秋葉原KKビルの建物概要
設備詳細
| 空調 | 個別空調 |
|---|---|
| トイレ | 男女共用トイレ・室内 |
| 床仕様 | - |
| エレベータ | - |
| 駐車場設備 | - |
| その他 | エレベーター無 / 東京賃料が坪11000円以下 / 保証金・敷金+礼金が3か月以下 |
秋葉原KKビル2階の賃貸オフィス・事務所に関するお問い合わせ
秋葉原KKビルについて
秋葉原KKビル:東京のビジネスの中心、千代田区に位置する秋葉原KKビルは、繁華街の活気と静かなビジネス環境が見事に融合した、ユニークなオフィス賃貸物件です。1980年の新耐震基準施行前に竣工しながらも、その堅固さは現代のビジネスニーズにも応える設計となっています。ここでは、このビルの特徴、立地、設備などを詳細に解説し、なぜ秋葉原KKビルがビジネスの拠点として魅力的なのかを探ります。 【特徴】 秋葉原KKビルは、千代田区神田佐久間町3丁目に所在し、1980年の新耐震基準施行前に竣工したオフィスビルです。ビル内に駐車場を備えており、利便性の高さはテナントにとって大きなメリットです。また、秋葉原KKビルは、そのコストパフォーマンスの高さで知られ、経費を抑えつつ質の高いオフィス環境を求める企業に最適な選択肢を提供します。 【立地】 このビルが立地する秋葉原エリアは、電子機器、アニメ、カルチャーの中心地として世界的に有名であり、ビジネスと文化の交差点です。最寄り駅の秋葉原駅から徒歩4分というアクセスの良さは、ビジネスの機動性を重視する企業にとって大きな利点です。また、東京の他のビジネスエリアや観光地へのアクセスも良好で、ビジネスチャンスの拡大に貢献します。 【設備】 秋葉原KKビルでは、ビル内に駐車場が完備されており、車でのアクセスを必要とするテナントにとって大きな魅力です。また、竣工は1980年の新耐震基準施行前ですが、安全性に対する配慮も行き届いており、ビジネス環境としての安心感を提供します。ビルのメンテナンスも行き届いており、テナントが快適に業務を行えるようサポートされています。 【ビジネスにおける利点】 秋葉原KKビルの最大の利点は、その立地とコストパフォーマンスの良さにあります。秋葉原という活気ある商業地に位置しつつも、リーズナブルな賃料で高品質なオフィス環境を提供することで、スタートアップから確立された企業まで幅広く対応します。アクセスの良さはビジネスの機動性を高め、ビル内駐車場による利便性は日々の業務効率に貢献します。 秋葉原KKビルは、その立地、設備、コストパフォーマンスを兼ね備えたビルとして、テナント企業の多様なニーズに応えることができる、魅力的な選択肢です。ビジネスの新拠点を探している企業にとって、このビルは見逃せない価値を持っています。
秋葉原KKビルのこだわり
自分で探すより問い合わせる方が早いことがあります
WEB非公開物件があるから
オーナー様のご希望により「WEBでは非公開」にしている物件があります。 それらはWEBでいくら検索しても見つかりません。 先ずは条件などお知らせ頂けましたら非公開物件含め ピッタリのオフィスをご提案させて頂きます。 無理なお勧めはしておりませんので、お気軽にお問い合わせください。
対面でのご相談も受け付けております
ご来店も歓迎です
オフィス移転は社内・社外ともに非公開に行われることが殆どです。そのためアットオフィスでは、基本的に訪問によるコンサルティングを行っておりますが、ご来店の相談も歓迎です。お一人おひとりに親身にご対応させて頂きたい為、要予約とさせて頂いております。ご来店の際は先ずは下記よりご予約下さい。
神田/秋葉原エリアで秋葉原KKビルに似た条件の物件
読込中...
秋葉原KKビルと同じ最寄駅の物件
読込中...
| 取扱様態 | 仲介 |
|---|---|
| 取扱会社 | 株式会社 アットオフィス |