神田荒木ビルの賃料条件
| 階数 | 坪数 | 賃料 + 共益費 | 敷金/礼金敷金 礼金 | 検討 |
|---|---|---|---|---|
| 2階 | 30.03坪 (99.27m²) | 540,540円 (坪:18,000 円) | 10ヶ月 1ヶ月10ヶ月/1ヶ月 | |
| 3階 | 30.03坪 (99.28m²) | 480,480円 (坪:16,000 円) | 10ヶ月 無10ヶ月/無 |
※このサイトに記載がある賃貸条件は、敷金・保証金などの預かり金を除き、別途消費税がかかります。
物件情報
設備詳細
| 空調 | 個別空調 |
|---|---|
| トイレ | 男女別トイレ室内 |
| 床仕様 | OA対応床(フリーアクセス) |
| エレベータ | 1 基 |
| 駐車場設備 | - |
| その他 | 光ファイバー / 機械警備 / オートロック / クリニック |
神田荒木ビルの賃貸オフィス・事務所に関するお問い合わせ
神田荒木ビルについて
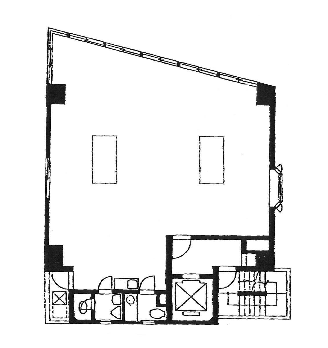
1982年竣工、10階建ての賃貸オフィス物件。ワンフロアの坪数は約30坪です。台形に近い間取りで、水回りは室内に設置されています。光ファイバーに対応した貸室です。貸室内はLED照明を採用しています。空調は個別空調。エレベーターは1基設置されていて、不停止機能完備しています。
神田荒木ビルのこだわり
自分で探すより問い合わせる方が早いことがあります
WEB非公開物件があるから
オーナー様のご希望により「WEBでは非公開」にしている物件があります。 それらはWEBでいくら検索しても見つかりません。 先ずは条件などお知らせ頂けましたら非公開物件含め ピッタリのオフィスをご提案させて頂きます。 無理なお勧めはしておりませんので、お気軽にお問い合わせください。
WEBから条件問い合わせをする(無料)
対面でのご相談も受け付けております
ご来店も歓迎です
オフィス移転は社内・社外ともに非公開に行われることが殆どです。そのためアットオフィスでは、基本的に訪問によるコンサルティングを行っておりますが、ご来店の相談も歓迎です。お一人おひとりに親身にご対応させて頂きたい為、要予約とさせて頂いております。ご来店の際は先ずは下記よりご予約下さい。
来店予約をする
募集終了のテナント区画
| 階数 | 坪数 | 賃料 + 共益費 | 敷金/礼金敷金 礼金 | 検討 |
|---|---|---|---|---|
| 1階 | 22.45坪 (74.21m²) | 募集終了 | - | - |
| 4階 | 30.03坪 (99.27m²) | 募集終了 | - | - |
| 8階 | 30.03坪 (99.27m²) | 募集終了 | - | - |
| 9階 | 30.03坪 (99.27m²) | 募集終了 | - | - |
読込中...
神田/秋葉原エリアで神田荒木ビルに似た条件の物件
読込中...
| 取扱様態 | 仲介 |
|---|---|
| 取扱会社 | 株式会社 アットオフィス |