※このサイトに記載がある賃貸条件は、敷金・保証金などの預かり金を除き、別途消費税がかかります。
物件情報
設備詳細
| 空調 | - |
|---|---|
| トイレ | - |
| 床仕様 | - |
| エレベータ | 1 基 |
| 駐車場設備 | - |
| その他 | 機械警備 / 24時間利用可 / 光ファイバー / 新耐震基準 |
飯野ビルの賃貸オフィス・事務所に関するお問い合わせ
飯野ビルについて
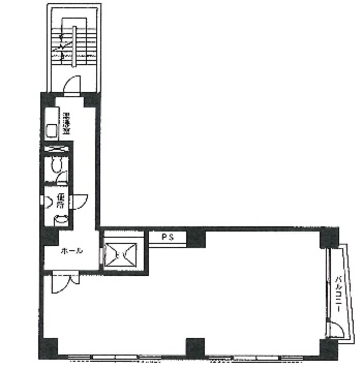
飯野ビルは、中央区八丁堀に位置する、ビジネスの拠点として最適な賃貸オフィスビルです。このビルは1986年に竣工し、新耐震基準に準拠しているため、災害時でも安心して業務を続けることができます。建物の外観は、品質とプロフェッショナリズムを象徴するタイル張りで、エレガントな雰囲気を醸し出しています。共用部には1基のエレベーターが設置されており、日々の業務の流れをスムーズにします。 立地においても、飯野ビルは非常に魅力的です。八丁堀駅からは徒歩5分、さらに宝町駅からは徒歩約3分と、2つの駅が非常に近く、アクセスが非常に便利です。これにより、従業員やクライアントがオフィスに容易にアクセスできるため、ビジネスの効率化が図れます。また、京橋駅や茅場町駅も徒歩圏内にあり、複数の路線を利用できることから、都内各所へのアクセスの良さは抜群です。 ビル内の設備も充実しており、1フロア約20坪のコンパクトながらも機能的なオフィス空間が提供されます。OAフロアは高さ50mmを確保しており、各オフィスでは個別空調・給湯設備・トイレなどが整っているため、快適なオフィス環境を構築できます。特に、水回りが室外に設置されている点は、オフィス内の有効面積を最大限に活用できるため、効率的なオフィスレイアウトを実現できます。 さらに、飯野ビルは機械警備システムによるセキュリティが整っており、24時間の利用可能性も提供しています。これにより、従業員が柔軟な勤務時間に対応可能となり、ワークライフバランスの向上にも貢献します。また、ビル内に月極駐車場があり、光ケーブルも引き込まれているため、高速インターネット接続が可能です。 周辺環境もまた、飯野ビルの魅力の一つです。複数の飲食店や郵便局が近くにあり、宝町駅周辺には複数の銀行支店があります。このように、ビルの周囲はビジネスに必要なサービスや施設が充実しており、日々の業務効率をさらに高めることができます。 このように、飯野ビルは、優れた耐震性、アクセスの良さ、機能的なオフィス空間、充実した設備、便利な周辺環境といった、ビジネスに必要なすべてを兼ね備えた賃貸オフィスビルです。これらの特徴は、企業が成長し続けるための強固な基盤を提供し、従業員にとっても、働きがいのある環境を実現します。飯野ビルで、あなたのビジネスの新たなステージを始めましょう。
飯野ビルのこだわり
自分で探すより問い合わせる方が早いことがあります
WEB非公開物件があるから
オーナー様のご希望により「WEBでは非公開」にしている物件があります。 それらはWEBでいくら検索しても見つかりません。 先ずは条件などお知らせ頂けましたら非公開物件含め ピッタリのオフィスをご提案させて頂きます。 無理なお勧めはしておりませんので、お気軽にお問い合わせください。
対面でのご相談も受け付けております
ご来店も歓迎です
オフィス移転は社内・社外ともに非公開に行われることが殆どです。そのためアットオフィスでは、基本的に訪問によるコンサルティングを行っておりますが、ご来店の相談も歓迎です。お一人おひとりに親身にご対応させて頂きたい為、要予約とさせて頂いております。ご来店の際は先ずは下記よりご予約下さい。
募集終了のテナント区画
| 階数 | 坪数 | 賃料 + 共益費 | 敷金/礼金敷金 礼金 | 検討 |
|---|---|---|---|---|
| 3階 | 20.2坪 (66.78m²) | 募集終了 | - | - |
| 4階 | 20.2坪 (66.78m²) | 募集終了 | - | - |
| 7階 | 20.2坪 (66.78m²) | 募集終了 | - | - |
読込中...
近くのエリアで探してみる
茅場町/新川/八丁堀エリアで飯野ビルに似た条件の物件
読込中...
| 取扱様態 | 仲介 |
|---|---|
| 取扱会社 | 株式会社 アットオフィス |