※このサイトに記載がある賃貸条件は、敷金・保証金などの預かり金を除き、別途消費税がかかります。
物件情報
設備詳細
| 空調 | 個別空調 |
|---|---|
| トイレ | 男女別トイレ室内 |
| 床仕様 | OA対応床(フリーアクセス) |
| エレベータ | 1 基 |
| 駐車場設備 | - |
| その他 | 光ファイバー / 24時間利用可 / 機械警備 / 新耐震基準 |
トゥルム神田の賃貸オフィス・事務所に関するお問い合わせ
トゥルム神田について
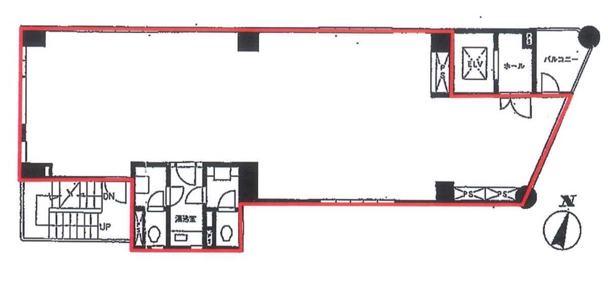
【トゥルム神田 ビルのご紹介】 東京都千代田区神田岩本町に誇りを持ってお勧めするトゥルム神田ビルは、ビジネスの中心地に位置する高スペックオフィスビルです。1989年に竣工し、新耐震基準に適合した地上10階建ての建物は、安心してご利用いただける耐震性能を備えております。ビルのリニューアル工事により、エントランスはモダンで重厚感あるデザインに生まれ変わり、訪れる方々に好印象を与えます。 基準階約33.44坪の広々としたオフィススペースは、効率的な執務空間の造成を可能にし、個室の設置も容易です。また、男女別トイレや給湯室を各フロアに設け、快適なオフィス環境を実現しています。さらに、個別空調システムとOAフロア、光ファイバーの導入により、最新のオフィスニーズにも対応する設備を整えております。 立地においては、岩本町駅から徒歩3分というアクセスの良さが魅力です。JR山手線・中央線・京浜東北線、東京メトロ銀座線の神田駅や秋葉原駅からも徒歩圏内にあり、複数路線が利用可能です。この立地は、ビジネスの機会を最大限に引き出すためには理想的であり、周辺には飲食店やコンビ二などの利便施設も豊富に揃っており、働く人々の日常生活をサポートします。 セキュリティ面においても、機械警備システムを導入し、24時間利用可能な安全なビジネス環境を提供しております。また、エレベーターは6人乗りを1機設置し、スムーズな移動をサポートしています。 トゥルム神田ビルは、ビジネスの成功を叶える最適な環境を提供します。高いスペックと利便性、そして安全性を兼ね備えたこのビルで、あなたのビジネスをさらに飛躍させませんか?立地の良さと充実した設備は、ビジネスチャンスを最大化し、日々の業務を快適に進めるための強力なサポートとなることでしょう。
トゥルム神田のこだわり
自分で探すより問い合わせる方が早いことがあります
WEB非公開物件があるから
オーナー様のご希望により「WEBでは非公開」にしている物件があります。 それらはWEBでいくら検索しても見つかりません。 先ずは条件などお知らせ頂けましたら非公開物件含め ピッタリのオフィスをご提案させて頂きます。 無理なお勧めはしておりませんので、お気軽にお問い合わせください。
対面でのご相談も受け付けております
ご来店も歓迎です
オフィス移転は社内・社外ともに非公開に行われることが殆どです。そのためアットオフィスでは、基本的に訪問によるコンサルティングを行っておりますが、ご来店の相談も歓迎です。お一人おひとりに親身にご対応させて頂きたい為、要予約とさせて頂いております。ご来店の際は先ずは下記よりご予約下さい。
募集終了のテナント区画
| 階数 | 坪数 | 賃料 + 共益費 | 敷金/礼金敷金 礼金 | 検討 |
|---|---|---|---|---|
| 1階 | 27.84坪 (92.03m²) | 募集終了 | - | - |
| 2階 | 33.44坪 (110.55m²) | 募集終了 | - | - |
| 3階 | 33.44坪 (110.55m²) | 募集終了 | - | - |
| 4階 | 33.44坪 (110.55m²) | 募集終了 | - | - |
| 6階 | 33.44坪 (110.55m²) | 募集終了 | - | - |
| 7階 | 33.44坪 (110.55m²) | 募集終了 | - | - |
| 8階 | 33.44坪 (110.55m²) | 募集終了 | - | - |
| 9階 | 33.44坪 (110.55m²) | 募集終了 | - | - |
読込中...
神田/秋葉原エリアでトゥルム神田に似た条件の物件
読込中...
| 取扱様態 | 仲介 |
|---|---|
| 取扱会社 | 株式会社 アットオフィス |