ダヴィンチ千駄ヶ谷5階の賃貸情報
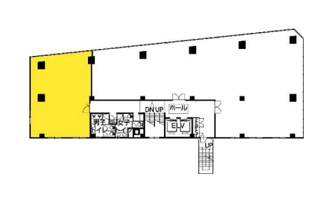
27.08 坪 (89.53m²)
※このサイトに記載がある賃貸条件は、敷金・保証金などの預かり金を除き、別途消費税がかかります。
ダヴィンチ千駄ヶ谷の建物概要
設備詳細
| 空調 | - |
|---|---|
| トイレ | 男女別トイレ |
| 床仕様 | - |
| エレベータ | 2 基 |
| 駐車場設備 | 空無 / 敷地内駐車場 |
| その他 | 機械警備 / 24時間利用可 / 大型ビル / 光ファイバー / 居抜き |
ダヴィンチ千駄ヶ谷について
【ダヴィンチ千駄ヶ谷の魅力とその立地の相場観】 東京都渋谷区千駄ヶ谷に位置する「ダヴィンチ千駄ヶ谷」は、ビジネスの中心地としての魅力を兼ね備えた賃貸オフィス物件です。1972年に竣工し、2007年には耐震補強を含む大規模なリニューアル工事が施されました。地上6階建ての当ビルは、基準階約123坪の広々としたオフィススペースを提供し、分割区画の対応も可能です。これにより、様々な規模の企業が最適なオフィス環境を見つけることができます。 立地においては、千駄ヶ谷駅から徒歩1分という抜群のアクセスの良さがビルの大きな魅力の一つ。また、北参道駅や国立競技場駅も徒歩圏内にあるため、都心への移動が非常に便利です。この地域はオフィスビルが立ち並ぶビジネスエリアでありながら、穏やかで落ち着いた環境が魅力的なエリアです。近隣には飲食店やカフェも多く、ビジネスシーンにおいてもプライベートにおいても便利な立地と言えるでしょう。 ビルの設備面では、全面リニューアル済みで、個別空調、24時間利用可能な貸室、機械警備といった高いセキュリティを誇ります。1階には利便性を高めるコンビニとカフェが入居しており、来客時やランチタイムにも困りません。 渋谷区千駄ヶ谷エリアのオフィス相場は、その立地やアクセスの良さから高い需要があります。特に駅近くの物件は、交通の利便性を重視する企業にとって魅力的な選択肢となります。ダヴィンチ千駄ヶ谷ビルは、そのような条件を満たす上に、リニューアルによるモダンな設備と快適なオフィス環境を提供しています。ビジネスの成功と成長を目指す企業にとって、最適なオフィス選びにはこのような条件が欠かせません。 以上の点から、ダヴィンチ千駄ヶ谷ビルは、立地の良さ、充実した設備、そして周辺環境の魅力を兼ね備えた、ビジネスに最適なオフィススペースと言えるでしょう。ここでは、企業が活動の拠点として、様々なビジネスチャンスを広げることができる環境が整っています。
ダヴィンチ千駄ヶ谷のこだわり
その他の区画
| 階数 | 坪数 | 賃料 + 共益費 | 敷金/礼金敷金 礼金 | 検討 |
|---|---|---|---|---|
| 2階 | 100.64坪 (332.69m²) | 2,516,000円 (坪:25,000 円) | 8ヶ月 無8ヶ月/無 |
自分で探すより問い合わせる方が早いことがあります
WEB非公開物件があるから
オーナー様のご希望により「WEBでは非公開」にしている物件があります。 それらはWEBでいくら検索しても見つかりません。 先ずは条件などお知らせ頂けましたら非公開物件含め ピッタリのオフィスをご提案させて頂きます。 無理なお勧めはしておりませんので、お気軽にお問い合わせください。
対面でのご相談も受け付けております
ご来店も歓迎です
オフィス移転は社内・社外ともに非公開に行われることが殆どです。そのためアットオフィスでは、基本的に訪問によるコンサルティングを行っておりますが、ご来店の相談も歓迎です。お一人おひとりに親身にご対応させて頂きたい為、要予約とさせて頂いております。ご来店の際は先ずは下記よりご予約下さい。
表参道/外苑前エリアでダヴィンチ千駄ヶ谷に似た条件の物件
読込中...
ダヴィンチ千駄ヶ谷と同じ最寄駅の物件
読込中...
| 取扱様態 | 仲介 |
|---|---|
| 取扱会社 | 株式会社 アットオフィス |