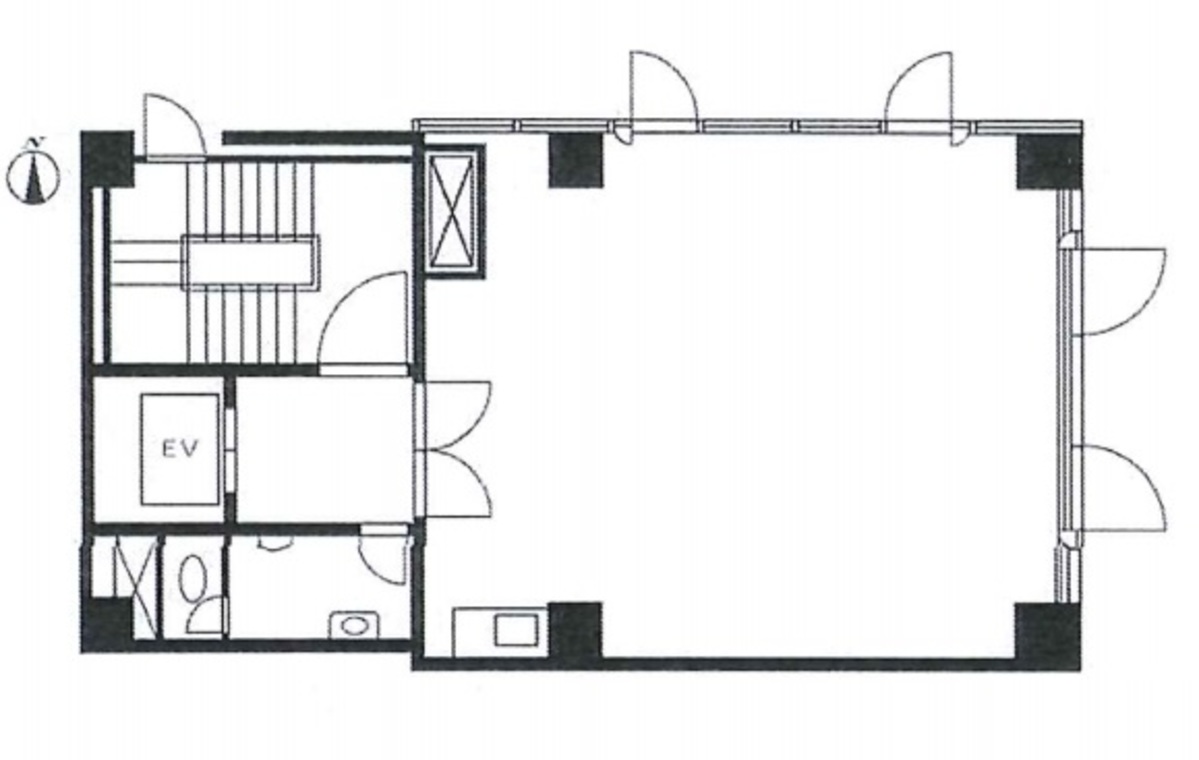
朝日11号館4階の賃貸情報
19 坪 (62.81m²)
※このサイトに記載がある賃貸条件は、敷金・保証金などの預かり金を除き、別途消費税がかかります。
朝日11号館の建物概要
設備詳細
| 空調 | 個別空調 |
|---|---|
| トイレ | - |
| 床仕様 | - |
| エレベータ | 1 基 |
| 駐車場設備 | 空有 |
| その他 | 光ファイバー / クリニック / 東京賃料が坪11000円以下 |
朝日11号館4階の賃貸オフィス・事務所に関するお問い合わせ
朝日11号館について
朝日11号館ビル~ビジネスの未来を切り拓く、上野3丁目の象徴~ ビジネスの世界では、第一印象がすべてです。朝日11号館ビルは、その第一印象を決定づける場所として、あなたを強力に支えます。1974年に竣工されたこの歴史あるオフィスビルは、上野3丁目の地に堂々と佇んでおり、その耐震性に優れた鉄筋コンクリート造の構造は、まさに安心と信頼の象徴です。 御徒町駅からわずか徒歩3分、上野御徒町駅からも同様に3分という、羨望の立地条件を誇る朝日11号館ビル。ビジネスの中心地である上野周辺の活気ある環境と、駅近のアクセスの良さは、あなたのビジネスをさらなる高みへと導きます。 ビル内には、現代のビジネスニーズに対応した光ファイバーの設備を完備。高速インターネット環境が、あなたのビジネスをスムーズにサポートします。また、個別空調システムにより、オフィス内の快適な作業環境を一年中保つことができます。 利便性に優れた1基のエレベーター、男女共用トイレ、そしてビジネスの拠点としては欠かせない駐車場の存在。さらには、店舗やクリニックとしての利用も可能であるため、多様なビジネスシーンに対応する柔軟性を持っています。 周辺環境もまた、朝日11号館ビルの魅力の一つ。飲食店や専門店、郵便局といった生活に必要な施設が充実しており、ビジネスだけでなく日常生活においても大変便利です。裏通りに位置しているため、穏やかな通りでありながらも、専門店が立ち並ぶ駅前付近に位置しているため、移動の利便性は抜群です。 朝日11号館ビルは、ひとつのビルを超えた価値を提供します。それは、ビジネスの成功への確かな一歩を踏み出す場所、そして新たなビジネスの未来を切り拓く基盤となる場所。あなたのビジネスが次のステージへと進むための、最適な選択と言えるでしょう。
自分で探すより問い合わせる方が早いことがあります
WEB非公開物件があるから
オーナー様のご希望により「WEBでは非公開」にしている物件があります。 それらはWEBでいくら検索しても見つかりません。 先ずは条件などお知らせ頂けましたら非公開物件含め ピッタリのオフィスをご提案させて頂きます。 無理なお勧めはしておりませんので、お気軽にお問い合わせください。
対面でのご相談も受け付けております
ご来店も歓迎です
オフィス移転は社内・社外ともに非公開に行われることが殆どです。そのためアットオフィスでは、基本的に訪問によるコンサルティングを行っておりますが、ご来店の相談も歓迎です。お一人おひとりに親身にご対応させて頂きたい為、要予約とさせて頂いております。ご来店の際は先ずは下記よりご予約下さい。
上野/台東/東上野エリアで朝日11号館に似た条件の物件
読込中...
朝日11号館と同じ最寄駅の物件
読込中...
| 取扱様態 | 仲介 |
|---|---|
| 取扱会社 | 株式会社 アットオフィス |