石黒由賢ビル3階の賃貸情報
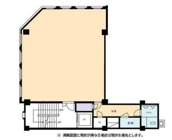
29.39 坪 (97.15m²)
※このサイトに記載がある賃貸条件は、敷金・保証金などの預かり金を除き、別途消費税がかかります。
石黒由賢ビルの建物概要
設備詳細
| 空調 | - |
|---|---|
| トイレ | - |
| 床仕様 | - |
| エレベータ | 1 基 |
| 駐車場設備 | - |
| その他 | - |
石黒由賢ビル3階の賃貸オフィス・事務所に関するお問い合わせ
石黒由賢ビルについて
石黒由賢ビルは、東京都中央区日本橋2丁目に位置する優れた賃貸オフィス物件です。1971年に竣工した本ビルは、8階建てであり、機能性と利便性を兼ね備えたオフィス環境を提供しています。基準階約29坪の広さは、中小企業やスタートアップ企業にとって最適なオフィス空間を提供します。特に、余計な柱がなく、レイアウトの自由度が高い点は、効率的かつ柔軟なオフィス環境の構築を可能にします。 本ビルの設備面では、個別空調システムを採用しており、各テナントが快適な室温を自由にコントロールできる点が大きな特徴です。また、貸室内にはトイレや給湯スペースも設置されており、テナントの利便性を大幅に向上させています。セキュリティ面では、機械警備や夜間オートロックシステムを導入し、テナントの安全・安心を守る体制を整えています。 立地においては、さくら通り沿いに位置し、周辺は活気あるオフィス街を形成しています。人通りが多く、ビジネスチャンスに満ちた環境です。最寄り駅の日本橋駅をはじめ、東京駅・京橋駅・三越前駅といった複数の駅が利用可能で、都内各地へのアクセスが非常に便利です。また、徒歩圏内にはコンビニや飲食店などが充実しており、ビジネスパーソンにとって必要不可欠なサービスが身近に揃っています。 八重洲仲通りと桜通りに面した角地に立地する石黒由賢ビルは、採光性に優れた明るいオフィス環境を提供します。ビルの外観は、地域の風景に調和しながらも、その存在感を放っています。このように、石黒由賢ビルは、機能性、利便性、安全性を兼ね揃えた賃貸オフィス物件として、ビジネス拠点としての魅力を十分に発揮します。企業の成長と共に変化するオフィスニーズに応える柔軟性と、都心にありながら快適なワークスペースを提供することで、働くすべての人々の創造性と生産性を高める環境を実現しています。
石黒由賢ビルのこだわり
自分で探すより問い合わせる方が早いことがあります
WEB非公開物件があるから
オーナー様のご希望により「WEBでは非公開」にしている物件があります。 それらはWEBでいくら検索しても見つかりません。 先ずは条件などお知らせ頂けましたら非公開物件含め ピッタリのオフィスをご提案させて頂きます。 無理なお勧めはしておりませんので、お気軽にお問い合わせください。
対面でのご相談も受け付けております
ご来店も歓迎です
オフィス移転は社内・社外ともに非公開に行われることが殆どです。そのためアットオフィスでは、基本的に訪問によるコンサルティングを行っておりますが、ご来店の相談も歓迎です。お一人おひとりに親身にご対応させて頂きたい為、要予約とさせて頂いております。ご来店の際は先ずは下記よりご予約下さい。
近くのエリアで探してみる
八重洲/日本橋/三越前エリアで石黒由賢ビルに似た条件の物件
読込中...
石黒由賢ビルと同じ最寄駅の物件
読込中...
| 取扱様態 | 仲介 |
|---|---|
| 取扱会社 | 株式会社 アットオフィス |