トーヨービル5階の賃貸情報
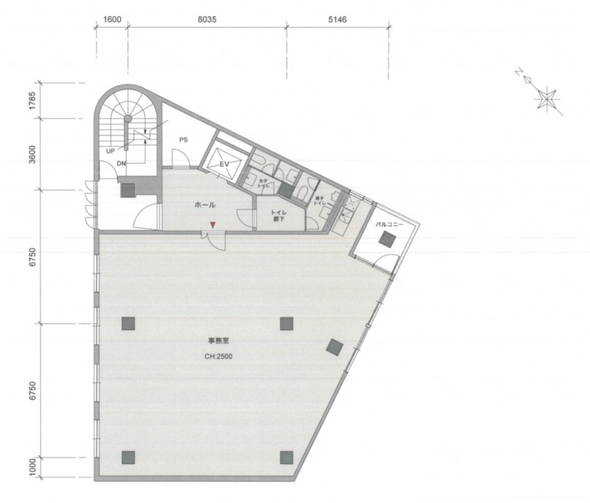
56.79 坪 (187.74m²)
※このサイトに記載がある賃貸条件は、敷金・保証金などの預かり金を除き、別途消費税がかかります。
トーヨービルの建物概要
設備詳細
| 空調 | 個別空調 |
|---|---|
| トイレ | - |
| 床仕様 | - |
| エレベータ | 1 基 |
| 駐車場設備 | 空有 |
| その他 | 24時間利用可 / 新耐震基準 / 東京賃料が坪11000円以下 |
トーヨービル5階の賃貸オフィス・事務所に関するお問い合わせ
トーヨービルについて
トーヨービルは、世田谷区上馬3丁目に所在し、田園都市線「駒沢大学駅」から徒歩3分という駅からの距離に位置しています。また、「三軒茶屋駅」や世田谷線「西太子堂駅」も徒歩圏内にあり、複数の駅が利用可能です。地上9階建てで、基準階面積は56.79㎡となっており、多様な事業活動に対応できる空間となっています。24時間利用が可能な点も、業種やワークスタイルにあわせた柔軟な利用計画を立てる上で役立ちます。周辺エリアは住宅地と商業施設が調和する環境であり、来訪者やスタッフの動線も明確です。各フロアは整形的なレイアウトで、オフィスや事務所としての機能的な活用が期待できます。事業の拠点や新たなプロジェクトスペースとしてのご検討も可能です。詳細はお問い合わせください。
自分で探すより問い合わせる方が早いことがあります
WEB非公開物件があるから
オーナー様のご希望により「WEBでは非公開」にしている物件があります。 それらはWEBでいくら検索しても見つかりません。 先ずは条件などお知らせ頂けましたら非公開物件含め ピッタリのオフィスをご提案させて頂きます。 無理なお勧めはしておりませんので、お気軽にお問い合わせください。
対面でのご相談も受け付けております
ご来店も歓迎です
オフィス移転は社内・社外ともに非公開に行われることが殆どです。そのためアットオフィスでは、基本的に訪問によるコンサルティングを行っておりますが、ご来店の相談も歓迎です。お一人おひとりに親身にご対応させて頂きたい為、要予約とさせて頂いております。ご来店の際は先ずは下記よりご予約下さい。
世田谷区エリアでトーヨービルに似た条件の物件
読込中...
トーヨービルと同じ最寄駅の物件
読込中...
| 取扱様態 | 仲介 |
|---|---|
| 取扱会社 | 株式会社 アットオフィス |