※このサイトに記載がある賃貸条件は、敷金・保証金などの預かり金を除き、別途消費税がかかります。
物件情報
設備詳細
| 空調 | 個別空調 |
|---|---|
| トイレ | - |
| 床仕様 | OA対応床(フリーアクセス) |
| エレベータ | 3 基 |
| 駐車場設備 | 空有 |
| その他 | 機械警備 / 24時間利用可 / 大型ビル / 光ファイバー / 新耐震基準 |
VORT新横浜の賃貸オフィス・事務所に関するお問い合わせ
VORT新横浜について
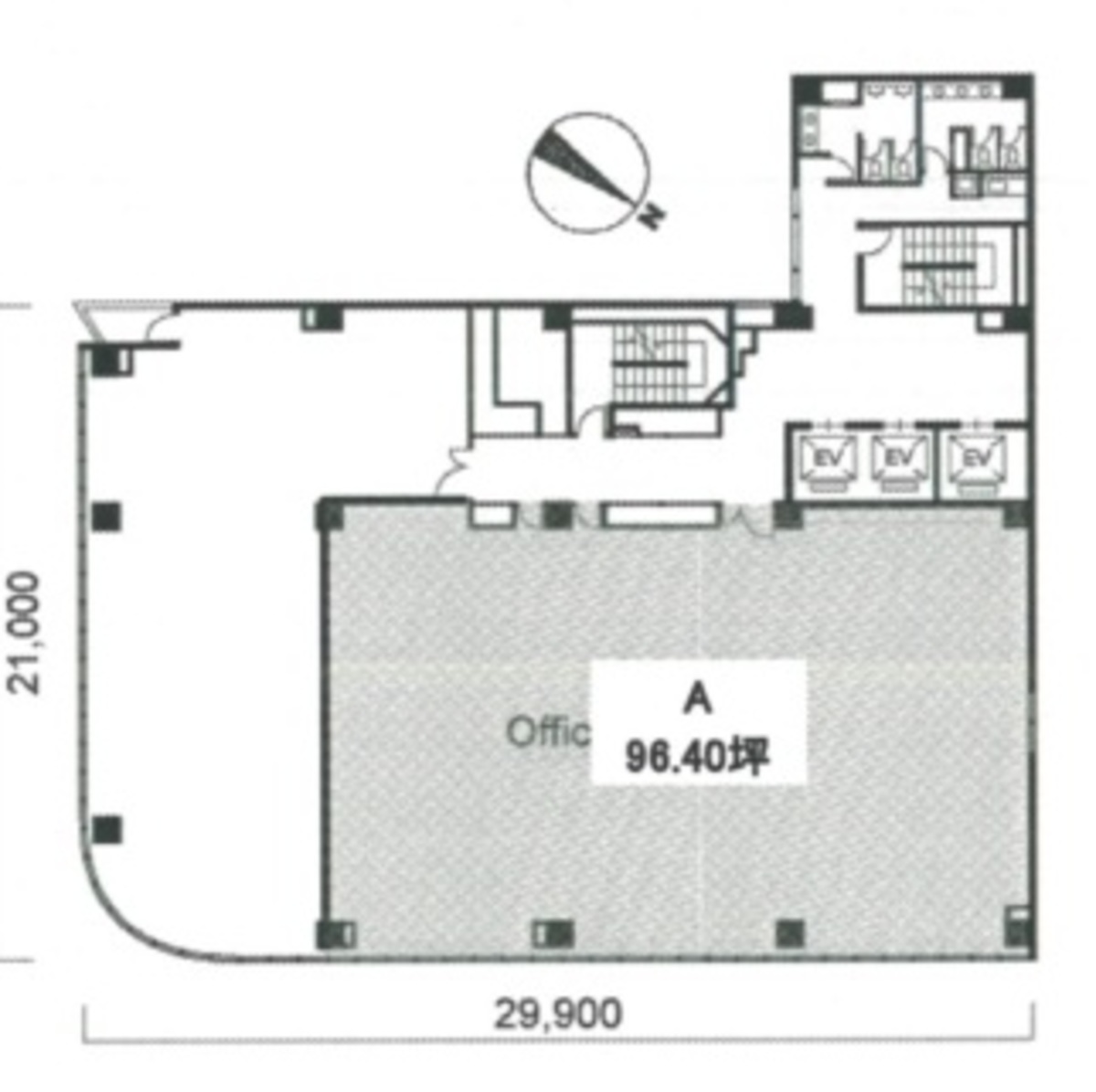
新横浜3丁目、駅から徒歩6分圏内に位置する、新幹線高架沿いの物件です。 角地に位置する丸みのある外観の管理が行き届いたグレード感あるオフィスビルです。 エレベーターが3基あるため、待ちに困る事も少なく、共用部も広めに設計されております。 空調は個別で、共用部に男女別トイレ、給湯室が設備されております。
自分で探すより問い合わせる方が早いことがあります
WEB非公開物件があるから
オーナー様のご希望により「WEBでは非公開」にしている物件があります。 それらはWEBでいくら検索しても見つかりません。 先ずは条件などお知らせ頂けましたら非公開物件含め ピッタリのオフィスをご提案させて頂きます。 無理なお勧めはしておりませんので、お気軽にお問い合わせください。
WEBから条件問い合わせをする(無料)
対面でのご相談も受け付けております
ご来店も歓迎です
オフィス移転は社内・社外ともに非公開に行われることが殆どです。そのためアットオフィスでは、基本的に訪問によるコンサルティングを行っておりますが、ご来店の相談も歓迎です。お一人おひとりに親身にご対応させて頂きたい為、要予約とさせて頂いております。ご来店の際は先ずは下記よりご予約下さい。
来店予約をする
募集終了のテナント区画
| 階数 | 坪数 | 賃料 + 共益費 | 敷金/礼金敷金 礼金 | 検討 |
|---|---|---|---|---|
| 3階 | 96.1坪 (317.7m²) | 募集終了 | - | - |
| 5階 | 43.35坪 (143.31m²) | 募集終了 | - | - |
| 6階 | 31.52坪 (104.22m²) | 募集終了 | - | - |
| 7階 | 64.57坪 (213.47m²) | 募集終了 | - | - |
| 7階 | 53.61坪 (177.24m²) | 募集終了 | - | - |
| 9階 | 27.74坪 (91.71m²) | 募集終了 | - | - |
| 10階 | 31.52坪 (104.22m²) | 募集終了 | - | - |
| 10階 | 27.74坪 (91.7m²) | 募集終了 | - | - |
| 10階 | 27.74坪 (91.71m²) | 募集終了 | - | - |
読込中...
港北区エリアでVORT新横浜に似た条件の物件
読込中...
| 取扱様態 | 仲介 |
|---|---|
| 取扱会社 | 株式会社 アットオフィス |