※このサイトに記載がある賃貸条件は、敷金・保証金などの預かり金を除き、別途消費税がかかります。
物件情報
設備詳細
| 空調 | - |
|---|---|
| トイレ | - |
| 床仕様 | - |
| エレベータ | 1 基 |
| 駐車場設備 | 空無 |
| その他 | 新耐震基準 / 機械警備 / オートロック / SOHO/マンション |
オークハウスの賃貸オフィス・事務所に関するお問い合わせ
オークハウスについて
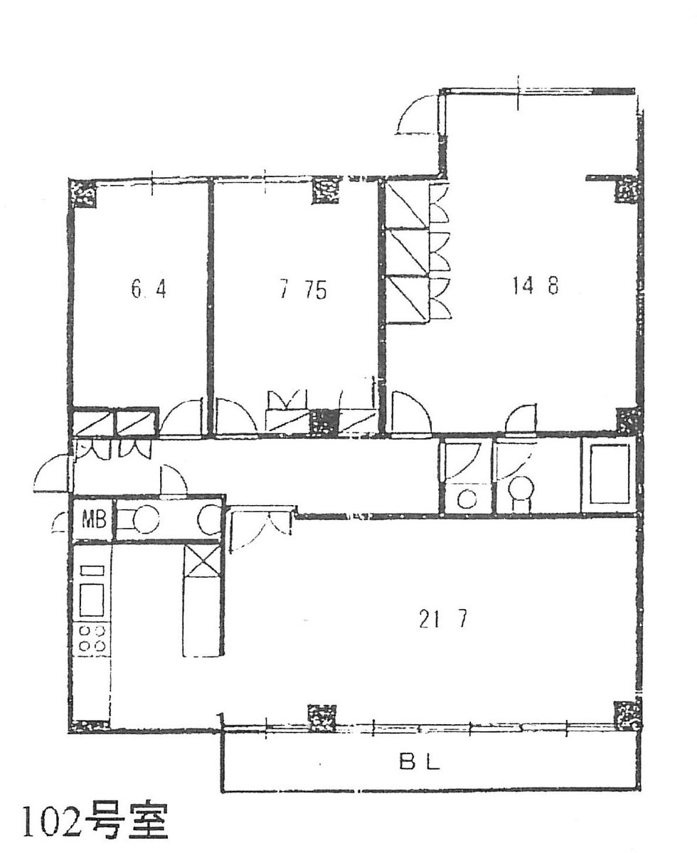
渋谷区上原エリアは、その利便性と落ち着いた住環境から、多くの企業やクリエイターに選ばれる場所として知られています。この地域は、交通アクセスの良さと静かな住環境が魅力的なエリアで、SOHOや小規模オフィスを構えるには最適の立地です。今回ご紹介する「オークハウスビル」と「ザオークハウス」は、それぞれ独自の魅力を持ち、この地域の相場観にもマッチした物件です。 【オークハウスビルの特徴】 オークハウスビルは、1983年に新耐震基準で竣工されたビルで、代々木上原駅から徒歩1分という優れたアクセスを誇ります。駅近でありながら、敷金が安価でビジネス、特にベンチャー企業にとって魅力的な条件を備えています。ビル内に月極駐車場があり、車を利用するビジネスパーソンにも便利な設備が整っています。1階にはコンビニが入居しており、日常のちょっとした買い物にも困りません。 【ザオークハウスの特徴】 1979年竣工のザオークハウスは、地上4階建てのマンションタイプ賃貸オフィス物件です。こちらも代々木上原駅から徒歩2分という好立地にあり、基準階坪数は約50坪で、中小規模の企業に適したサイズ感です。個別空調や機械警備などセキュリティもしっかりしており、1階にはファミリーマートが入居しているため、利便性が高いことが特長です。 【相場観としての考察】 渋谷区上原エリアは、都心へのアクセスが良い一方で、閑静な住宅街が広がる地域です。このため、ビジネスとプライベートのバランスを求める企業や個人に人気があります。オークハウスビルとザオークハウスは、どちらもこのエリアの魅力を最大限に活かした物件であり、相場としてはこのエリアの平均的な賃料帯に位置しますが、その立地や設備、便利さを考えると非常にコストパフォーマンスが高いと言えるでしょう。 まとめると、オークハウスビルは、新耐震基準施工後の安心感と、ベンチャー企業に特に魅力的な条件を持つビルです。一方、ザオークハウスは、中小規模の企業に適したサイズ感と利便性の高さが魅力の賃貸オフィス物件です。どちらも渋谷区上原エリアの落ち着いた雰囲気と優れたアクセスを兼ね備え、ビジネスの拠点として最適な選択肢となるでしょう。
オークハウスのこだわり
自分で探すより問い合わせる方が早いことがあります
WEB非公開物件があるから
オーナー様のご希望により「WEBでは非公開」にしている物件があります。 それらはWEBでいくら検索しても見つかりません。 先ずは条件などお知らせ頂けましたら非公開物件含め ピッタリのオフィスをご提案させて頂きます。 無理なお勧めはしておりませんので、お気軽にお問い合わせください。
対面でのご相談も受け付けております
ご来店も歓迎です
オフィス移転は社内・社外ともに非公開に行われることが殆どです。そのためアットオフィスでは、基本的に訪問によるコンサルティングを行っておりますが、ご来店の相談も歓迎です。お一人おひとりに親身にご対応させて頂きたい為、要予約とさせて頂いております。ご来店の際は先ずは下記よりご予約下さい。
募集終了のテナント区画
| 階数 | 坪数 | 賃料 + 共益費 | 敷金/礼金敷金 礼金 | 検討 |
|---|---|---|---|---|
| 1階 | 35.96坪 (118.87m²) | 募集終了 | - | - |
| 1階 | 31.46坪 (104m²) | 募集終了 | - | - |
| 1階 | 35.96坪 (118.87m²) | 募集終了 | - | - |
| 1階 | 36.03坪 (119.11m²) | 募集終了 | - | - |
| 2階 | 35.96坪 (118.67m²) | 募集終了 | - | - |
| 2階 | 43.58坪 (144.06m²) | 募集終了 | - | - |
| 2階 | 34.47坪 (113.97m²) | 募集終了 | - | - |
| 2階 | 32.74坪 (108.26m²) | 募集終了 | - | - |
| 3階 | 43.1坪 (142.47m²) | 募集終了 | - | - |
| 3階 | 44.58坪 (147.4m²) | 募集終了 | - | - |
| 4階 | 40坪 (132.23m²) | 募集終了 | - | - |
| 4階 | 34.2坪 (113.06m²) | 募集終了 | - | - |
読込中...
近くのエリアで探してみる
代々木/初台/幡ヶ谷エリアでオークハウスに似た条件の物件
読込中...
| 取扱様態 | 仲介 |
|---|---|
| 取扱会社 | 株式会社 アットオフィス |