TIMECROSS YOKOHAMAの賃料条件
| 階数 | 坪数 | 賃料 + 共益費 | 敷金/礼金敷金 礼金 | 検討 |
|---|---|---|---|---|
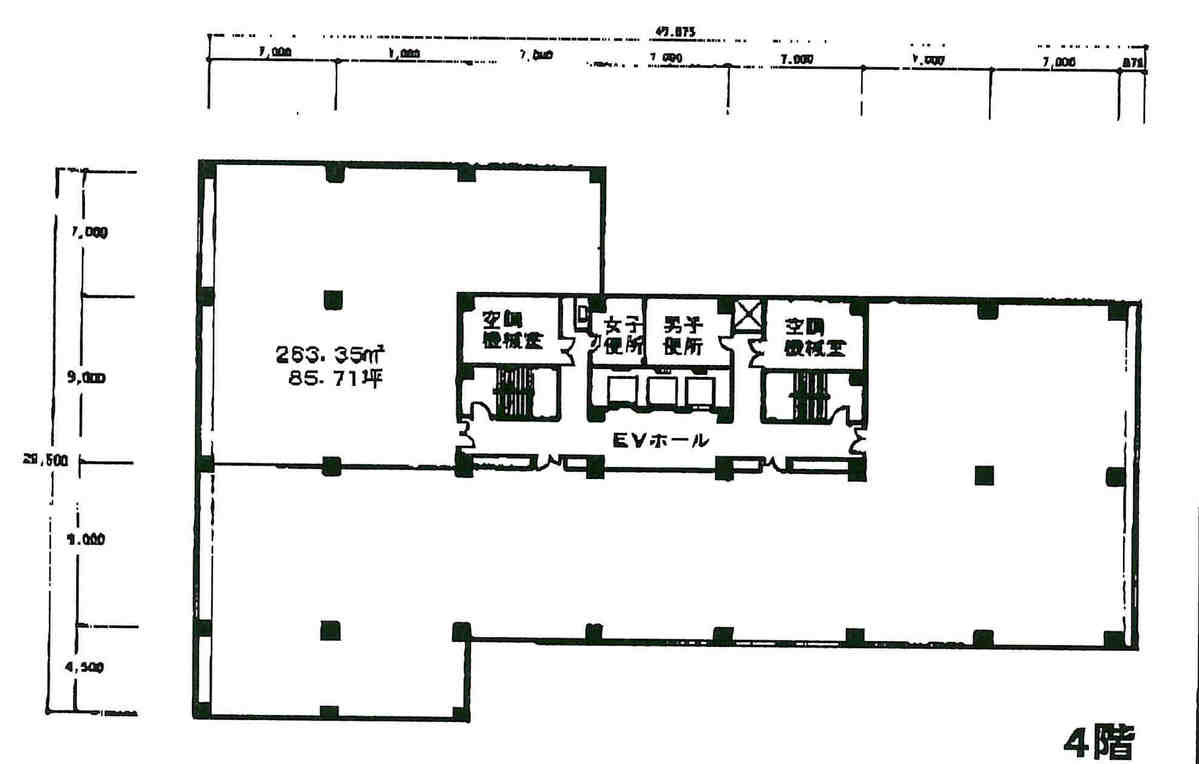
| 4階 | 85.71坪 (283.36m²) | お問合せ下さい (坪:-) | 12ヶ月 無12ヶ月/無 | |
| 4階 | 42.18坪 (139.43m²) | お問合せ下さい (坪:-) | 12ヶ月 無12ヶ月/無 |
※このサイトに記載がある賃貸条件は、敷金・保証金などの預かり金を除き、別途消費税がかかります。
物件情報
設備詳細
| 空調 | 個別空調 |
|---|---|
| トイレ | - |
| 床仕様 | OA対応床(フリーアクセス) |
| エレベータ | 3 基 |
| 駐車場設備 | 空有 / 機械式駐車場 |
| その他 | 機械警備 / 大型ビル / 新耐震基準 / フリーレント |
TIMECROSS YOKOHAMAの賃貸オフィス・事務所に関するお問い合わせ
TIMECROSS YOKOHAMAについて
TIMECROSS YOKOHAMA(旧:横浜平和ビル)は、ビジネスの中心地である横浜市中区本町に位置し、みなとみらい線「馬車道」駅から徒歩わずか2分という抜群の立地を誇ります。JR線「関内」駅や「桜木町」駅からも徒歩圏内で、交通の便が非常に良いこの物件は、通勤の利便性を重視する企業にとって理想的なオフィス空間です。 1986年に竣工されたこのビルは、地下1階地上9階建ての鉄骨鉄筋コンクリート造で、2024年にはエントランスやエレベーターホールのリニューアルが完了し、高級感あふれる空間に生まれ変わりました。訪れるたびに感じるその上質な雰囲気は、ビジネスパートナーやクライアントに対しても好印象を与えるでしょう。 基準階面積は959.40㎡、延床面積は10,836.30㎡と広々としたスペースを提供し、個別空調設備により快適なオフィス環境を実現しています。さらに、OAフロアやタイルカーペット仕上げ、300kg/㎡の床荷重、40VA/㎡の電気容量など、ビジネスに必要な設備が整っています。エレベーターは3基設置されており、忙しいオフィスワークにもスムーズに対応可能です。 ビルの1階には郵便局が入居しており、業務上の手続きが迅速に行える点も魅力です。さらに、徒歩2分圏内には三大メガバンクの横浜支店があり、金融機関へのアクセスも申し分ありません。テナント専用のリフレッシュコーナーや喫煙室も完備されており、従業員の働きやすさをサポートします。 周辺には、歴史的な建造物や多彩なレストラン、カフェが点在し、ビジネスシーンだけでなくランチやアフターファイブの楽しみも充実しています。横浜港にほど近いこのエリアは、開放感ある景観を楽しめるだけでなく、国際的なビジネスの拠点としても非常に人気です。新たなオフィスの開設や移転を検討中の企業にとって、TIMECROSS YOKOHAMAは確かな選択となるでしょう。
自分で探すより問い合わせる方が早いことがあります
WEB非公開物件があるから
オーナー様のご希望により「WEBでは非公開」にしている物件があります。 それらはWEBでいくら検索しても見つかりません。 先ずは条件などお知らせ頂けましたら非公開物件含め ピッタリのオフィスをご提案させて頂きます。 無理なお勧めはしておりませんので、お気軽にお問い合わせください。
対面でのご相談も受け付けております
ご来店も歓迎です
オフィス移転は社内・社外ともに非公開に行われることが殆どです。そのためアットオフィスでは、基本的に訪問によるコンサルティングを行っておりますが、ご来店の相談も歓迎です。お一人おひとりに親身にご対応させて頂きたい為、要予約とさせて頂いております。ご来店の際は先ずは下記よりご予約下さい。
募集終了のテナント区画
| 階数 | 坪数 | 賃料 + 共益費 | 敷金/礼金敷金 礼金 | 検討 |
|---|---|---|---|---|
| B1階 | 59.33坪 (196.13m²) | 募集終了 | - | - |
| B1階 | 15.69坪 (51.87m²) | 募集終了 | - | - |
| 1階 | 52.14坪 (172.36m²) | 募集終了 | - | - |
| 2階 | 80.97坪 (267.67m²) | 募集終了 | - | - |
| 2階 | 143.8坪 (475.37m²) | 募集終了 | - | - |
| 2階 | 172.93坪 (571.67m²) | 募集終了 | - | - |
| 3階 | 119.46坪 (394.91m²) | 募集終了 | - | - |
| 3階 | 87.34坪 (288.72m²) | 募集終了 | - | - |
| 3階 | 83.4坪 (275.7m²) | 募集終了 | - | - |
| 3階 | 33.28坪 (109.09m²) | 募集終了 | - | - |
| 3階 | 49.66坪 (165.28m²) | 募集終了 | - | - |
| 4階 | 143.8坪 (475.37m²) | 募集終了 | - | - |
| 4階 | 38.34坪 (126.74m²) | 募集終了 | - | - |
| 5階 | 229.44坪 (758.47m²) | 募集終了 | - | - |
| 5階 | 143.8坪 (475.37m²) | 募集終了 | - | - |
| 5階 | 103.67坪 (342.71m²) | 募集終了 | - | - |
| 5階 | 62.45坪 (206.45m²) | 募集終了 | - | - |
| 5階 | 40.12坪 (132.63m²) | 募集終了 | - | - |
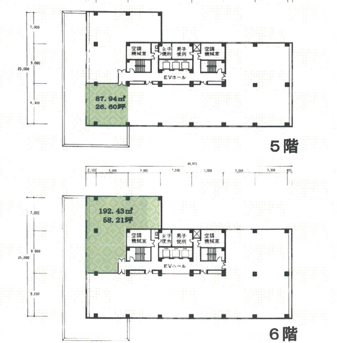
| 5階 | 58.21坪 (192.43m²) | 募集終了 | - | - |
| 6階 | 26.31坪 (86.98m²) | 募集終了 | - | - |
| 6階 | 58.21坪 (192.43m²) | 募集終了 | - | - |
| 6階 | 31.05坪 (102.65m²) | 募集終了 | - | - |
| 6階 | 40.12坪 (132.62m²) | 募集終了 | - | - |
| 8階 | 83.4坪 (275.7m²) | 募集終了 | - | - |
| 8階 | 46.07坪 (152.29m²) | 募集終了 | - | - |
| 8階 | 59.83坪 (197.79m²) | 募集終了 | - | - |
| 9階 | 59.8坪 (197.69m²) | 募集終了 | - | - |
| 9階 | 39.8坪 (131.57m²) | 募集終了 | - | - |
| 9階 | 58.21坪 (192.43m²) | 募集終了 | - | - |
| 9階 | 84.52坪 (279.4m²) | 募集終了 | - | - |
| 9階 | 29.58坪 (97.79m²) | 募集終了 | - | - |
| 9階 | 35.39坪 (116.99m²) | 募集終了 | - | - |
| 9階 | 114.11坪 (377.22m²) | 募集終了 | - | - |
読込中...
中区エリアでTIMECROSS YOKOHAMAに似た条件の物件
読込中...
| 取扱様態 | 仲介 |
|---|---|
| 取扱会社 | 株式会社 アットオフィス |