宇徳ビルディング2階の賃貸情報
面積
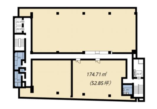
52.85 坪 (174.71m²)
賃料
共益費-
敷金 / 礼金 / 保証金-
償却-
更新料-
※このサイトに記載がある賃貸条件は、敷金・保証金などの預かり金を除き、別途消費税がかかります。
宇徳ビルディングの建物概要
設備詳細
| 空調 | 個別空調 |
|---|---|
| トイレ | - |
| 床仕様 | - |
| エレベータ | 3 基 |
| 駐車場設備 | - |
| その他 | 大型ビル / 神奈川賃料が10000円以下 |
宇徳ビルディングについて
桜木町駅徒歩すぐの好立地。目の前には横浜市役所がありわかりやすい建物となっております。大型物件で1フロア複数テナントで分割しており、多種多様な広さを選定できます。築年数は経過しておりますが、耐震補強済みです。ビル内にある希少価値の高い喫煙所もあり、OAフロア有、全面ガラス張りなので、室内広く感じます。事務所だけではなく、来店型店舗も受け入れできる物件になります。
自分で探すより問い合わせる方が早いことがあります
WEB非公開物件があるから
オーナー様のご希望により「WEBでは非公開」にしている物件があります。 それらはWEBでいくら検索しても見つかりません。 先ずは条件などお知らせ頂けましたら非公開物件含め ピッタリのオフィスをご提案させて頂きます。 無理なお勧めはしておりませんので、お気軽にお問い合わせください。
WEBから条件問い合わせをする(無料)
対面でのご相談も受け付けております
ご来店も歓迎です
オフィス移転は社内・社外ともに非公開に行われることが殆どです。そのためアットオフィスでは、基本的に訪問によるコンサルティングを行っておりますが、ご来店の相談も歓迎です。お一人おひとりに親身にご対応させて頂きたい為、要予約とさせて頂いております。ご来店の際は先ずは下記よりご予約下さい。
来店予約をする
中区エリアで宇徳ビルディングに似た条件の物件
読込中...
宇徳ビルディングと同じ最寄駅の物件
読込中...
| 取扱様態 | 仲介 |
|---|---|
| 取扱会社 | 株式会社 アットオフィス |