ル・グラシエルBLDG.574階の賃貸情報
14.97 坪 (49.49m²)
※このサイトに記載がある賃貸条件は、敷金・保証金などの預かり金を除き、別途消費税がかかります。
ル・グラシエルBLDG.57の建物概要
設備詳細
| 空調 | - |
|---|---|
| トイレ | - |
| 床仕様 | - |
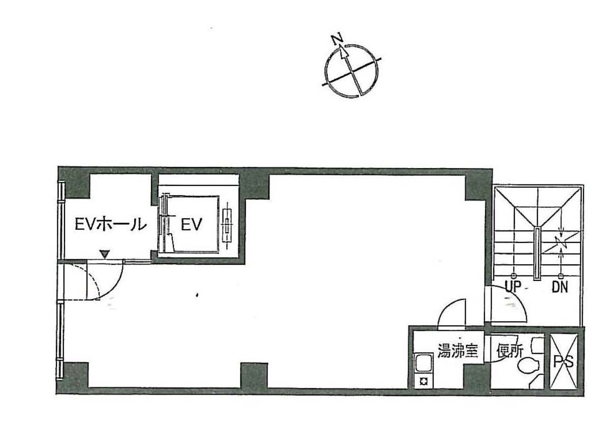
| エレベータ | 1 基 |
| 駐車場設備 | - |
| その他 | 新耐震基準 / 機械警備 / 光ファイバー |
ル・グラシエルBLDG.574階の賃貸オフィス・事務所に関するお問い合わせ
ル・グラシエルBLDG.57について
新橋KIビルは、東京都港区新橋2丁目に位置する、オフィス利用を主目的とした賃貸物件です。この物件は、その優れた立地、利便性、そして機能的な設備を備えており、多様なビジネスニーズに応えるための環境を提供しています。以下、新橋KIビルの特徴、立地、設備に関する詳細な情報を紹介します。 【特徴】 新橋KIビルは、現代的なオフィススペースを求める企業に適した物件です。このビルは、最新の設備と快適なオフィス環境を提供し、効率的かつ生産的なビジネス活動をサポートします。一つのエレベーターを備えており、スムーズな移動を可能にします。また、セキュリティシステムも整っており、入居者の安全とセキュリティを確保しています。 【立地】 このビルは、港区新橋2丁目に位置しており、交通アクセスの利便性が非常に高いです。新橋駅から徒歩圏内にあり、JR線、東京メトロ線、ゆりかもめなど、複数の交通網が利用可能です。また、周辺には多様な飲食店や商業施設があり、ビジネスアフターの憩いの場所としても最適です。この立地は、ビジネスの機会を広げる上で大きなメリットとなります。 【設備】 新橋KIビルは、オフィスとしての機能性を重視した設計がなされています。快適なオフィス環境を実現するための設備が整っており、現代のビジネスニーズに対応するための高速インターネット接続、エネルギー効率の高い照明、そして快適な室温を保つための空調システムなどが備えられています。また、1機のエレベーターは、ビル内の移動をスムーズにします。 【独自の魅力とビジネスにおける利点】 新橋KIビルの最大の魅力は、その立地と設備の良さにあります。新橋という都心にありながら、静かで落ち着いたオフィス環境を提供し、ビジネスの効率化を図ることができます。また、周辺の豊富な商業施設と飲食店は、ビジネスチャンスの創出や従業員の福利厚生の向上にも寄与します。加えて、このビルは、大小様々な企業のニーズに応える柔軟なオフィススペースを提供しており、企業の成長に合わせたスペースの変更も容易です。新橋KIビルは、ビジネスを成功に導くための最適な環境を提供する、魅力的なオフィス賃貸物件です。
ル・グラシエルBLDG.57のこだわり
自分で探すより問い合わせる方が早いことがあります
WEB非公開物件があるから
オーナー様のご希望により「WEBでは非公開」にしている物件があります。 それらはWEBでいくら検索しても見つかりません。 先ずは条件などお知らせ頂けましたら非公開物件含め ピッタリのオフィスをご提案させて頂きます。 無理なお勧めはしておりませんので、お気軽にお問い合わせください。
対面でのご相談も受け付けております
ご来店も歓迎です
オフィス移転は社内・社外ともに非公開に行われることが殆どです。そのためアットオフィスでは、基本的に訪問によるコンサルティングを行っておりますが、ご来店の相談も歓迎です。お一人おひとりに親身にご対応させて頂きたい為、要予約とさせて頂いております。ご来店の際は先ずは下記よりご予約下さい。
近くのエリアで探してみる
新橋/虎ノ門/神谷町エリアでル・グラシエルBLDG.57に似た条件の物件
読込中...
ル・グラシエルBLDG.57と同じ最寄駅の物件
読込中...
| 取扱様態 | 仲介 |
|---|---|
| 取扱会社 | 株式会社 アットオフィス |