三田ビル3階の賃貸情報
30 坪 (99.17m²)
450,000円 (坪:15,000 円)
※このサイトに記載がある賃貸条件は、敷金・保証金などの預かり金を除き、別途消費税がかかります。
三田ビルの建物概要
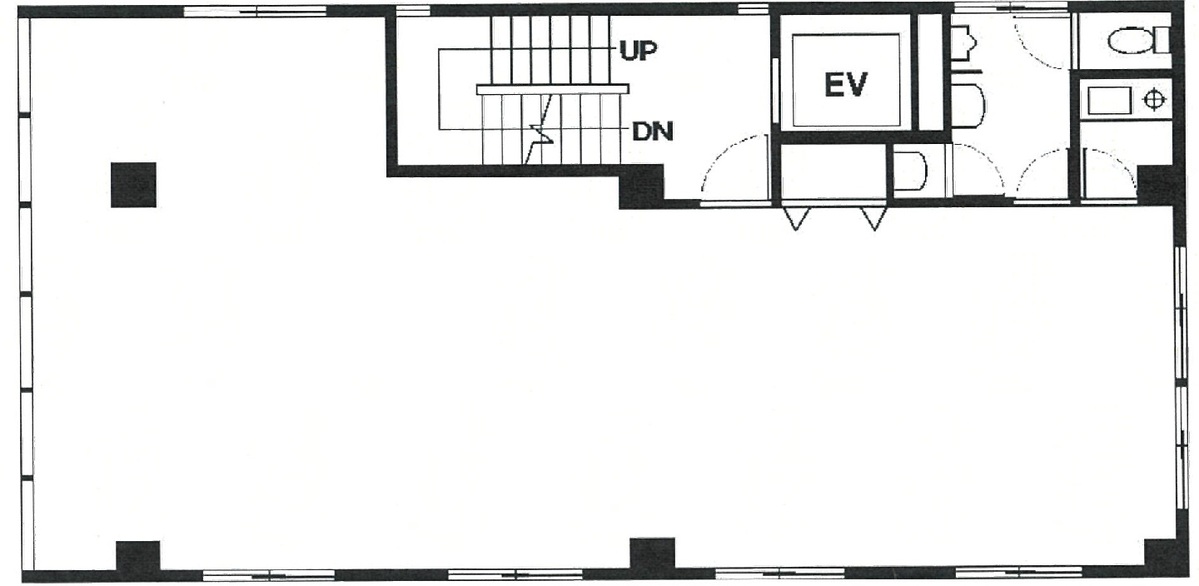
設備詳細
| 空調 | 個別空調 |
|---|---|
| トイレ | 男女共用トイレ・室内 |
| 床仕様 | - |
| エレベータ | 1 基 |
| 駐車場設備 | - |
| その他 | - |
三田ビル3階の賃貸オフィス・事務所に関するお問い合わせ
三田ビルについて
三田ビルは渋谷区渋谷2丁目、六本木通りから一本中に入った静かな場所に位置しており、1977年に竣工した賃貸オフィスビルです。このビルは5階建てで、エレベーターは1基設置されております。基準階は約30坪となっており、二面採光で自然光が豊富に入るため、明るく快適なオフィス環境を提供します。室内にはトイレや給湯スペースが備え付けられており、柱が存在するため、オフィスレイアウトの際には工夫が求められます。 外観は茶色のパネル張りで、レトロな雰囲気を持ち合わせています。このビルは、駐車場がないものの、隣接するコインパーキングが利用可能です。また、最寄りの渋谷駅からは徒歩9分と、アクセスに優れています。表参道駅までも徒歩10分ほどで行けるため、複数の交通路線を利用しやすい立地にあります。 周辺環境としては、オフィスビルが多く立ち並ぶエリアに位置しながらも、前面の通りは落ち着きある雰囲気を保ち、ビジネスに適した静かな環境を提供しています。徒歩1分の距離にコンビニがあり、近隣には飲食店やスターバックスコーヒー、郵便局が位置しており、日々の業務に必要なものがすぐに手に入ります。 三田ビルは、シンプルな形状で効率的なオフィスレイアウトが可能です。個別空調を備えているため、各テナントは快適な作業環境を自由に調整できます。その上、ワンフロア・ワンテナントの構成は、プライバシーと独立性を高め、集中して業務に取り組むことが可能です。 このビルは、渋谷というビジネスの中心地にあること、そして、充実した周辺環境と交通アクセスの良さを活かして、様々な業種の企業に適したオフィススペースを提供しています。静かで落ち着いた立地と、使い勝手の良い施設が、ビジネスの成功をサポートします。
三田ビルのこだわり
自分で探すより問い合わせる方が早いことがあります
WEB非公開物件があるから
オーナー様のご希望により「WEBでは非公開」にしている物件があります。 それらはWEBでいくら検索しても見つかりません。 先ずは条件などお知らせ頂けましたら非公開物件含め ピッタリのオフィスをご提案させて頂きます。 無理なお勧めはしておりませんので、お気軽にお問い合わせください。
対面でのご相談も受け付けております
ご来店も歓迎です
オフィス移転は社内・社外ともに非公開に行われることが殆どです。そのためアットオフィスでは、基本的に訪問によるコンサルティングを行っておりますが、ご来店の相談も歓迎です。お一人おひとりに親身にご対応させて頂きたい為、要予約とさせて頂いております。ご来店の際は先ずは下記よりご予約下さい。
渋谷エリアで三田ビルに似た条件の物件
読込中...
三田ビルと同じ最寄駅の物件
読込中...
| 取扱様態 | 仲介 |
|---|---|
| 取扱会社 | 株式会社 アットオフィス |