初台光山ビル5階の賃貸情報
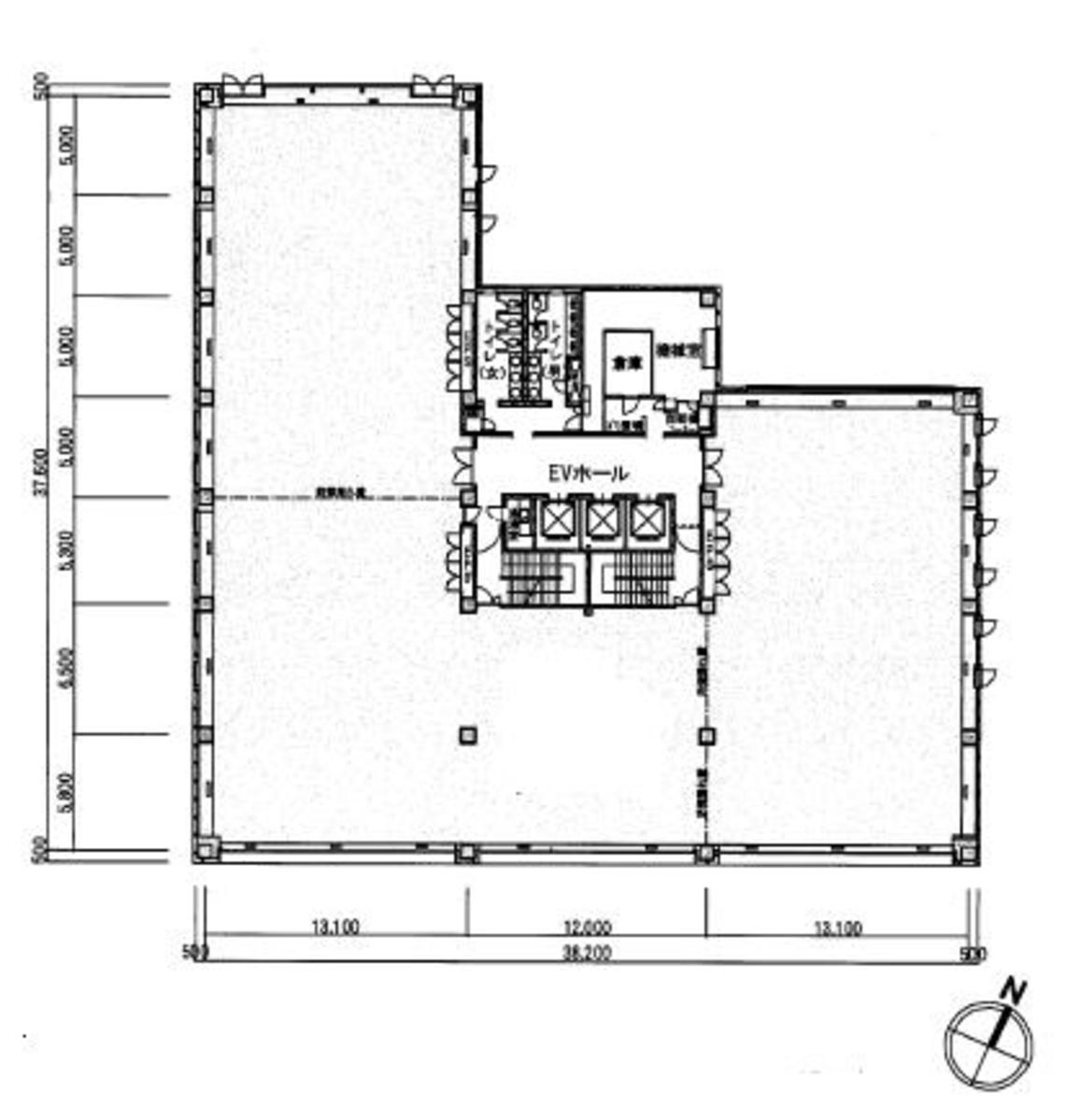
294.85 坪 (974.71m²)
※このサイトに記載がある賃貸条件は、敷金・保証金などの預かり金を除き、別途消費税がかかります。
初台光山ビルの建物概要
設備詳細
| 空調 | 個別空調 |
|---|---|
| トイレ | - |
| 床仕様 | OA対応床(フリーアクセス) |
| エレベータ | 3 基 |
| 駐車場設備 | 空有 / 機械式駐車場 / 平置き駐車場 |
| その他 | 24時間利用可 / 大型ビル / 管理人常駐 / 新耐震基準 / フリーレント |
初台光山ビルについて
東京のビジネスシーンを象徴するような、渋谷区初台に位置する初台光山ビルは、その立地と設備で多くの企業にとって理想的なオフィス空間を提供しています。1986年5月に竣工し、新耐震基準を満たしたこの7階建てのビルは、地下1階を含む構造で、エレベーターは3機設置されており、快適な移動を保証しています。基準階面積は約294.85坪と広々としており、天井高2,600mmの開放感ある空間で、ゆとりを持って業務を遂行できます。 初台駅から徒歩わずか1分の距離にあり、京王新線に直結しているため、都心部へのアクセスも抜群です。さらに、甲州街道沿いに位置しているため、車やバスでの移動も大変便利です。ビル周辺には飲食店やカフェが多数存在し、ビジネスマンの日々のニーズを満たしています。 初台光山ビルはセキュリティ面でも充実しており、機械警備に加え、24時間警備員が常駐しています。これにより、テナント企業は安心してビジネスを行うことができます。また、個別空調システム、OAフロア、光ファイバー対応など、最先端の設備が整っており、現代のビジネスニーズに応える環境が整っています。 23台を収容可能な駐車場(地下1階に平置き、機械式)も完備されており、車を利用する従業員や来客の利便性も高められています。さらに、御影石貼りのエントランスホールは格調高く、ビルに入るだけで優雅な気分を味わえます。 初台光山ビルは、その立地の利便性、先進的な設備、そして安全性の高い環境を兼ね備え、ビジネスの成功をサポートする理想的なオフィススペースと言えるでしょう。このビルは、企業が成長を遂げるための舞台として、また従業員が快適に働くための場として、最適な選択肢となり得ます。
自分で探すより問い合わせる方が早いことがあります
WEB非公開物件があるから
オーナー様のご希望により「WEBでは非公開」にしている物件があります。 それらはWEBでいくら検索しても見つかりません。 先ずは条件などお知らせ頂けましたら非公開物件含め ピッタリのオフィスをご提案させて頂きます。 無理なお勧めはしておりませんので、お気軽にお問い合わせください。
対面でのご相談も受け付けております
ご来店も歓迎です
オフィス移転は社内・社外ともに非公開に行われることが殆どです。そのためアットオフィスでは、基本的に訪問によるコンサルティングを行っておりますが、ご来店の相談も歓迎です。お一人おひとりに親身にご対応させて頂きたい為、要予約とさせて頂いております。ご来店の際は先ずは下記よりご予約下さい。
近くのエリアで探してみる
代々木/初台/幡ヶ谷エリアで初台光山ビルに似た条件の物件
読込中...
初台光山ビルと同じ最寄駅の物件
読込中...
| 取扱様態 | 仲介 |
|---|---|
| 取扱会社 | 株式会社 アットオフィス |