※このサイトに記載がある賃貸条件は、敷金・保証金などの預かり金を除き、別途消費税がかかります。
物件情報
設備詳細
| 空調 | 個別空調 |
|---|---|
| トイレ | 男女共用トイレ・室内 |
| 床仕様 | - |
| エレベータ | 2 基 |
| 駐車場設備 | - |
| その他 | 24時間利用可 / 管理人常駐 / SOHO/マンション / 光ファイバー / オートロック |
ノア道玄坂の賃貸オフィス・事務所に関するお問い合わせ
ノア道玄坂について
渋谷区道玄坂2-15-1にひっそりと佇む、ノア道玄坂ビル。このマンションタイプオフィスは、その赤いレンガタイルの外観が特徴的で、一見の価値あり。1979年の新耐震基準前に竣工しながらも、安心と信頼を提供するため管理人が常駐し、ビル内の安全と秩序を守り続けています。この地でビジネスを展開する企業やSOHOにとって、まさに理想的な拠点の一つと言えるでしょう。 立地においては、渋谷駅から徒歩わずか5分という圧倒的な利便性を誇ります。渋谷マークシティ出口からすぐの位置にあり、日々の通勤はもちろん、ビジネスでの移動にも最適。さらに、3駅以上が利用可能な好立地で、都内各所へのアクセスに優れています。ビジネスチャンスを広げるための絶好の地点にあると言えるでしょう。 設備面では、ビル内に2機のエレベーターが設置されており、スムーズな移動が可能。24時間利用可能なため、時間を気にせずビジネスを行うことができます。また、月極駐車場がビル内にあり、お車での通勤やビジネス用途にも対応しています。空き状況についてはお問い合わせが必要ですが、この地域では貴重なサービスと言えるでしょう。 内装についても、エントランスは非常に美しく、来客者に対して良い印象を与えます。オフィススペースはスモールオフィスから始まり、様々なビジネスニーズに合わせた大きさが用意されています。また、クリニックとしての利用も可能で、非常に多様な用途に応える設計となっています。 ノア道玄坂ビルは、その立地、設備、安心感から見ても、渋谷でビジネスを展開する企業や個人にとって、最適な選択肢の一つです。このビルを拠点に、あなたのビジネスをさらに発展させましょう。
ノア道玄坂のこだわり
自分で探すより問い合わせる方が早いことがあります
WEB非公開物件があるから
オーナー様のご希望により「WEBでは非公開」にしている物件があります。 それらはWEBでいくら検索しても見つかりません。 先ずは条件などお知らせ頂けましたら非公開物件含め ピッタリのオフィスをご提案させて頂きます。 無理なお勧めはしておりませんので、お気軽にお問い合わせください。
対面でのご相談も受け付けております
ご来店も歓迎です
オフィス移転は社内・社外ともに非公開に行われることが殆どです。そのためアットオフィスでは、基本的に訪問によるコンサルティングを行っておりますが、ご来店の相談も歓迎です。お一人おひとりに親身にご対応させて頂きたい為、要予約とさせて頂いております。ご来店の際は先ずは下記よりご予約下さい。
募集終了のテナント区画
| 階数 | 坪数 | 賃料 + 共益費 | 敷金/礼金敷金 礼金 | 検討 |
|---|---|---|---|---|
| B1階 | 27.26坪 (90.1m²) | 募集終了 | - | - |
| 1階 | 15.02坪 (49.65m²) | 募集終了 | - | - |
| 1階 | 7.02坪 (23.21m²) | 募集終了 | - | - |
| 1階 | 7.02坪 (23.21m²) | 募集終了 | - | - |
| 1階 | 17坪 (56.19m²) | 募集終了 | - | - |
| 1階 | 7.02坪 (23.22m²) | 募集終了 | - | - |
| 1階 | 25.86坪 (85.48m²) | 募集終了 | - | - |
| 1階 | 6.67坪 (22.04m²) | 募集終了 | - | - |
| 1階 | 13.56坪 (44.83m²) | 募集終了 | - | - |
| 1階 | 50坪 (165.3m²) | 募集終了 | - | - |
| 2階 | 27.2坪 (89.92m²) | 募集終了 | - | - |
| 2階 | 7.2坪 (23.8m²) | 募集終了 | - | - |
| 3階 | 7.03坪 (23.24m²) | 募集終了 | - | - |
| 3階 | 13.56坪 (44.83m²) | 募集終了 | - | - |
| 3階 | 6.47坪 (21.42m²) | 募集終了 | - | - |
| 4階 | 7.02坪 (23.2m²) | 募集終了 | - | - |
| 5階 | 23.76坪 (78.54m²) | 募集終了 | - | - |
| 5階 | 13.56坪 (44.83m²) | 募集終了 | - | - |
| 5階 | 7.21坪 (23.83m²) | 募集終了 | - | - |
| 6階 | 7.2坪 (23.8m²) | 募集終了 | - | - |
| 6階 | 7.39坪 (24.43m²) | 募集終了 | - | - |
| 6階 | 8.13坪 (26.86m²) | 募集終了 | - | - |
| 6階 | 15.02坪 (49.65m²) | 募集終了 | - | - |
| 6階 | 13.56坪 (44.83m²) | 募集終了 | - | - |
| 7階 | 7.16坪 (23.8m²) | 募集終了 | - | - |
| 7階 | 7.93坪 (26.23m²) | 募集終了 | - | - |
| 7階 | 6.35坪 (21m²) | 募集終了 | - | - |
| 8階 | 7.2坪 (23.8m²) | 募集終了 | - | - |
| 8階 | 14.05坪 (46.44m²) | 募集終了 | - | - |
| 9階 | 23.8坪 (78.67m²) | 募集終了 | - | - |
| 9階 | 6.81坪 (22.5m²) | 募集終了 | - | - |
| 9階 | 7.37坪 (24.36m²) | 募集終了 | - | - |
| 9階 | 7.02坪 (23.22m²) | 募集終了 | - | - |
| 10階 | 6.48坪 (21.4m²) | 募集終了 | - | - |
| 11階 | 6.53坪 (21.6m²) | 募集終了 | - | - |
| 12階 | 5.45坪 (18.02m²) | 募集終了 | - | - |
| 12階 | 14.02坪 (46.35m²) | 募集終了 | - | - |
| 12階 | 6.49坪 (21.45m²) | 募集終了 | - | - |
| 12階 | 7.2坪 (23.8m²) | 募集終了 | - | - |
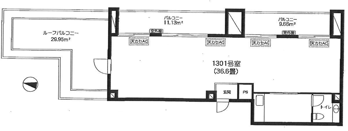
| 13階 | 21.99坪 (72.69m²) | 募集終了 | - | - |
| 13階 | 13.56坪 (44.82m²) | 募集終了 | - | - |
| 13階 | 7.18坪 (23.76m²) | 募集終了 | - | - |
| 15階 | 7.18坪 (23.76m²) | 募集終了 | - | - |
読込中...
渋谷エリアでノア道玄坂に似た条件の物件
読込中...
| 取扱様態 | 仲介 |
|---|---|
| 取扱会社 | 株式会社 アットオフィス |