泉ビル6階の賃貸情報
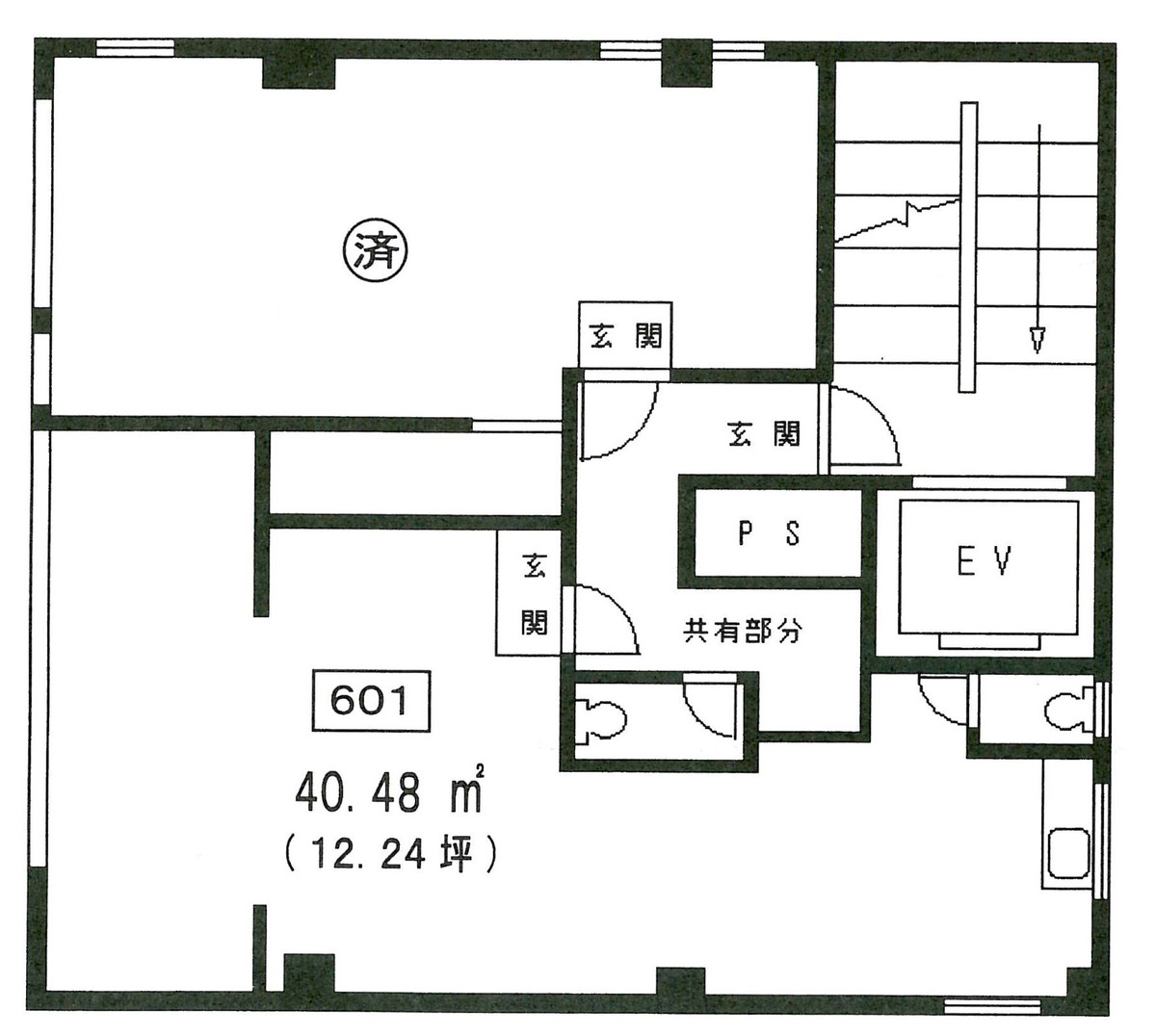
12.24 坪 (40.46m²)
※このサイトに記載がある賃貸条件は、敷金・保証金などの預かり金を除き、別途消費税がかかります。
泉ビルの建物概要
設備詳細
| 空調 | 個別空調 |
|---|---|
| トイレ | 男女別トイレ室内 / 男女別トイレ室外 |
| 床仕様 | - |
| エレベータ | 1 基 |
| 駐車場設備 | - |
| その他 | - |
泉ビル6階の賃貸オフィス・事務所に関するお問い合わせ
泉ビルについて
泉ビルは、杉並区高円寺北2丁目に位置する地上7階建ての建物です。最寄り駅として、総武・中央緩行線「高円寺駅」から徒歩1分、同駅中央線から2分、丸ノ内線「新高円寺駅」からも徒歩13分の距離にあり、複数の鉄道路線を利用する方にも対応しています。建物にはエレベーターが設置されており、来訪者や利用者の移動にも配慮されています。 周辺は高円寺の特徴的な環境に位置し、近隣エリアとの連携や事業拠点としての活用がイメージできます。オフィスや店舗としての検討時にも、建物規模や立地特性により多様な利用を思い描くことができるでしょう。交通手段に応じたアクセス方法が選択できるため、企業活動の拠点としてもご検討いただけます。 現地での具体的な利用方法や詳細な条件については、現場の状況と併せてご案内いたします。詳細はお問い合わせください。
泉ビルのこだわり
自分で探すより問い合わせる方が早いことがあります
WEB非公開物件があるから
オーナー様のご希望により「WEBでは非公開」にしている物件があります。 それらはWEBでいくら検索しても見つかりません。 先ずは条件などお知らせ頂けましたら非公開物件含め ピッタリのオフィスをご提案させて頂きます。 無理なお勧めはしておりませんので、お気軽にお問い合わせください。
対面でのご相談も受け付けております
ご来店も歓迎です
オフィス移転は社内・社外ともに非公開に行われることが殆どです。そのためアットオフィスでは、基本的に訪問によるコンサルティングを行っておりますが、ご来店の相談も歓迎です。お一人おひとりに親身にご対応させて頂きたい為、要予約とさせて頂いております。ご来店の際は先ずは下記よりご予約下さい。
杉並区エリアで泉ビルに似た条件の物件
読込中...
泉ビルと同じ最寄駅の物件
読込中...
| 取扱様態 | 仲介 |
|---|---|
| 取扱会社 | 株式会社 アットオフィス |