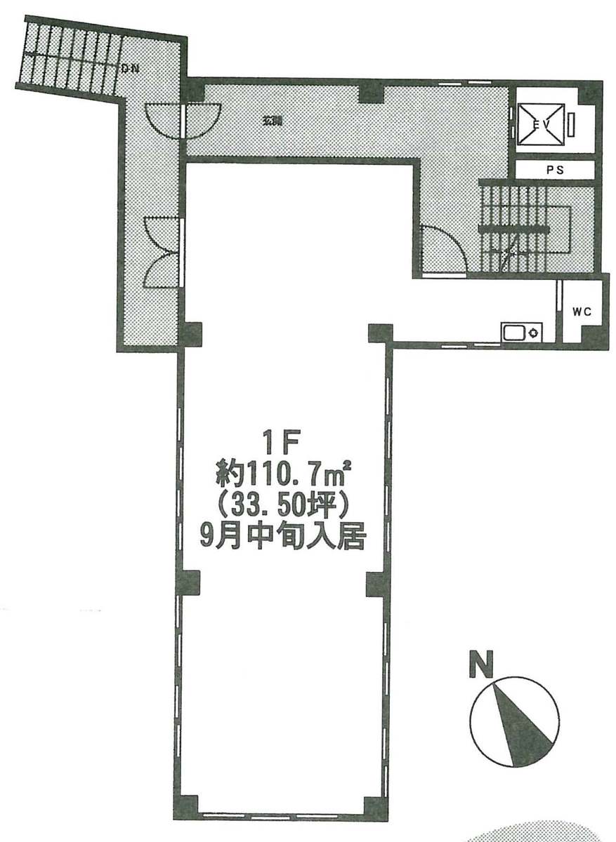
丸おビル1階の賃貸情報
33.5 坪 (110.7m²)
※このサイトに記載がある賃貸条件は、敷金・保証金などの預かり金を除き、別途消費税がかかります。
丸おビルの建物概要
設備詳細
| 空調 | 個別空調 |
|---|---|
| トイレ | - |
| 床仕様 | - |
| エレベータ | 1 基 |
| 駐車場設備 | - |
| その他 | 東京賃料が坪11000円以下 / 1階の物件 |
丸おビル1階の賃貸オフィス・事務所に関するお問い合わせ
丸おビルについて
新宿区高田馬場1丁目に位置する「丸おビル」は、複数の鉄道路線を利用できる立地にあります。最寄りの副都心線「西早稲田駅」からは徒歩4分、さらに山手線および東京地下鉄東西線「高田馬場駅」も徒歩5分の距離です。ビルは地上4階建てで、エレベーターを1基備えています。周辺はビジネスや教育施設、飲食店が点在しており、さまざまな業種の法人活動の拠点としてご検討いただけます。建物は大通り沿いに位置し、視認性にも配慮した設計となっています。また、駅からの歩行経路には屋根付きの歩道もあり、天候に左右されにくい通勤や来客動線を確保できます。事務所やクリニック、サービス業など、多様な用途に応じた導線設計が可能な点も特長です。ご検討の際は、建物の現地内覧も可能です。詳細はお問い合わせください。
自分で探すより問い合わせる方が早いことがあります
WEB非公開物件があるから
オーナー様のご希望により「WEBでは非公開」にしている物件があります。 それらはWEBでいくら検索しても見つかりません。 先ずは条件などお知らせ頂けましたら非公開物件含め ピッタリのオフィスをご提案させて頂きます。 無理なお勧めはしておりませんので、お気軽にお問い合わせください。
対面でのご相談も受け付けております
ご来店も歓迎です
オフィス移転は社内・社外ともに非公開に行われることが殆どです。そのためアットオフィスでは、基本的に訪問によるコンサルティングを行っておりますが、ご来店の相談も歓迎です。お一人おひとりに親身にご対応させて頂きたい為、要予約とさせて頂いております。ご来店の際は先ずは下記よりご予約下さい。
大久保/高田馬場エリアで丸おビルに似た条件の物件
読込中...
丸おビルと同じ最寄駅の物件
読込中...
| 取扱様態 | 仲介 |
|---|---|
| 取扱会社 | 株式会社 アットオフィス |