※このサイトに記載がある賃貸条件は、敷金・保証金などの預かり金を除き、別途消費税がかかります。
物件情報
設備詳細
| 空調 | - |
|---|---|
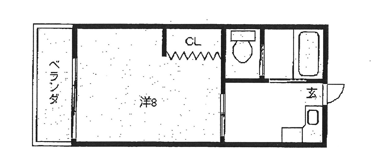
| トイレ | 男女共用トイレ・室内 |
| 床仕様 | - |
| エレベータ | 1 基 |
| 駐車場設備 | - |
| その他 | SOHO/マンション / 光ファイバー / 保証金・敷金+礼金が3か月以下 |
原宿第2コーポの賃貸オフィス・事務所に関するお問い合わせ
原宿第2コーポについて
原宿第2コーポビルは、都心のオアシス、渋谷区千駄ヶ谷3丁目に位置するSOHOや事務所利用が相談可能なマンションです。この地域は、静かな住宅街として知られ、日々の業務に集中するための理想的な環境を提供します。一方で、原宿や表参道といった若者の文化とファッションの中心地にも近く、ビジネスのための豊富なネットワーキングの機会を享受できます。 このビルは1967年の新耐震基準が導入される以前に竣工しましたが、その重厚な造りは時を経ても変わらぬ安心感を提供しています。設備面では、ビル内に駐車場を備えており、都心でのビジネスに欠かせない車での移動の利便性を高めています。また、ビルにはエレベーターが1機設置されており、快適な移動をサポートします。 立地に関しては、渋谷区千駄ヶ谷3丁目は、ビジネスと文化の融合が見られる地域です。徒歩圏内には、カフェやレストランが豊富にあり、ビジネスミーティングやアフター5のリラックスタイムに最適です。また、原宿や表参道へも近く、国内外からの観光客で賑わうこのエリアは、ビジネスの発展にも寄与しています。 エリアの相場観としては、渋谷区千駄ヶ谷3丁目は都心に位置しながらも比較的落ち着いた雰囲気を保持しており、SOHOや事務所利用に適したリーズナブルな価格設定が魅力です。ビジネスのスタートアップや拡張期にある企業にとって、コストパフォーマンスの高い選択肢と言えるでしょう。 原宿第2コーポビルは、その歴史ある建物の風格と現代のビジネスニーズを満たす設備、そして都心でありながらも落ち着いた環境を兼ね備え、多様な業種の企業にとって魅力的なオフィススペースを提供しています。ビジネスの新たな拠点として、ぜひこのビルをご検討ください。
原宿第2コーポのこだわり
自分で探すより問い合わせる方が早いことがあります
WEB非公開物件があるから
オーナー様のご希望により「WEBでは非公開」にしている物件があります。 それらはWEBでいくら検索しても見つかりません。 先ずは条件などお知らせ頂けましたら非公開物件含め ピッタリのオフィスをご提案させて頂きます。 無理なお勧めはしておりませんので、お気軽にお問い合わせください。
対面でのご相談も受け付けております
ご来店も歓迎です
オフィス移転は社内・社外ともに非公開に行われることが殆どです。そのためアットオフィスでは、基本的に訪問によるコンサルティングを行っておりますが、ご来店の相談も歓迎です。お一人おひとりに親身にご対応させて頂きたい為、要予約とさせて頂いております。ご来店の際は先ずは下記よりご予約下さい。
募集終了のテナント区画
| 階数 | 坪数 | 賃料 + 共益費 | 敷金/礼金敷金 礼金 | 検討 |
|---|---|---|---|---|
| 1階 | 6.05坪 (20m²) | 募集終了 | - | - |
| 1階 | 13.38坪 (44.24m²) | 募集終了 | - | - |
| 1階 | 12.42坪 (41.08m²) | 募集終了 | - | - |
| 2階 | 13坪 (42.98m²) | 募集終了 | - | - |
| 2階 | 8.9坪 (29.42m²) | 募集終了 | - | - |
| 2階 | 13坪 (42.97m²) | 募集終了 | - | - |
| 2階 | 8.9坪 (29.42m²) | 募集終了 | - | - |
| 2階 | 7.21坪 (23.8m²) | 募集終了 | - | - |
| 2階 | 13.91坪 (46m²) | 募集終了 | - | - |
| 3階 | 13.31坪 (44m²) | 募集終了 | - | - |
| 3階 | 10.27坪 (33.97m²) | 募集終了 | - | - |
| 4階 | 13坪 (42.97m²) | 募集終了 | - | - |
| 4階 | 13坪 (42.97m²) | 募集終了 | - | - |
| 4階 | 12.7坪 (42m²) | 募集終了 | - | - |
| 5階 | 22.2坪 (73.38m²) | 募集終了 | - | - |
| 5階 | 17坪 (56.2m²) | 募集終了 | - | - |
| 5階 | 22.2坪 (73.38m²) | 募集終了 | - | - |
| 5階 | 17坪 (56.19m²) | 募集終了 | - | - |
| 5階 | 10.89坪 (36m²) | 募集終了 | - | - |
| 5階 | 12.09坪 (39.99m²) | 募集終了 | - | - |
| 6階 | 14.4坪 (47.6m²) | 募集終了 | - | - |
| 6階 | 13.61坪 (45m²) | 募集終了 | - | - |
| 6階 | 12.42坪 (41.05m²) | 募集終了 | - | - |
| 6階 | 41.08坪 (135.8m²) | 募集終了 | - | - |
| 6階 | 41.08坪 (135.8m²) | 募集終了 | - | - |
| 6階 | 12.09坪 (39.99m²) | 募集終了 | - | - |
| 6階 | 10.3坪 (34.04m²) | 募集終了 | - | - |
| 6階 | 10.3坪 (34.04m²) | 募集終了 | - | - |
| 7階 | 8.13坪 (26.86m²) | 募集終了 | - | - |
読込中...
表参道/外苑前エリアで原宿第2コーポに似た条件の物件
読込中...
| 取扱様態 | 仲介 |
|---|---|
| 取扱会社 | 株式会社 アットオフィス |