※このサイトに記載がある賃貸条件は、敷金・保証金などの預かり金を除き、別途消費税がかかります。
物件情報
設備詳細
| 空調 | - |
|---|---|
| トイレ | - |
| 床仕様 | - |
| エレベータ | 3 基 |
| 駐車場設備 | - |
| その他 | 大型ビル / 新耐震基準 |
オーク桜木町ビルの賃貸オフィス・事務所に関するお問い合わせ
オーク桜木町ビルについて
みなとみらいを望める眺望がオススメで、グレード感も抜群のオフィスビルです。 桜木町・馬車道・関内駅で利用可能です。 竣工は1993年の新耐震基準で、共用部に男女別のお手洗いもございます。 空調は、セントラル空調です。
自分で探すより問い合わせる方が早いことがあります
WEB非公開物件があるから
オーナー様のご希望により「WEBでは非公開」にしている物件があります。 それらはWEBでいくら検索しても見つかりません。 先ずは条件などお知らせ頂けましたら非公開物件含め ピッタリのオフィスをご提案させて頂きます。 無理なお勧めはしておりませんので、お気軽にお問い合わせください。
WEBから条件問い合わせをする(無料)
対面でのご相談も受け付けております
ご来店も歓迎です
オフィス移転は社内・社外ともに非公開に行われることが殆どです。そのためアットオフィスでは、基本的に訪問によるコンサルティングを行っておりますが、ご来店の相談も歓迎です。お一人おひとりに親身にご対応させて頂きたい為、要予約とさせて頂いております。ご来店の際は先ずは下記よりご予約下さい。
来店予約をする
募集終了のテナント区画
| 階数 | 坪数 | 賃料 + 共益費 | 敷金/礼金敷金 礼金 | 検討 |
|---|---|---|---|---|
| 1階 | 97坪 (320.66m²) | 募集終了 | - | - |
| 2階 | 106坪 (350.41m²) | 募集終了 | - | - |
| 2階 | 35坪 (115m²) | 募集終了 | - | - |
| 2階 | 72坪 (238.02m²) | 募集終了 | - | - |
| 2階 | 72坪 (238m²) | 募集終了 | - | - |
| 3階 | 34.7坪 (114.71m²) | 募集終了 | - | - |
| 3階 | 37坪 (122.31m²) | 募集終了 | - | - |
| 4階 | 37.46坪 (123.83m²) | 募集終了 | - | - |
| 4階 | 34.7坪 (114.71m²) | 募集終了 | - | - |
| 4階 | 136坪 (449m²) | 募集終了 | - | - |
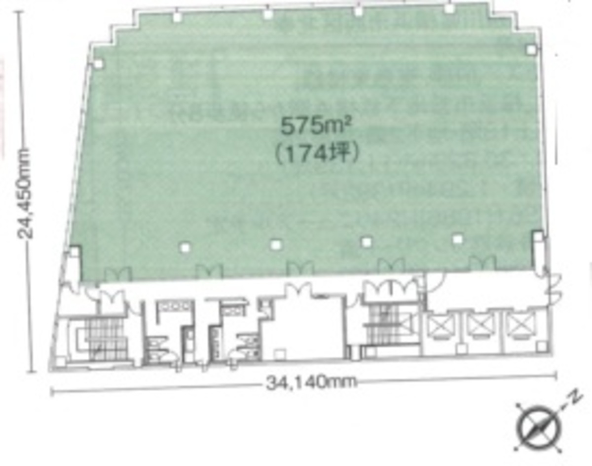
| 5階 | 174坪 (575m²) | 募集終了 | - | - |
| 6階 | 72.16坪 (238.54m²) | 募集終了 | - | - |
| 6階 | 31.77坪 (105.02m²) | 募集終了 | - | - |
| 6階 | 69坪 (228.1m²) | 募集終了 | - | - |
| 6階 | 34.7坪 (114.71m²) | 募集終了 | - | - |
| 7階 | 101.64坪 (336m²) | 募集終了 | - | - |
| 7階 | 72坪 (238.02m²) | 募集終了 | - | - |
| 7階 | 173.32坪 (572.96m²) | 募集終了 | - | - |
| 8階 | 72坪 (238.02m²) | 募集終了 | - | - |
| 8階 | 31.77坪 (105.02m²) | 募集終了 | - | - |
| 10階 | 66坪 (218.18m²) | 募集終了 | - | - |
| 10階 | 101.16坪 (334.42m²) | 募集終了 | - | - |
| 10階 | 34.7坪 (114.71m²) | 募集終了 | - | - |
| 10階 | 37.46坪 (123.83m²) | 募集終了 | - | - |
読込中...
中区エリアでオーク桜木町ビルに似た条件の物件
読込中...
| 取扱様態 | 仲介 |
|---|---|
| 取扱会社 | 株式会社 アットオフィス |