※このサイトに記載がある賃貸条件は、敷金・保証金などの預かり金を除き、別途消費税がかかります。
物件情報
設備詳細
| 空調 | 個別空調 |
|---|---|
| トイレ | - |
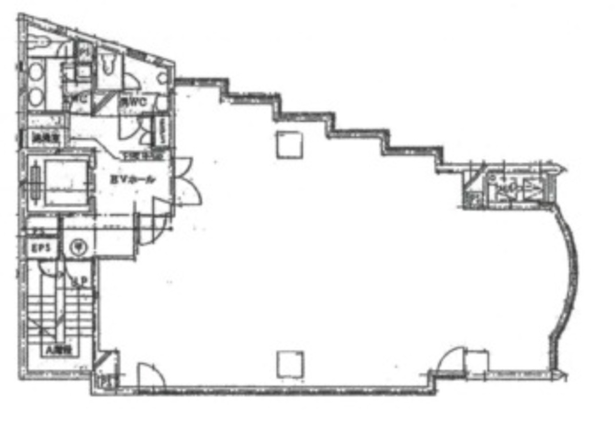
| 床仕様 | OA対応床(フリーアクセス) |
| エレベータ | 1 基 |
| 駐車場設備 | 空無 |
| その他 | 機械警備 / 24時間利用可 / 光ファイバー / 新耐震基準 |
いちご内神田ビルの賃貸オフィス・事務所に関するお問い合わせ
いちご内神田ビルについて
千代田区内神田3丁目に位置する「いちご内神田ビル」は、山手線・中央線・東京地下鉄銀座線が利用できる神田駅から徒歩3~4分の距離にあります。3路線の駅が近接しているため、複数方向からの移動を検討されている法人様にも利用しやすい環境です。 建物は地上10階、地下1階で構成されており、基準階面積は42.35㎡です。エレベーターは1基設置されています。光ファイバー対応のため、通信インフラの整備も施されています。機械警備が導入されており、24時間利用も可能となっているため、業務時間や働き方に合わせて柔軟にご利用いただけます。また、新耐震基準に適合しています。 オフィスの立地や建物の使い勝手を重視される企業様にとって、考慮に値するビルのひとつです。詳細はお問い合わせください。
いちご内神田ビルのこだわり
自分で探すより問い合わせる方が早いことがあります
WEB非公開物件があるから
オーナー様のご希望により「WEBでは非公開」にしている物件があります。 それらはWEBでいくら検索しても見つかりません。 先ずは条件などお知らせ頂けましたら非公開物件含め ピッタリのオフィスをご提案させて頂きます。 無理なお勧めはしておりませんので、お気軽にお問い合わせください。
対面でのご相談も受け付けております
ご来店も歓迎です
オフィス移転は社内・社外ともに非公開に行われることが殆どです。そのためアットオフィスでは、基本的に訪問によるコンサルティングを行っておりますが、ご来店の相談も歓迎です。お一人おひとりに親身にご対応させて頂きたい為、要予約とさせて頂いております。ご来店の際は先ずは下記よりご予約下さい。
募集終了のテナント区画
| 階数 | 坪数 | 賃料 + 共益費 | 敷金/礼金敷金 礼金 | 検討 |
|---|---|---|---|---|
| B1階 | 46.34坪 (153.19m²) | 募集終了 | - | - |
| 1階 | 36.32坪 (120.07m²) | 募集終了 | - | - |
| 2階 | 42.69坪 (141.12m²) | 募集終了 | - | - |
| 3階 | 39.62坪 (130.98m²) | 募集終了 | - | - |
| 4階 | 42.46坪 (140.37m²) | 募集終了 | - | - |
| 5階 | 42.46坪 (140.36m²) | 募集終了 | - | - |
| 6階 | 39.62坪 (130.98m²) | 募集終了 | - | - |
| 7階 | 42.46坪 (140.36m²) | 募集終了 | - | - |
| 9階 | 42.46坪 (138.84m²) | 募集終了 | - | - |
| 10階 | 36.51坪 (120.71m²) | 募集終了 | - | - |
読込中...
神田/秋葉原エリアでいちご内神田ビルに似た条件の物件
読込中...
| 取扱様態 | 仲介 |
|---|---|
| 取扱会社 | 株式会社 アットオフィス |