YHSビル5階の賃貸情報
18.9 坪 (62.48m²)
335,000円 (坪:17,724 円)
※このサイトに記載がある賃貸条件は、敷金・保証金などの預かり金を除き、別途消費税がかかります。
YHSビルの建物概要
設備詳細
| 空調 | - |
|---|---|
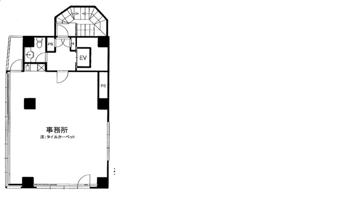
| トイレ | 男女共用トイレ・室外 |
| 床仕様 | - |
| エレベータ | 1 基 |
| 駐車場設備 | - |
| その他 | 光ファイバー / 新耐震基準 / 機械警備 / オートロック / 保証金・敷金+礼金が3か月以下 |
YHSビル5階の賃貸オフィス・事務所に関するお問い合わせ
YHSビルについて
YHSビルは、東京都新宿区西新宿5丁目に位置する、1991年に竣工されたオフィスビルです。この物件は、現代のビジネスニーズに適応するため、新耐震基準に則って建設されました。ビルの基準階は約20坪となっており、1フロアにつき1テナントというレイアウトが特徴です。これにより、テナントはプライバシーと専有空間を最大限に享受することが可能です。 立地においては、YHSビルは非常に恵まれています。都営大江戸線・西新宿五丁目駅から徒歩約1分という駅近の立地であり、ビジネスにおけるアクセスの良さは抜群です。さらに、方南通り沿いの角地に立地しており、日当たりが良好で、働きやすい環境が整っています。ビルの周辺には飲食店、コンビニ、郵便局などが複数存在し、従業員の日常生活に必要なサービスが手軽に利用できる点も大きな魅力の一つです。 ビル内の設備に関しては、エレベーターが1基設置されており、ビル内の移動をスムーズに行えます。また、1階には松屋が入居しており、食事の利便性も良好です。駐車場がビル内に設けられているため、車を利用されるテナントにとっても便利です。空き状況については、お問い合わせいただく必要がありますが、この点も柔軟に対応可能です。 リニューアル工事が施されたエントランスは、訪れる人々に対してプロフェッショナルで、洗練された印象を与えます。また、一部区画では水回りなどのリニューアル工事が行われており、快適なオフィス環境を提供しています。トイレは男女共用で、ビル利用者の利便性を考慮した設計になっています。 YHSビルは、立地の良さ、設備の充実、そして快適なオフィス環境を兼ね備えた賃貸事務所物件として、多くのビジネスのニーズに応えることができるでしょう。新宿区西新宿というビジネスの中心地に位置するこのビルは、ビジネスチャンスを最大限に引き出すための理想的な拠点と言えます。
YHSビルのこだわり
自分で探すより問い合わせる方が早いことがあります
WEB非公開物件があるから
オーナー様のご希望により「WEBでは非公開」にしている物件があります。 それらはWEBでいくら検索しても見つかりません。 先ずは条件などお知らせ頂けましたら非公開物件含め ピッタリのオフィスをご提案させて頂きます。 無理なお勧めはしておりませんので、お気軽にお問い合わせください。
対面でのご相談も受け付けております
ご来店も歓迎です
オフィス移転は社内・社外ともに非公開に行われることが殆どです。そのためアットオフィスでは、基本的に訪問によるコンサルティングを行っておりますが、ご来店の相談も歓迎です。お一人おひとりに親身にご対応させて頂きたい為、要予約とさせて頂いております。ご来店の際は先ずは下記よりご予約下さい。
新宿/西新宿エリアでYHSビルに似た条件の物件
読込中...
YHSビルと同じ最寄駅の物件
読込中...
| 取扱様態 | 仲介 |
|---|---|
| 取扱会社 | 株式会社 アットオフィス |