※このサイトに記載がある賃貸条件は、敷金・保証金などの預かり金を除き、別途消費税がかかります。
物件情報
設備詳細
| 空調 | 個別空調 |
|---|---|
| トイレ | 男女別トイレ室内 |
| 床仕様 | - |
| エレベータ | 1 基 |
| 駐車場設備 | - |
| その他 | 24時間利用可 / 光ファイバー / 新耐震基準 / 東京賃料が坪11000円以下 |
芝浦中村ビルの賃貸オフィス・事務所に関するお問い合わせ
芝浦中村ビルについて
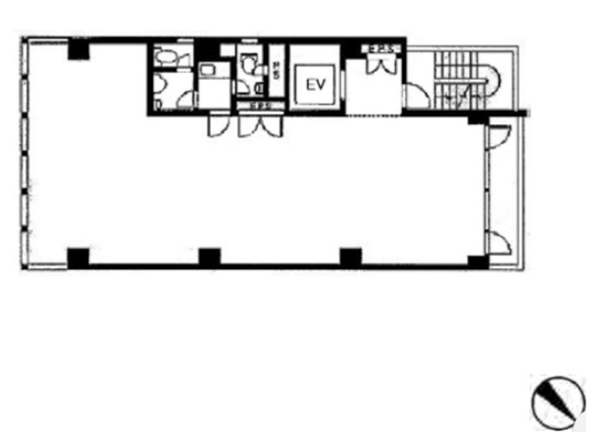
芝浦中村ビルは、港区芝浦に位置する賃貸オフィスビルで、1991年に竣工された地上7階建ての建物です。このビルの基準階は約30坪となっており、細長い形状の室内はトイレ付きで、男女別のトイレ設備が完備されています。また、各室には個別空調が設置されており、季節に関わらず快適なオフィス環境を提供します。足元から天井まで広がる大きな窓は、優れた採光性を実現し、作業空間をより明るく快適なものにしています。 芝浦中村ビルの立地は、交通アクセスに優れ、最寄り駅である芝浦ふ頭駅から徒歩圏内にあります。また、田町駅や日の出駅も徒歩10分ほどでアクセス可能であり、都心への移動が容易です。周辺は住宅とオフィスビルが混在する落ち着いたエリアで、徒歩2分の距離にコンビニがあり、日常の買い物にも便利な立地です。 ビルの外観は白いタイル張りで、各階にバルコニーが付いているのが特徴です。これにより、オフィス内での休憩時に外の空気を感じることができ、働く環境に彩りを加えます。1階には宅急便センターが入居しており、ビルの利用者にとって便利なサービスの一つとなっています。また、24時間入退館可能なセキュリティ体制により、フレキシブルな働き方を支援します。 オフィス内のレイアウトは、余計な柱がないため、自由度の高い空間設計が可能であり、企業のニーズに合わせたオフィス環境を構築できます。給湯スペースや個室トイレなどが完備されている点も、日々のオフィスライフにおける快適さに貢献します。 芝浦中村ビルは、その立地、設備、そして24時間利用可能なセキュリティ体制により、多様なビジネスシーンに対応できる賃貸オフィスビルです。周辺の静かな環境と都心へのアクセスの良さを兼ね備えており、企業が成長し続けるための理想的な拠点となり得ます。
芝浦中村ビルのこだわり
自分で探すより問い合わせる方が早いことがあります
WEB非公開物件があるから
オーナー様のご希望により「WEBでは非公開」にしている物件があります。 それらはWEBでいくら検索しても見つかりません。 先ずは条件などお知らせ頂けましたら非公開物件含め ピッタリのオフィスをご提案させて頂きます。 無理なお勧めはしておりませんので、お気軽にお問い合わせください。
対面でのご相談も受け付けております
ご来店も歓迎です
オフィス移転は社内・社外ともに非公開に行われることが殆どです。そのためアットオフィスでは、基本的に訪問によるコンサルティングを行っておりますが、ご来店の相談も歓迎です。お一人おひとりに親身にご対応させて頂きたい為、要予約とさせて頂いております。ご来店の際は先ずは下記よりご予約下さい。
募集終了のテナント区画
| 階数 | 坪数 | 賃料 + 共益費 | 敷金/礼金敷金 礼金 | 検討 |
|---|---|---|---|---|
| 4階 | 32.02坪 (105.88m²) | 募集終了 | - | - |
読込中...
近くのエリアで探してみる
港南/高輪/白金台/(品川駅)エリアで芝浦中村ビルに似た条件の物件
読込中...
| 取扱様態 | 仲介 |
|---|---|
| 取扱会社 | 株式会社 アットオフィス |