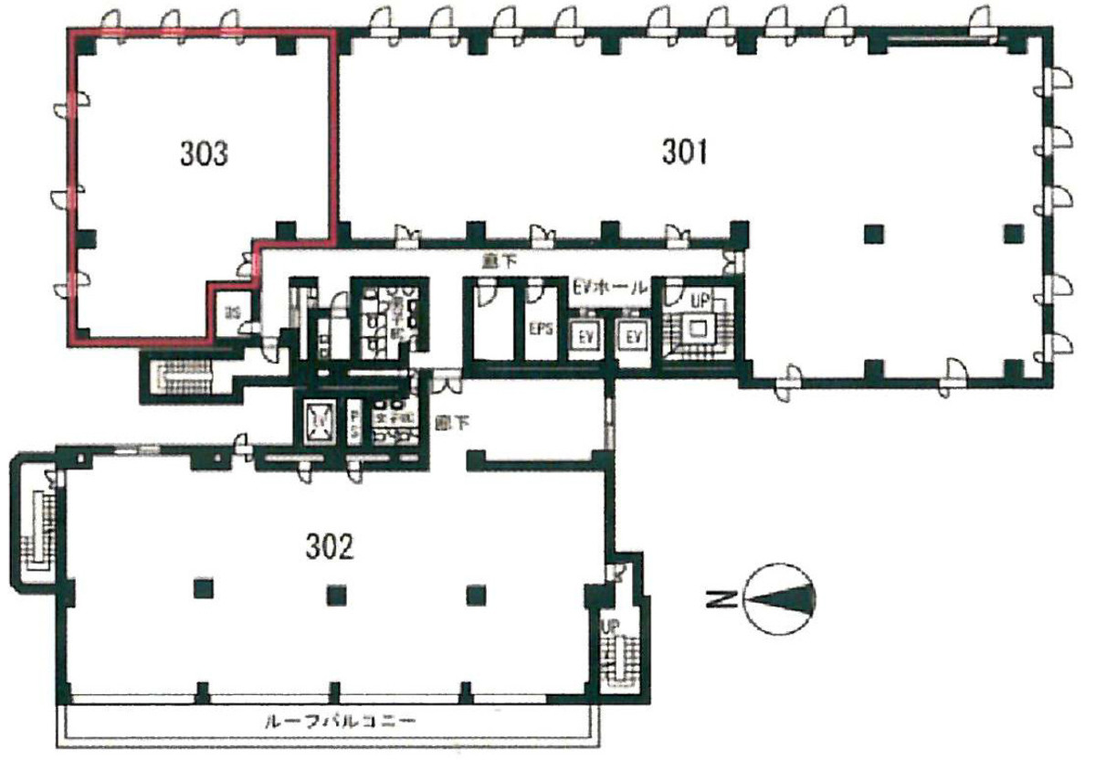
新宿タツミビルの賃料条件
| 階数 | 坪数 | 賃料 + 共益費 | 敷金/礼金敷金 礼金 | 検討 |
|---|---|---|---|---|
| 3階 | 112.29坪 (371.22m²) | 1,852,785円 (坪:16,500 円) | 6ヶ月 無6ヶ月/無 |
※このサイトに記載がある賃貸条件は、敷金・保証金などの預かり金を除き、別途消費税がかかります。
物件情報
設備詳細
| 空調 | 個別空調 |
|---|---|
| トイレ | 男女別トイレ室外 |
| 床仕様 | - |
| エレベータ | 2 基 |
| 駐車場設備 | - |
| その他 | 24時間利用可 / 管理人常駐 / 光ファイバー / 新耐震基準 |
新宿タツミビルの賃貸オフィス・事務所に関するお問い合わせ
新宿タツミビルについて
新宿タツミビルは、新宿区西新宿に位置する賃貸オフィス物件で、1985年に竣工されたこの11階建てのビルは、現代のビジネスニーズに合わせた優れた設備と機能性を備えています。一階あたり150坪前後の広々としたフロアは、長方形に近い形状で、オフィスレイアウトの自由度が高い点が特徴です。個別空調、男女別トイレ、光回線、機械式駐車場を完備しており、ビジネス運営に必要なすべての要素が整っています。 立地においても、都営大江戸線・西新宿五丁目駅から徒歩約4分、方南通り沿いにあることでアクセスしやすく、新宿中央公園の緑豊かな景色を望むことができる理想的な環境です。周辺には飲食店やコンビニ、郵便局などの生活便利施設が充実しており、働く方々の日常生活をサポートします。 また、新宿駅へも徒歩圏内の立地であり、西新宿が誇る高層ビルのレストラン街やショッピング施設を利用することが可能です。これにより、ビジネスパートナーを迎える際の接待や、従業員のランチタイム、アフター5の過ごし方の選択肢が広がります。 新宿タツミビルは、その設備の充実度と利便性の高い立地を活かし、企業の成長を支える基盤となることでしょう。24時間入退館可能なセキュリティシステムや、2基のエレベーターもビジネスの効率化をサポートします。ワンフロア全体を利用する大型オフィスから、中規模オフィスまでの分割賃貸が可能であり、企業の規模やニーズに応じたフレキシブルなオフィス選択が可能です。 新宿タツミビルは、その高いスペックと優れた立地条件を兼ね備え、ビジネスの成功を後押しする理想的なオフィス環境を提供します。これからも多くの企業に選ばれ続けるビルであることは間違いありません。
新宿タツミビルのこだわり
自分で探すより問い合わせる方が早いことがあります
WEB非公開物件があるから
オーナー様のご希望により「WEBでは非公開」にしている物件があります。 それらはWEBでいくら検索しても見つかりません。 先ずは条件などお知らせ頂けましたら非公開物件含め ピッタリのオフィスをご提案させて頂きます。 無理なお勧めはしておりませんので、お気軽にお問い合わせください。
対面でのご相談も受け付けております
ご来店も歓迎です
オフィス移転は社内・社外ともに非公開に行われることが殆どです。そのためアットオフィスでは、基本的に訪問によるコンサルティングを行っておりますが、ご来店の相談も歓迎です。お一人おひとりに親身にご対応させて頂きたい為、要予約とさせて頂いております。ご来店の際は先ずは下記よりご予約下さい。
募集終了のテナント区画
| 階数 | 坪数 | 賃料 + 共益費 | 敷金/礼金敷金 礼金 | 検討 |
|---|---|---|---|---|
| 1階 | 123.65坪 (408.76m²) | 募集終了 | - | - |
| 1階 | 29.89坪 (98.81m²) | 募集終了 | - | - |
| 1階 | 50.48坪 (166.88m²) | 募集終了 | - | - |
| 1階 | 67.02坪 (221.57m²) | 募集終了 | - | - |
| 2階 | 82.15坪 (271.57m²) | 募集終了 | - | - |
| 2階 | 128.55坪 (424.96m²) | 募集終了 | - | - |
| 2階 | 53.72坪 (177.59m²) | 募集終了 | - | - |
| 2階 | 136.88坪 (452.51m²) | 募集終了 | - | - |
| 3階 | 143.87坪 (475.6m²) | 募集終了 | - | - |
| 3階 | 52.85坪 (174.71m²) | 募集終了 | - | - |
| 3階 | 83.42坪 (275.77m²) | 募集終了 | - | - |
| 4階 | 145.33坪 (480.43m²) | 募集終了 | - | - |
| 4階 | 83.51坪 (276.07m²) | 募集終了 | - | - |
| 4階 | 54.05坪 (178.68m²) | 募集終了 | - | - |
| 5階 | 55.15坪 (182.31m²) | 募集終了 | - | - |
| 5階 | 150.13坪 (496.3m²) | 募集終了 | - | - |
| 6階 | 205.28坪 (678.61m²) | 募集終了 | - | - |
| 6階 | 55.09坪 (182.12m²) | 募集終了 | - | - |
| 7階 | 149.87坪 (495.44m²) | 募集終了 | - | - |
| 8階 | 58.15坪 (192.23m²) | 募集終了 | - | - |
| 8階 | 21.82坪 (72.15m²) | 募集終了 | - | - |
| 8階 | 43.97坪 (145.35m²) | 募集終了 | - | - |
| 8階 | 83.92坪 (277.41m²) | 募集終了 | - | - |
| 9階 | 58.15坪 (192.23m²) | 募集終了 | - | - |
| 9階 | 43.97坪 (145.35m²) | 募集終了 | - | - |
| 9階 | 105.9坪 (350.08m²) | 募集終了 | - | - |
| 9階 | 149.86坪 (495.43m²) | 募集終了 | - | - |
| 10階 | 21.98坪 (72.67m²) | 募集終了 | - | - |
| 10階 | 34.73坪 (114.82m²) | 募集終了 | - | - |
| 10階 | 28.41坪 (93.91m²) | 募集終了 | - | - |
| 10階 | 32.98坪 (109.01m²) | 募集終了 | - | - |
| 10階 | 32.98坪 (109.01m²) | 募集終了 | - | - |
| 10階 | 28.37坪 (93.77m²) | 募集終了 | - | - |
| 11階 | 21.98坪 (72.67m²) | 募集終了 | - | - |
| 11階 | 28.9坪 (95.54m²) | 募集終了 | - | - |
| 11階 | 45.51坪 (150.45m²) | 募集終了 | - | - |
| 11階 | 32.98坪 (109.02m²) | 募集終了 | - | - |
読込中...
新宿/西新宿エリアで新宿タツミビルに似た条件の物件
読込中...
| 取扱様態 | 仲介 |
|---|---|
| 取扱会社 | 株式会社 アットオフィス |