武居西新宿ビル5階の賃貸情報
21.41 坪 (70.81m²)
350,000円 (坪:16,347 円)
※このサイトに記載がある賃貸条件は、敷金・保証金などの預かり金を除き、別途消費税がかかります。
武居西新宿ビルの建物概要
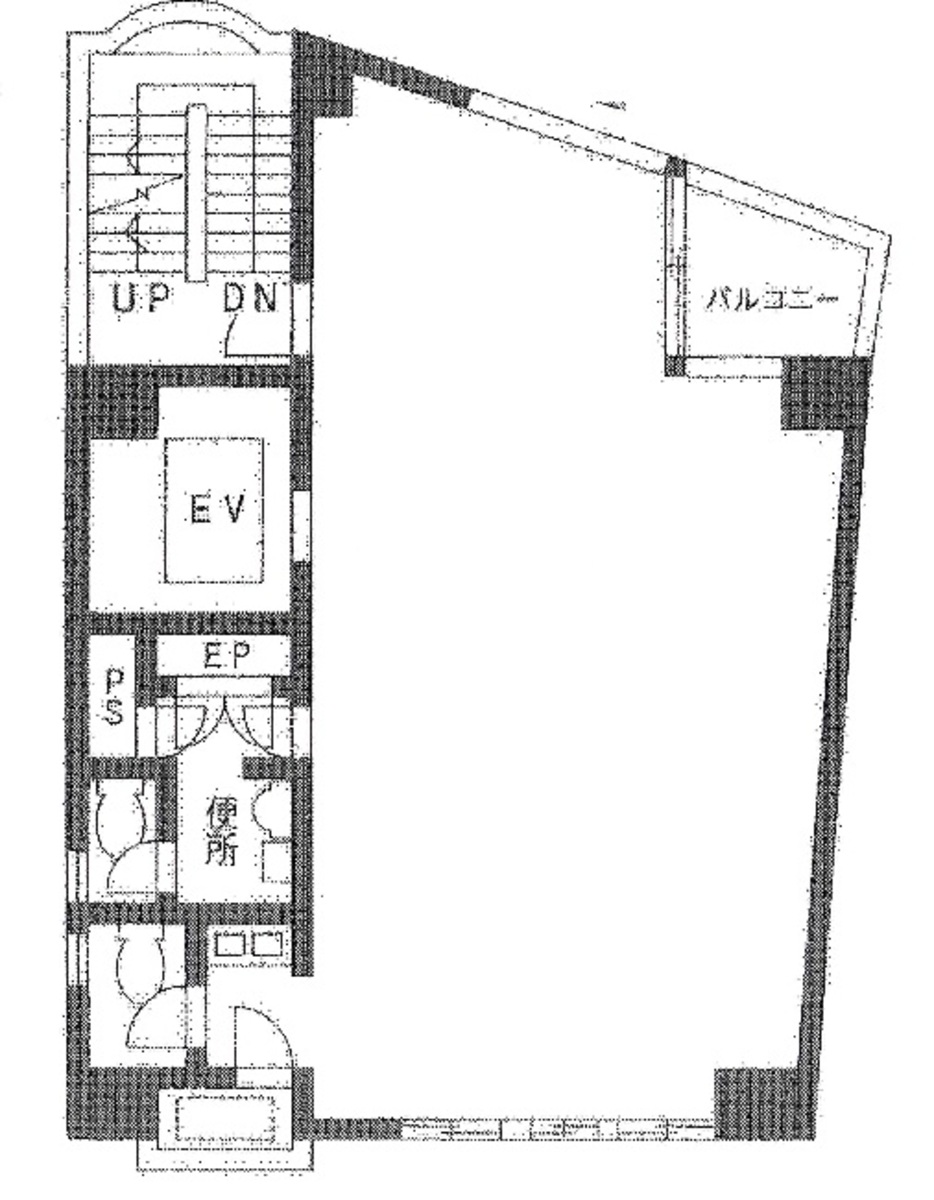
設備詳細
| 空調 | 個別空調 |
|---|---|
| トイレ | 男女別トイレ室内 |
| 床仕様 | - |
| エレベータ | 1 基 |
| 駐車場設備 | - |
| その他 | 新耐震基準 / 店舗可(飲食不可) / 塾・スクール / フリーレント / クリニック |
武居西新宿ビル5階の賃貸オフィス・事務所に関するお問い合わせ
武居西新宿ビルについて
武居西新宿ビルは、首都圏のビジネスシーンにおいて、その存在感と機能性で注目されるオフィスビルです。所在地は東京都新宿区西新宿、青梅街道沿いに位置し、西新宿五丁目駅から徒歩3分という非常に便利な立地に恵まれています。加えて、新宿駅も利用可能であり、複数の交通網を活用できる点は、ビジネスの拠点としてのアクセシビリティの高さを示しています。 このビルは1992年に竣工されたもので、耐震構造を採用しています。そのため、安全性においても高い基準を満たしており、テナント企業にとっては安心して業務を行うことができる環境が整っています。ビルはエレベーターを1機備えていることから、スムーズな移動が可能で、日々の業務効率化に寄与します。 1階には不動産屋が入居しており、ビルの入り口が容易に見つけやすく、訪問客にとっても分かりやすい構造となっています。この点は、ビルの視認性やアクセスの良さを物語っており、企業がオフィスを構えるにあたり、来客の利便性を高める要素の一つとなり得ます。 武居西新宿ビルのエントランスは、重厚感があり、来客者に対して良い第一印象を与えることができる設計となっています。この印象は、ビジネスシーンにおいて非常に重要な要素であり、テナント企業のブランドイメージ向上に寄与します。 また、このビルはスモールオフィス向けの物件としても魅力があり、スタートアップ企業や中小企業にとって、必要十分なスペースと機能を備えたオフィス環境を提供します。立地の良さと組み合わされたこのビルの特性は、企業の効率的な運営と発展をサポートする要素を多分に含んでいます。 総じて、武居西新宿ビルは、立地の利便性、安全性、機能性を兼ね備えたオフィスビルであり、多様なビジネスニーズに応えることができる物件です。そのため、新宿区におけるビジネスの拠点として、また企業のイメージアップにも寄与する魅力的なオフィススペースと言えるでしょう。
自分で探すより問い合わせる方が早いことがあります
WEB非公開物件があるから
オーナー様のご希望により「WEBでは非公開」にしている物件があります。 それらはWEBでいくら検索しても見つかりません。 先ずは条件などお知らせ頂けましたら非公開物件含め ピッタリのオフィスをご提案させて頂きます。 無理なお勧めはしておりませんので、お気軽にお問い合わせください。
対面でのご相談も受け付けております
ご来店も歓迎です
オフィス移転は社内・社外ともに非公開に行われることが殆どです。そのためアットオフィスでは、基本的に訪問によるコンサルティングを行っておりますが、ご来店の相談も歓迎です。お一人おひとりに親身にご対応させて頂きたい為、要予約とさせて頂いております。ご来店の際は先ずは下記よりご予約下さい。
新宿/西新宿エリアで武居西新宿ビルに似た条件の物件
読込中...
武居西新宿ビルと同じ最寄駅の物件
読込中...
| 取扱様態 | 仲介 |
|---|---|
| 取扱会社 | 株式会社 アットオフィス |