立花新宿ビル9階の賃貸情報
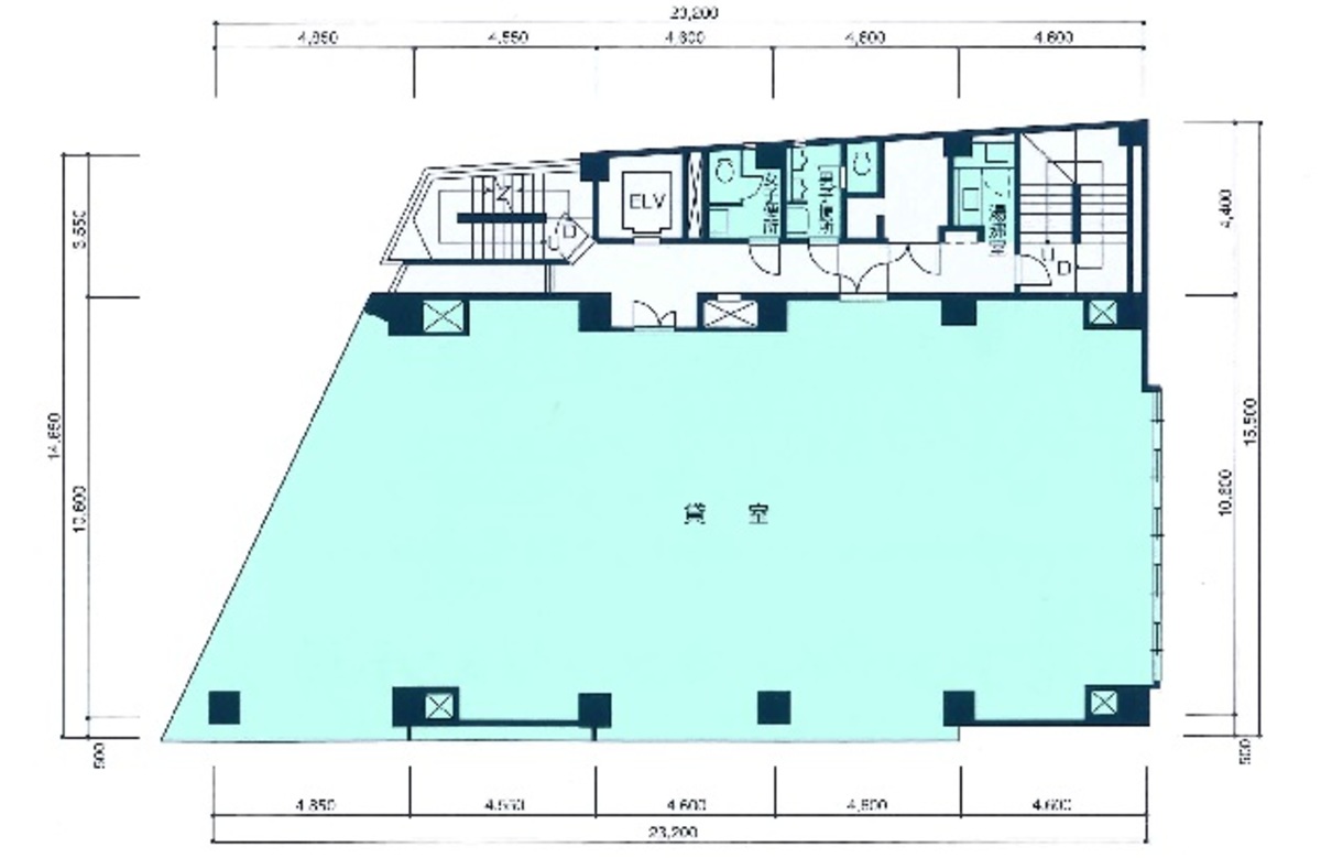
77.17 坪 (255.13m²)
1,929,250円 (坪:25,000 円)
※このサイトに記載がある賃貸条件は、敷金・保証金などの預かり金を除き、別途消費税がかかります。
立花新宿ビルの建物概要
設備詳細
| 空調 | - |
|---|---|
| トイレ | 男女別トイレ室外 |
| 床仕様 | - |
| エレベータ | 1 基 / エレベーター有 |
| 駐車場設備 | 敷地内駐車場 / 平置き駐車場 |
| その他 | 機械警備 / 光ファイバー / 新耐震基準 / 居抜き |
立花新宿ビル9階の賃貸オフィス・事務所に関するお問い合わせ
立花新宿ビルについて
立花新宿ビルは、新宿区西新宿に位置する、1984年に竣工された9階建てのモダンなオフィスビルです。この地域は、西新宿の高層ビル群と緑豊かな街路樹が調和する、魅力的なビジネス環境を提供しています。立花新宿ビルは、その中心に位置し、企業にとって理想的なオフィススペースを提供します。 本ビルの最大の魅力は、その卓越したアクセスの良さにあります。都庁前駅から徒歩5分、JR新宿駅からも徒歩圏内という立地は、従業員や来訪者にとって大きな利便性をもたらします。加えて、隣接する新宿ワシントンホテルや新宿NSビルへの容易なアクセスは、ランチタイムやビジネスミーティングの選択肢を広げます。 ビルは、大成建設株式会社によって施工された高い耐震性を誇り、安心してビジネスを行える環境を提供しています。また、全面リニューアルを経て、最新のオフィスニーズに対応した設備が整っています。24時間利用可能なセキュリティシステム、男女別のトイレ、個別空調システムを10基搭載し、オフィススペースの自由度を高めています。これにより、テナントは自社に合わせた間仕切りやレイアウトの調整が可能となり、最適なワークスペースを実現できます。 立花新宿ビルの1階にはゴルフ用品店があり、エントランスは自動開閉式のガラスの観音開きタイプで、来訪者をモダンな雰囲気で迎え入れます。また、ビルに関わるすべての人々の繁栄を願うメッセージと共榮の木彫作品がエントランスに掲げられ、訪れる人々に温かいメッセージを発信しています。 立花新宿ビルは、その優れた設備、アクセスの良さ、そしてビジネスに必要なすべての要素を兼ね備えています。このビルがビジネスの成功を後押しし、企業が成長を遂げるための最適な環境を提供してくれることでしょう。新宿区でオフィススペースをお探しの方は、ぜひ立花新宿ビルをご検討ください。
立花新宿ビルのこだわり
自分で探すより問い合わせる方が早いことがあります
WEB非公開物件があるから
オーナー様のご希望により「WEBでは非公開」にしている物件があります。 それらはWEBでいくら検索しても見つかりません。 先ずは条件などお知らせ頂けましたら非公開物件含め ピッタリのオフィスをご提案させて頂きます。 無理なお勧めはしておりませんので、お気軽にお問い合わせください。
対面でのご相談も受け付けております
ご来店も歓迎です
オフィス移転は社内・社外ともに非公開に行われることが殆どです。そのためアットオフィスでは、基本的に訪問によるコンサルティングを行っておりますが、ご来店の相談も歓迎です。お一人おひとりに親身にご対応させて頂きたい為、要予約とさせて頂いております。ご来店の際は先ずは下記よりご予約下さい。
新宿/西新宿エリアで立花新宿ビルに似た条件の物件
読込中...
立花新宿ビルと同じ最寄駅の物件
読込中...
| 取扱様態 | 仲介 |
|---|---|
| 取扱会社 | 株式会社 アットオフィス |