第二佐山ビル9階の賃貸情報
40 坪 (132.23m²)
680,000円 (坪:17,000 円)
※このサイトに記載がある賃貸条件は、敷金・保証金などの預かり金を除き、別途消費税がかかります。
第二佐山ビルの建物概要
設備詳細
| 空調 | 個別空調 |
|---|---|
| トイレ | 男女別トイレ / 男女別トイレ室内 |
| 床仕様 | - |
| エレベータ | 1 基 |
| 駐車場設備 | - |
| その他 | 24時間利用可 / 光ファイバー / 機械警備 / クリニック |
第二佐山ビル9階の賃貸オフィス・事務所に関するお問い合わせ
第二佐山ビルについて
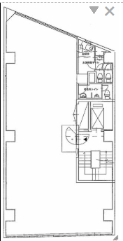
新宿区西新宿に位置する第2佐山ビルは、新宿駅から徒歩わずか5分という絶好のアクセス位置にあり、甲州街道沿いの目立つ立地でありながら、3駅以上のアクセス可能性を誇るビジネスの中心地です。この物件は、1974年に竣工し、全面リニューアル済みで、現代のビジネスニーズに合わせた設備と快適なオフィス環境を提供します。 ビル内の主な特長は、1フロア40坪の広々としたレイアウトであり、L字型の間取りにより、多くの窓が設けられ、開放感あふれるオフィス空間を実現しています。特に、上層階からの眺望は、新宿の街並みを一望でき、働く人々にとって刺激的な環境を提供します。 ビルは24時間使用可能で、光ファイバーが引き込まれているため、高速インターネット環境が常に保証されています。これにより、時間に縛られることなく、グローバルなビジネスもスムーズに運営できます。また、各フロアには男女別トイレが完備されており、給湯設備も利用可能です。個別空調システムにより、一年中快適なオフィス環境を保つことができます。 立地に関しては、新宿駅からのアクセスの良さはもちろん、甲州街道沿いという視認性の高さも魅力の一つです。来客時の案内がしやすく、ビジネスの機会を逃すことがありません。周辺には飲食店が充実しており、ビジネスランチやアフター5の利用にも便利です。また、近隣の高層ビル内施設との連携も可能で、ビジネスの拡張性に優れています。 これらの特徴を総合すると、第2佐山ビルは、立地の良さ、利便性、快適なオフィス環境を求める企業にとって、最適な選択肢です。ビルのスペックの高さと、ビジネスにおける多様なニーズに応える設備は、あなたの企業の成長と成功を強力にサポートします。
自分で探すより問い合わせる方が早いことがあります
WEB非公開物件があるから
オーナー様のご希望により「WEBでは非公開」にしている物件があります。 それらはWEBでいくら検索しても見つかりません。 先ずは条件などお知らせ頂けましたら非公開物件含め ピッタリのオフィスをご提案させて頂きます。 無理なお勧めはしておりませんので、お気軽にお問い合わせください。
対面でのご相談も受け付けております
ご来店も歓迎です
オフィス移転は社内・社外ともに非公開に行われることが殆どです。そのためアットオフィスでは、基本的に訪問によるコンサルティングを行っておりますが、ご来店の相談も歓迎です。お一人おひとりに親身にご対応させて頂きたい為、要予約とさせて頂いております。ご来店の際は先ずは下記よりご予約下さい。
新宿/西新宿エリアで第二佐山ビルに似た条件の物件
読込中...
第二佐山ビルと同じ最寄駅の物件
読込中...
| 取扱様態 | 仲介 |
|---|---|
| 取扱会社 | 株式会社 アットオフィス |