※このサイトに記載がある賃貸条件は、敷金・保証金などの預かり金を除き、別途消費税がかかります。
物件情報
設備詳細
| 空調 | 個別空調 |
|---|---|
| トイレ | 男女別トイレ室内 |
| 床仕様 | OA対応床(フリーアクセス) |
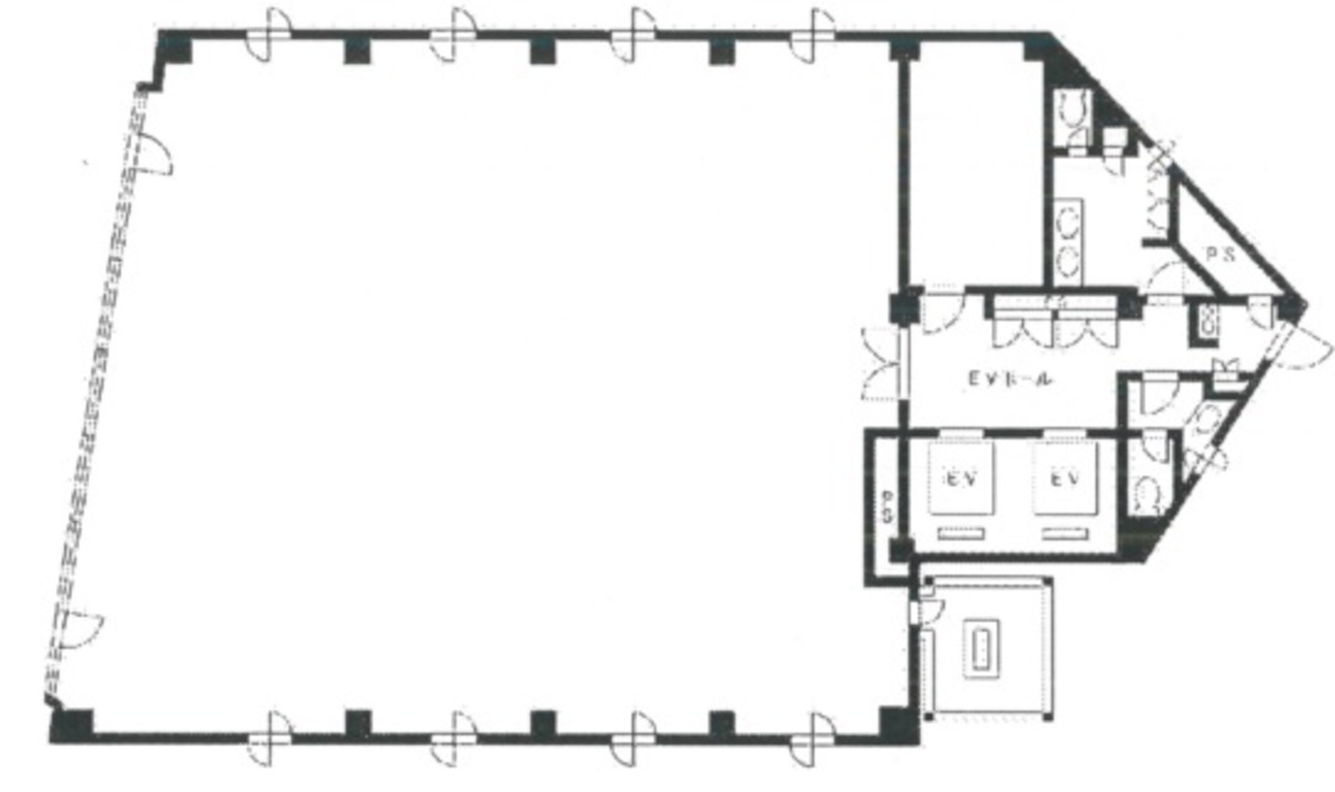
| エレベータ | 2 基 |
| 駐車場設備 | 空有 |
| その他 | 新耐震基準 |
HI池袋ビルの賃貸オフィス・事務所に関するお問い合わせ
HI池袋ビルについて
### HI池袋ビルのご紹介 今回は豊島区南池袋に位置する「HI池袋ビル」をご紹介いたします。明治通りに面し、スタイリッシュなミラーガラスの外観が印象的なこのビルは、ビジネスの拠点として最適な環境を提供します。 #### 立地 HI池袋ビルは、池袋駅東口から明治通りを南へ徒歩5分ほどの場所に建っています。駅からのアクセスが非常に良く、通勤やお客様の訪問にも非常に便利です。また、ビル周辺にはコンビニや飲食店が点在しており、ランチタイムや急な買い物にも困りません。 #### 建物の特徴 このビルの一番の特徴は、スタイリッシュなミラーガラスの外観です。一目で印象に残るデザインは、訪れる方々に好印象を与えること間違いなしです。ビルの1階には歯科医院が入居しており、電光の看板が目印になるでしょう。その他にも、銀行など多種多様な業種のテナントが入居しています。 #### 設備 HI池袋ビルは、ビジネスに必要な設備が充実しています。オフィスフロアはワンフロア70坪ほどで、柱がないためレイアウトの自由度が高いのが特徴です。個別空調も完備されており、快適なオフィス環境を実現します。エレベーターは2機設置されており、移動のストレスを軽減します。さらに、機械式の駐車場も完備されているため、車を利用する方にも便利です。 #### 周辺環境 前面道路である明治通りは、バスや車両が多く走っており、交通の便が非常に良いです。周辺には薬局やスーパー、カフェなどもあり、日常の利便性も高いです。特に、向かいにはカフェ・ベローチェがあり、リラックスした時間を過ごすための場所も充実しています。 #### ビジネスにおける利点 このビルのもう一つの魅力は、池袋駅から徒歩圏内に位置していることです。池袋駅はJRや地下鉄、私鉄など多くの路線が交差するターミナル駅であり、ビジネスの拠点として非常に優れた立地です。また、ビル自体のステータス感や充実した設備、多様なテナント構成により、ビジネスの発展に寄与する環境が整っています。 ### まとめ HI池袋ビルは、南池袋3丁目に位置し、明治通りに面したスタイリッシュな賃貸オフィスビルです。池袋駅からのアクセスの良さ、周辺環境の充実、そしてビル自体の高いステータス感と設備の充実度が、ビジネスの拠点としての大きな魅力です。ぜひ一度、現地をご覧いただき、その魅力を実感してみてください。 ご不明な点やご質問がありましたら、どうぞお気軽にお問い合わせください。皆様のご来訪を心よりお待ちしております。
HI池袋ビルのこだわり
自分で探すより問い合わせる方が早いことがあります
WEB非公開物件があるから
オーナー様のご希望により「WEBでは非公開」にしている物件があります。 それらはWEBでいくら検索しても見つかりません。 先ずは条件などお知らせ頂けましたら非公開物件含め ピッタリのオフィスをご提案させて頂きます。 無理なお勧めはしておりませんので、お気軽にお問い合わせください。
対面でのご相談も受け付けております
ご来店も歓迎です
オフィス移転は社内・社外ともに非公開に行われることが殆どです。そのためアットオフィスでは、基本的に訪問によるコンサルティングを行っておりますが、ご来店の相談も歓迎です。お一人おひとりに親身にご対応させて頂きたい為、要予約とさせて頂いております。ご来店の際は先ずは下記よりご予約下さい。
読込中...
池袋/大塚/目白エリアでHI池袋ビルに似た条件の物件
読込中...
| 取扱様態 | 仲介 |
|---|---|
| 取扱会社 | 株式会社 アットオフィス |