ヤワタ上野ビル4階の賃貸情報
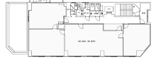
44.46 坪 (146.98m²)
※このサイトに記載がある賃貸条件は、敷金・保証金などの預かり金を除き、別途消費税がかかります。
ヤワタ上野ビルの建物概要
設備詳細
| 空調 | - |
|---|---|
| トイレ | 男女別トイレ室外 |
| 床仕様 | - |
| エレベータ | 1 基 |
| 駐車場設備 | - |
| その他 | - |
ヤワタ上野ビル4階の賃貸オフィス・事務所に関するお問い合わせ
ヤワタ上野ビルについて
ヤワタ上野ビルは、東京都台東区東上野4丁目に位置する魅力的なオフィス賃貸物件です。このビルの立地は、ビジネスにおいて非常に利便性が高いと言えます。具体的には、複数の主要鉄道線にアクセスすることが可能で、山手線上野駅から徒歩5分、京浜東北・根岸線上野駅から徒歩6分、そして東京地下鉄銀座線上野駅からはわずか徒歩2分という近接性を誇ります。 このような交通の便の良さは、ビジネス活動における移動の効率化や顧客とのアクセスの容易さを大きく向上させる要素となります。上野エリアは商業施設や飲食店も多く、ビジネスの合間にリラックスできる環境も整っています。 ヤワタ上野ビルは、エレベーターが1機設置されており、上下階へのアクセスもスムーズです。この点は、特に多くの来訪者を迎える企業や、頻繁に物資の移動が行われる職場にとって重要な要素です。エレベーターの存在により、従業員のストレス軽減や業務の効率化にも寄与します。 また、このビルの建物自体は、最新の耐震基準を満たしており、安全性においても信頼性が高いです。これにより、企業やその従業員が安心して日々の業務を行うことができます。 さらに、ヤワタ上野ビルは、その立地と設備だけでなく、周辺のビジネス環境も非常に充実しています。上野エリアは、歴史的な文化施設や美術館、公園が多く存在することで知られており、それらの施設を利用したリフレッシュやビジネスミーティング、イベントの開催など、多様なビジネスシーンに適応することができます。 まとめると、ヤワタ上野ビルは、以下の点において特に優れています: 1. **交通の利便性**:山手線、京浜東北・根岸線、東京地下鉄銀座線の各上野駅から徒歩圏内にあり、アクセスの良さが際立ちます。 2. **設備の充実**:エレベーター設置により、快適な職場環境を提供します。 3. **安全性**:最新の耐震基準を満たしており、安心して業務に従事できます。 4. **ビジネス環境**:周辺には商業施設や文化施設が多く、リフレッシュやビジネスミーティングの場としても活用できます。 これらの特徴を持つヤワタ上野ビルは、ビジネスの成長をサポートする理想的なオフィス環境を提供します。多くの企業にとって、このビルは事業運営の拠点として非常に魅力的な選択肢となり得るでしょう。
ヤワタ上野ビルのこだわり
自分で探すより問い合わせる方が早いことがあります
WEB非公開物件があるから
オーナー様のご希望により「WEBでは非公開」にしている物件があります。 それらはWEBでいくら検索しても見つかりません。 先ずは条件などお知らせ頂けましたら非公開物件含め ピッタリのオフィスをご提案させて頂きます。 無理なお勧めはしておりませんので、お気軽にお問い合わせください。
対面でのご相談も受け付けております
ご来店も歓迎です
オフィス移転は社内・社外ともに非公開に行われることが殆どです。そのためアットオフィスでは、基本的に訪問によるコンサルティングを行っておりますが、ご来店の相談も歓迎です。お一人おひとりに親身にご対応させて頂きたい為、要予約とさせて頂いております。ご来店の際は先ずは下記よりご予約下さい。
上野/台東/東上野エリアでヤワタ上野ビルに似た条件の物件
読込中...
ヤワタ上野ビルと同じ最寄駅の物件
読込中...
| 取扱様態 | 仲介 |
|---|---|
| 取扱会社 | 株式会社 アットオフィス |