※このサイトに記載がある賃貸条件は、敷金・保証金などの預かり金を除き、別途消費税がかかります。
物件情報
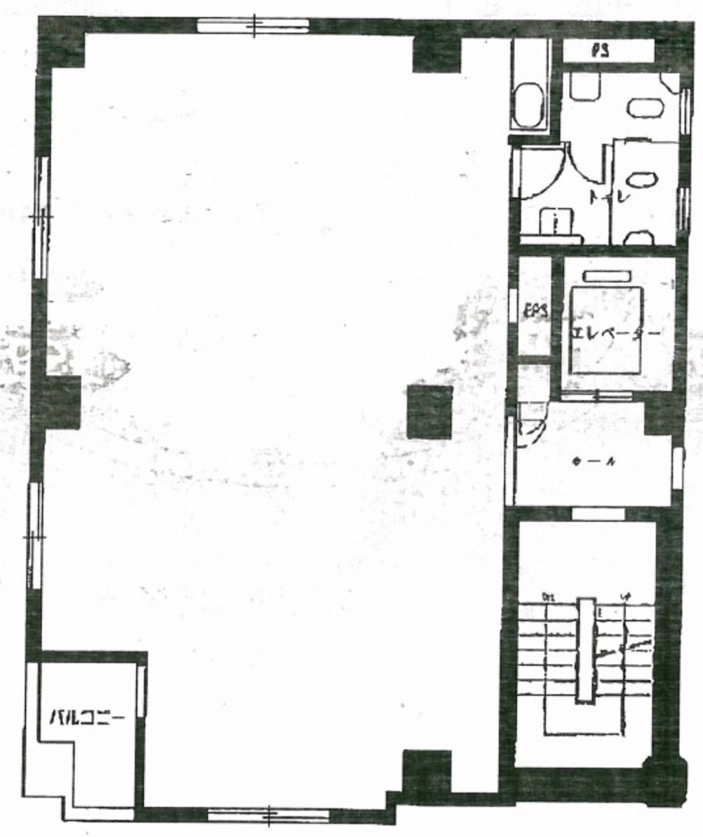
設備詳細
| 空調 | 個別空調 |
|---|---|
| トイレ | 男女別トイレ室内 |
| 床仕様 | OA対応床(フリーアクセス) |
| エレベータ | 1 基 |
| 駐車場設備 | - |
| その他 | 機械警備 / 光ファイバー |
福田ビルの賃貸オフィス・事務所に関するお問い合わせ
福田ビルについて
ビルのおすすめポイント 福田ビルは、窓面大きく採光が良くとれるオフィスビル神田駅から徒歩3分の駅近物件です。1981年に竣工の耐震オフィスビルです。機械警備完備。
福田ビルのこだわり
自分で探すより問い合わせる方が早いことがあります
WEB非公開物件があるから
オーナー様のご希望により「WEBでは非公開」にしている物件があります。 それらはWEBでいくら検索しても見つかりません。 先ずは条件などお知らせ頂けましたら非公開物件含め ピッタリのオフィスをご提案させて頂きます。 無理なお勧めはしておりませんので、お気軽にお問い合わせください。
WEBから条件問い合わせをする(無料)
対面でのご相談も受け付けております
ご来店も歓迎です
オフィス移転は社内・社外ともに非公開に行われることが殆どです。そのためアットオフィスでは、基本的に訪問によるコンサルティングを行っておりますが、ご来店の相談も歓迎です。お一人おひとりに親身にご対応させて頂きたい為、要予約とさせて頂いております。ご来店の際は先ずは下記よりご予約下さい。
来店予約をする
募集終了のテナント区画
| 階数 | 坪数 | 賃料 + 共益費 | 敷金/礼金敷金 礼金 | 検討 |
|---|---|---|---|---|
| 1階 | 35坪 (115.7m²) | 募集終了 | - | - |
| 2階 | 26.98坪 (89.2m²) | 募集終了 | - | - |
| 2階 | 11.56坪 (38.21m²) | 募集終了 | - | - |
| 3階 | 26.98坪 (89.19m²) | 募集終了 | - | - |
| 4階 | 26.98坪 (89.19m²) | 募集終了 | - | - |
| 6階 | 26.98坪 (89.2m²) | 募集終了 | - | - |
| 7階 | 26.98坪 (89.19m²) | 募集終了 | - | - |
| 8階 | 26.98坪 (89.19m²) | 募集終了 | - | - |
読込中...
神田/秋葉原エリアで福田ビルに似た条件の物件
読込中...
| 取扱様態 | 仲介 |
|---|---|
| 取扱会社 | 株式会社 アットオフィス |