新大宗道玄坂上ビルの賃料条件
| 階数 | 坪数 | 賃料 + 共益費 | 敷金/礼金敷金 礼金 | 検討 |
|---|---|---|---|---|
| 4階 | 41坪 (135.53m²) | 861,000円 (坪:21,000 円) | 8ヶ月 無8ヶ月/無 | |
| 8階 | 77坪 (254.54m²) | 1,617,000円 (坪:21,000 円) | 8ヶ月 無8ヶ月/無 |
※このサイトに記載がある賃貸条件は、敷金・保証金などの預かり金を除き、別途消費税がかかります。
物件情報
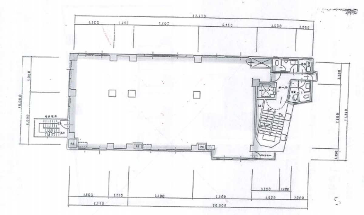
設備詳細
| 空調 | 個別空調 |
|---|---|
| トイレ | 男女別トイレ室外 |
| 床仕様 | - |
| エレベータ | 1 基 |
| 駐車場設備 | 近隣有 |
| その他 | 機械警備 / 管理人常駐 / 24時間利用可 / 居抜き |
新大宗道玄坂上ビルの賃貸オフィス・事務所に関するお問い合わせ
新大宗道玄坂上ビルについて
新大宗円山ビルは、東京都渋谷区円山町に位置し、道玄坂の賑わいを背景にした賃貸オフィス物件です。1975年に竣工されたこの建物は、地上11階、地下2階建てで、基準階のオフィス面積は約77坪となっております。この物件は、新耐震基準に準拠している前提での構造とはなっていない点に留意する必要がありますが、立地の良さと機能性を重視する企業には適した選択肢と言えるでしょう。 立地については、最寄り駅の神泉駅から徒歩約5分、または渋谷駅から徒歩約8分という、複数の交通手段にアクセスしやすい点が魅力です。特に渋谷駅は、JR線、東京メトロ、東急線、京王井の頭線と複数の路線が乗り入れており、都内はもちろん、都外へのアクセスも優れています。周辺には、渋谷マークシティをはじめとする商業施設や飲食店が豊富にあり、ビジネスパーソンにとって便利な環境が整っています。 設備面では、ビル内に機械式の駐車場を備えていることや、光回線がMDFまで引き込まれていることが挙げられます。これにより、テナントは高速インターネット接続の恩恵を受けることができ、ビジネスの効率化に貢献します。また、男女別トイレや、個別空調システムを搭載し、テナントの快適性を追求しています。エントランスのリニューアルや、機械警備と有人警備の併用など、安全性と利便性を兼ね備えた設備が整っています。 新大宗円山ビルは、その立地の良さ、充実した設備、そして様々なビジネスニーズに対応可能な柔軟性を持つオフィススペースとして、特にIT系企業をはじめとする様々な業界の企業に適しています。周辺環境の豊富な飲食店や商業施設の利便性を活かしながら、ビジネスの拠点としての機能を最大限に発揮することができるでしょう。新大宗円山ビルは、企業が成長を遂げるための理想的な環境を提供します。
新大宗道玄坂上ビルのこだわり
自分で探すより問い合わせる方が早いことがあります
WEB非公開物件があるから
オーナー様のご希望により「WEBでは非公開」にしている物件があります。 それらはWEBでいくら検索しても見つかりません。 先ずは条件などお知らせ頂けましたら非公開物件含め ピッタリのオフィスをご提案させて頂きます。 無理なお勧めはしておりませんので、お気軽にお問い合わせください。
対面でのご相談も受け付けております
ご来店も歓迎です
オフィス移転は社内・社外ともに非公開に行われることが殆どです。そのためアットオフィスでは、基本的に訪問によるコンサルティングを行っておりますが、ご来店の相談も歓迎です。お一人おひとりに親身にご対応させて頂きたい為、要予約とさせて頂いております。ご来店の際は先ずは下記よりご予約下さい。
募集終了のテナント区画
| 階数 | 坪数 | 賃料 + 共益費 | 敷金/礼金敷金 礼金 | 検討 |
|---|---|---|---|---|
| 3階 | 41坪 (135.53m²) | 募集終了 | - | - |
| 5階 | 22.7坪 (75.04m²) | 募集終了 | - | - |
| 6階 | 63.5坪 (209.92m²) | 募集終了 | - | - |
| 7階 | 77坪 (254.54m²) | 募集終了 | - | - |
| 7階 | 54.7坪 (180.82m²) | 募集終了 | - | - |
| 9階 | 77坪 (254.54m²) | 募集終了 | - | - |
| 11階 | 77坪 (254.55m²) | 募集終了 | - | - |
読込中...
渋谷エリアで新大宗道玄坂上ビルに似た条件の物件
読込中...
| 取扱様態 | 仲介 |
|---|---|
| 取扱会社 | 株式会社 アットオフィス |