ニシザワビル6階の賃貸情報
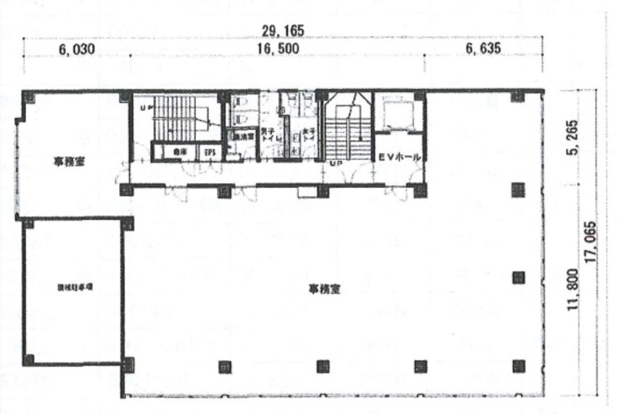
80.82 坪 (267.19m²)
※このサイトに記載がある賃貸条件は、敷金・保証金などの預かり金を除き、別途消費税がかかります。
ニシザワビルの建物概要
設備詳細
| 空調 | 個別空調 |
|---|---|
| トイレ | - |
| 床仕様 | - |
| エレベータ | 1 基 |
| 駐車場設備 | 機械式駐車場 |
| その他 | 機械警備 / 管理人常駐 / 光ファイバー / クリニック |
ニシザワビル6階の賃貸オフィス・事務所に関するお問い合わせ
ニシザワビルについて
ニシザワビルは、東京都千代田区内神田3丁目に位置する、事業者にとって理想的なオフィス賃貸物件であります。1971年に竣工し、2006年には安全性を一層高めるための耐震補強工事が施されたこのビルは、神田駅から徒歩1分という抜群の立地条件を誇ります。この立地は、3駅以上のアクセス可能性を提供し、ビジネスの機動性を大きく向上させます。 ニシザワビルは6階建てで、各フロアは約120坪の広さがあり、中~大規模の企業が利用するにも適しています。明るく開放的な雰囲気を持つオフィススペースは、2面採光により自然光がたっぷりと入り込みます。また、一部の設備はリニューアル済みで、現代的なオフィス環境を求める企業にとって、快適なワークスペースを提供します。 ビル内には月極駐車場があり、機械警備完備で24時間利用可能なセキュリティシステムを導入しており、入居企業とその従業員に安心と安全を提供します。さらに、管理人が常駐しており、ビルのメンテナンスや日々の運用に関する迅速な対応が期待できます。 ニシザワビル周辺には、飲食店やカラオケボックス、ビジネスホテルなどの多様な施設が立ち並び、ビジネスアフターの憩いの場も豊富に揃っています。このように、ビルの立地はビジネスだけでなく、生活の利便性も高いと言えるでしょう。 さらに、1階には薬局が設置されており、上層階にはクリニックも入居しているため、緊急時の医療対応も容易です。ビル内に貸会議室もあり、外部のクライアントとの打ち合わせやセミナー開催にも便利です。 結論として、ニシザワビルは、その立地の利便性、耐震補強による安全性、そして快適なオフィス環境を求める企業にとって、最適な選択となり得るでしょう。どのようなビジネスも支えるための総合的な機能とサービスを備え、企業の成長と発展をサポートします。
自分で探すより問い合わせる方が早いことがあります
WEB非公開物件があるから
オーナー様のご希望により「WEBでは非公開」にしている物件があります。 それらはWEBでいくら検索しても見つかりません。 先ずは条件などお知らせ頂けましたら非公開物件含め ピッタリのオフィスをご提案させて頂きます。 無理なお勧めはしておりませんので、お気軽にお問い合わせください。
対面でのご相談も受け付けております
ご来店も歓迎です
オフィス移転は社内・社外ともに非公開に行われることが殆どです。そのためアットオフィスでは、基本的に訪問によるコンサルティングを行っておりますが、ご来店の相談も歓迎です。お一人おひとりに親身にご対応させて頂きたい為、要予約とさせて頂いております。ご来店の際は先ずは下記よりご予約下さい。
神田/秋葉原エリアでニシザワビルに似た条件の物件
読込中...
ニシザワビルと同じ最寄駅の物件
読込中...
| 取扱様態 | 仲介 |
|---|---|
| 取扱会社 | 株式会社 アットオフィス |