※このサイトに記載がある賃貸条件は、敷金・保証金などの預かり金を除き、別途消費税がかかります。
物件情報
設備詳細
| 空調 | 個別空調 |
|---|---|
| トイレ | 男女別トイレ室外 |
| 床仕様 | - |
| エレベータ | 1 基 |
| 駐車場設備 | - |
| その他 | 新耐震基準 / 機械警備 / 24時間利用可 / クリニック / 1階の物件 |
ゆまにビルの賃貸オフィス・事務所に関するお問い合わせ
ゆまにビルについて
ゆまにビルは、東京都千代田区内神田2丁目に位置する、ビジネスの中心地である都心部における優れたオフィス賃貸物件です。このビルは、JR山手線をはじめとする複数の交通網が利用可能であり、東京のどこへ行くにも便利な立地条件を備えています。本稿では、ゆまにビルの特徴、立地、設備について詳しくご紹介します。 ### 特徴 ゆまにビルは、都心にある中小規模のオフィスビルでありながら、必要な機能を凝縮した設計が特色です。ビル内にはエレベーターが1機設置されており、スムーズな移動をサポートします。また、このビルは、中小企業やスタートアップ企業に適した広さのオフィススペースを提供しており、柔軟な働き方を求めるビジネスのニーズに応えることができます。 ### 立地 立地においては、ゆまにビルは非常に魅力的な条件を備えています。JR山手線をはじめ、複数の交通路線が近隣にあるため、東京都内はもちろんのこと、首都圏外へのアクセスも容易です。また、ビルは内神田2丁目に所在しており、周辺には飲食店やコンビニエンスストア、銀行など、ビジネスに必要な施設が充実しています。これにより、従業員の日常生活の利便性も高く、ワークライフバランスの向上にも寄与するでしょう。 ### 設備 ゆまにビルの設備は、テナントのニーズに合わせて最適化されています。エレベーターは1機設置されており、ビル内の移動をスムーズに行えます。また、セキュリティ面にも配慮がなされており、入退館管理システムなどが整っています。これにより、テナント企業は安心してビジネスを行うことができます。 ### 総括 ゆまにビルは、立地、設備、アクセスの良さを兼ね備えたオフィスビルです。特に、交通の利便性は東京都心でビジネスを行う上で非常に重要な要素であり、ゆまにビルはその点で大きなアドバンテージを持っています。中小企業やスタートアップ企業にとって、働きやすい環境を提供することで、ビジネスの成功に貢献できるでしょう。ゆまにビルは、これからも多くの企業にとって魅力的なオフィススペースとしての地位を確立していくことでしょう。
ゆまにビルのこだわり
自分で探すより問い合わせる方が早いことがあります
WEB非公開物件があるから
オーナー様のご希望により「WEBでは非公開」にしている物件があります。 それらはWEBでいくら検索しても見つかりません。 先ずは条件などお知らせ頂けましたら非公開物件含め ピッタリのオフィスをご提案させて頂きます。 無理なお勧めはしておりませんので、お気軽にお問い合わせください。
対面でのご相談も受け付けております
ご来店も歓迎です
オフィス移転は社内・社外ともに非公開に行われることが殆どです。そのためアットオフィスでは、基本的に訪問によるコンサルティングを行っておりますが、ご来店の相談も歓迎です。お一人おひとりに親身にご対応させて頂きたい為、要予約とさせて頂いております。ご来店の際は先ずは下記よりご予約下さい。
募集終了のテナント区画
| 階数 | 坪数 | 賃料 + 共益費 | 敷金/礼金敷金 礼金 | 検討 |
|---|---|---|---|---|
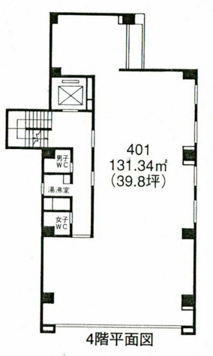
| 4階 | 39.8坪 (131.34m²) | 募集終了 | - | - |
| 5階 | 29.4坪 (97.2m²) | 募集終了 | - | - |
読込中...
神田/秋葉原エリアでゆまにビルに似た条件の物件
読込中...
| 取扱様態 | 仲介 |
|---|---|
| 取扱会社 | 株式会社 アットオフィス |