亀田第1ビルの賃料条件
| 階数 | 坪数 | 賃料 + 共益費 | 敷金/礼金敷金 礼金 | 検討 |
|---|---|---|---|---|
| 5階 | 62.18坪 (205.57m²) | 1,306,200円 (坪:21,006 円) | 10ヶ月 無10ヶ月/無 | |
| 6階 | 62.18坪 (205.57m²) | 1,306,200円 (坪:21,006 円) | 10ヶ月 無10ヶ月/無 |
※このサイトに記載がある賃貸条件は、敷金・保証金などの預かり金を除き、別途消費税がかかります。
物件情報
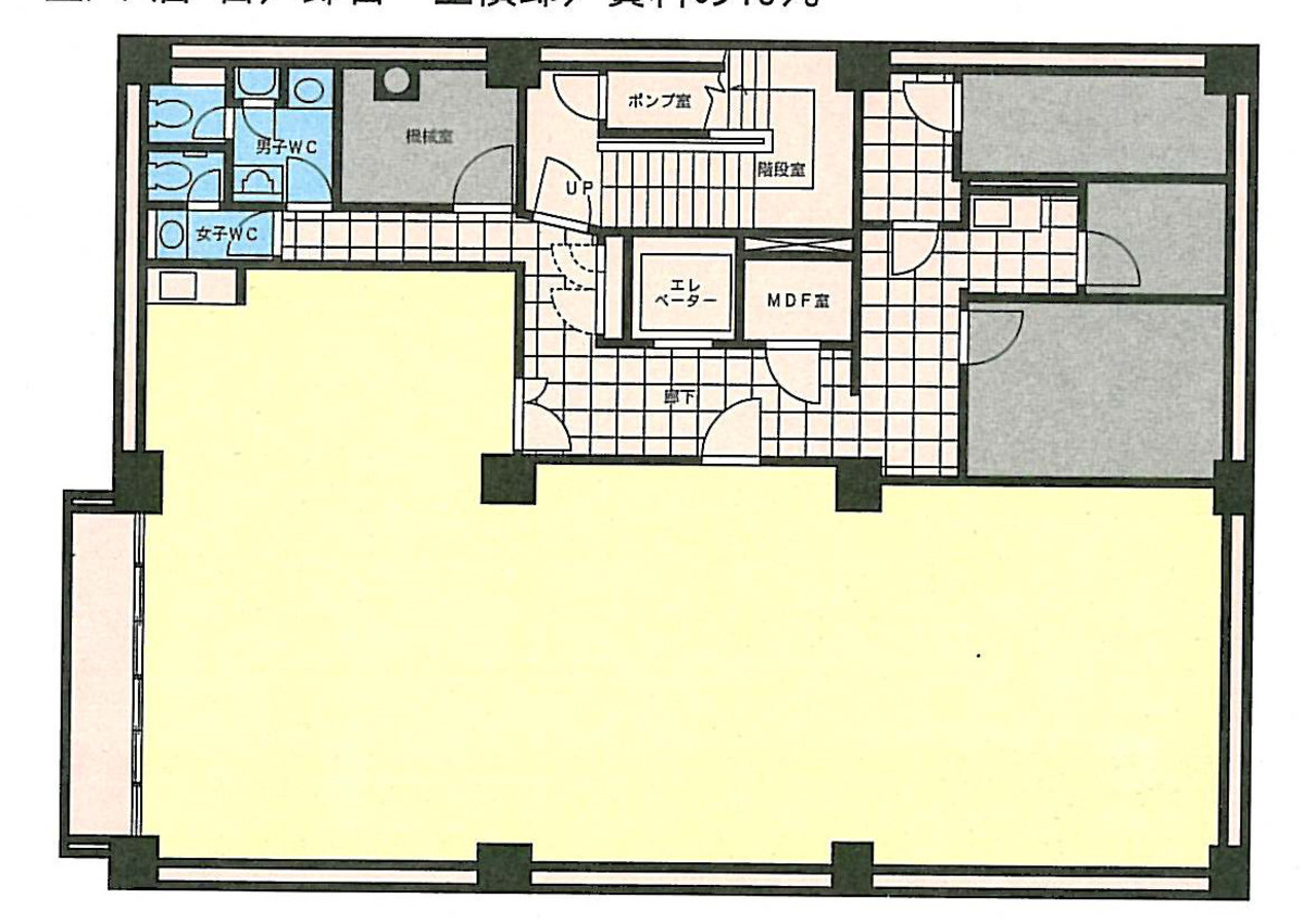
設備詳細
| 空調 | 個別空調 |
|---|---|
| トイレ | 男女別トイレ室内 |
| 床仕様 | - |
| エレベータ | 2 基 |
| 駐車場設備 | 空有 |
| その他 | - |
亀田第1ビルの賃貸オフィス・事務所に関するお問い合わせ
亀田第1ビルについて
亀田第1ビルは、千代田区内神田2丁目に位置し、京浜東北線・東北線・中央線「神田駅」から徒歩4分の場所にあります。ビジネスエリアに所在しており、周囲にはオフィスや商業施設が点在しています。建物は地上9階、地下1階構造となっており、多層にわたるフロア構成が特徴です。エレベーターは2基設置されており、各階への移動がスムーズに行えます。複数のフロアを活用することが想定される法人利用においても、動線が確保しやすい点がポイントです。複数路線が利用できる神田駅から徒歩圏内のため、各方面から来訪される方々にもアクセスしやすい立地となっています。事業拠点やサテライトオフィスとしての利用を検討されている法人様にご案内しております。詳細はお問い合わせください。
亀田第1ビルのこだわり
自分で探すより問い合わせる方が早いことがあります
WEB非公開物件があるから
オーナー様のご希望により「WEBでは非公開」にしている物件があります。 それらはWEBでいくら検索しても見つかりません。 先ずは条件などお知らせ頂けましたら非公開物件含め ピッタリのオフィスをご提案させて頂きます。 無理なお勧めはしておりませんので、お気軽にお問い合わせください。
対面でのご相談も受け付けております
ご来店も歓迎です
オフィス移転は社内・社外ともに非公開に行われることが殆どです。そのためアットオフィスでは、基本的に訪問によるコンサルティングを行っておりますが、ご来店の相談も歓迎です。お一人おひとりに親身にご対応させて頂きたい為、要予約とさせて頂いております。ご来店の際は先ずは下記よりご予約下さい。
募集終了のテナント区画
| 階数 | 坪数 | 賃料 + 共益費 | 敷金/礼金敷金 礼金 | 検討 |
|---|---|---|---|---|
| B1階 | 43.07坪 (142.4m²) | 募集終了 | - | - |
| 1階 | 26.73坪 (88.36m²) | 募集終了 | - | - |
| 2階 | 62.2坪 (205.62m²) | 募集終了 | - | - |
| 3階 | 12.02坪 (39.73m²) | 募集終了 | - | - |
| 4階 | 30坪 (99.17m²) | 募集終了 | - | - |
| 7階 | 62.2坪 (205.61m²) | 募集終了 | - | - |
| 8階 | 66.2坪 (205.62m²) | 募集終了 | - | - |
読込中...
神田/秋葉原エリアで亀田第1ビルに似た条件の物件
読込中...
| 取扱様態 | 仲介 |
|---|---|
| 取扱会社 | 株式会社 アットオフィス |