※このサイトに記載がある賃貸条件は、敷金・保証金などの預かり金を除き、別途消費税がかかります。
物件情報
設備詳細
| 空調 | 個別空調 |
|---|---|
| トイレ | - |
| 床仕様 | OA対応床(フリーアクセス) |
| エレベータ | 2 基 |
| 駐車場設備 | - |
| その他 | 機械警備 / 24時間利用可 / 光ファイバー / 新耐震基準 |
小川町メセナビルの賃貸オフィス・事務所に関するお問い合わせ
小川町メセナビルについて
小川町メセナビルは、東京都千代田区小川町に位置する、1993年竣工のハイグレードオフィスビルです。このビルは、そのガラス張りの外観と石張りのエントランスにより、重厚感とモダンなスタイリッシュさを兼ね備えています。小川町・淡路町駅から徒歩1分という抜群のアクセスの良さに加え、3駅以上の利用が可能な立地条件は、ビジネスの機動性を高めるために最適な環境を提供します。 立地について、本ビルは本郷通りに面しており、神田駅からも徒歩圏内であり、都心へのアクセスの良さは勿論、周辺施設との連携も容易です。この地の利を最大限に活かせるビルであるため、企業のブランドイメージ向上にも寄与するでしょう。 特に注目すべきは、ビルの耐震性能です。1993年の竣工以来、耐震オフィスビルとしてその安全性が高く評価されています。地震リスクが常に付きまとう日本において、このような耐震性能は企業がオフィス選びにおいて重視するべき非常に大きな要素です。 設備面では、24時間利用可能な点が特筆されます。これにより、ビジネスのグローバル化に伴う様々なタイムゾーンでの作業が要求される現代において、柔軟な業務遂行が可能となります。また、男女別トイレ、2機のエレベーター、機械警備完備といった設備も、ビル内での快適なオフィスライフをサポートします。 ビル内のエレベーターホールに飾られた彫像などは、ビルに一歩足を踏み入れた瞬間から、訪れる人々に清潔感と安心感を与えます。このような細部にわたる配慮は、ビルを訪れるクライアントに対しても好印象を与えることでしょう。 小川町メセナビルは、その立地の良さ、安全性、快適な設備を兼ね備えたハイグレードオフィスビルとして、ビジネスの成功と企業イメージの向上に貢献すること間違いなしです。本ビルでのオフィス選びは、企業の将来像を一層鮮明にし、ビジネスの可能性を広げる重要な一歩となるでしょう。
小川町メセナビルのこだわり
自分で探すより問い合わせる方が早いことがあります
WEB非公開物件があるから
オーナー様のご希望により「WEBでは非公開」にしている物件があります。 それらはWEBでいくら検索しても見つかりません。 先ずは条件などお知らせ頂けましたら非公開物件含め ピッタリのオフィスをご提案させて頂きます。 無理なお勧めはしておりませんので、お気軽にお問い合わせください。
対面でのご相談も受け付けております
ご来店も歓迎です
オフィス移転は社内・社外ともに非公開に行われることが殆どです。そのためアットオフィスでは、基本的に訪問によるコンサルティングを行っておりますが、ご来店の相談も歓迎です。お一人おひとりに親身にご対応させて頂きたい為、要予約とさせて頂いております。ご来店の際は先ずは下記よりご予約下さい。
募集終了のテナント区画
| 階数 | 坪数 | 賃料 + 共益費 | 敷金/礼金敷金 礼金 | 検討 |
|---|---|---|---|---|
| 2階 | 50坪 (165.28m²) | 募集終了 | - | - |
| 3階 | 53.44坪 (176.66m²) | 募集終了 | - | - |
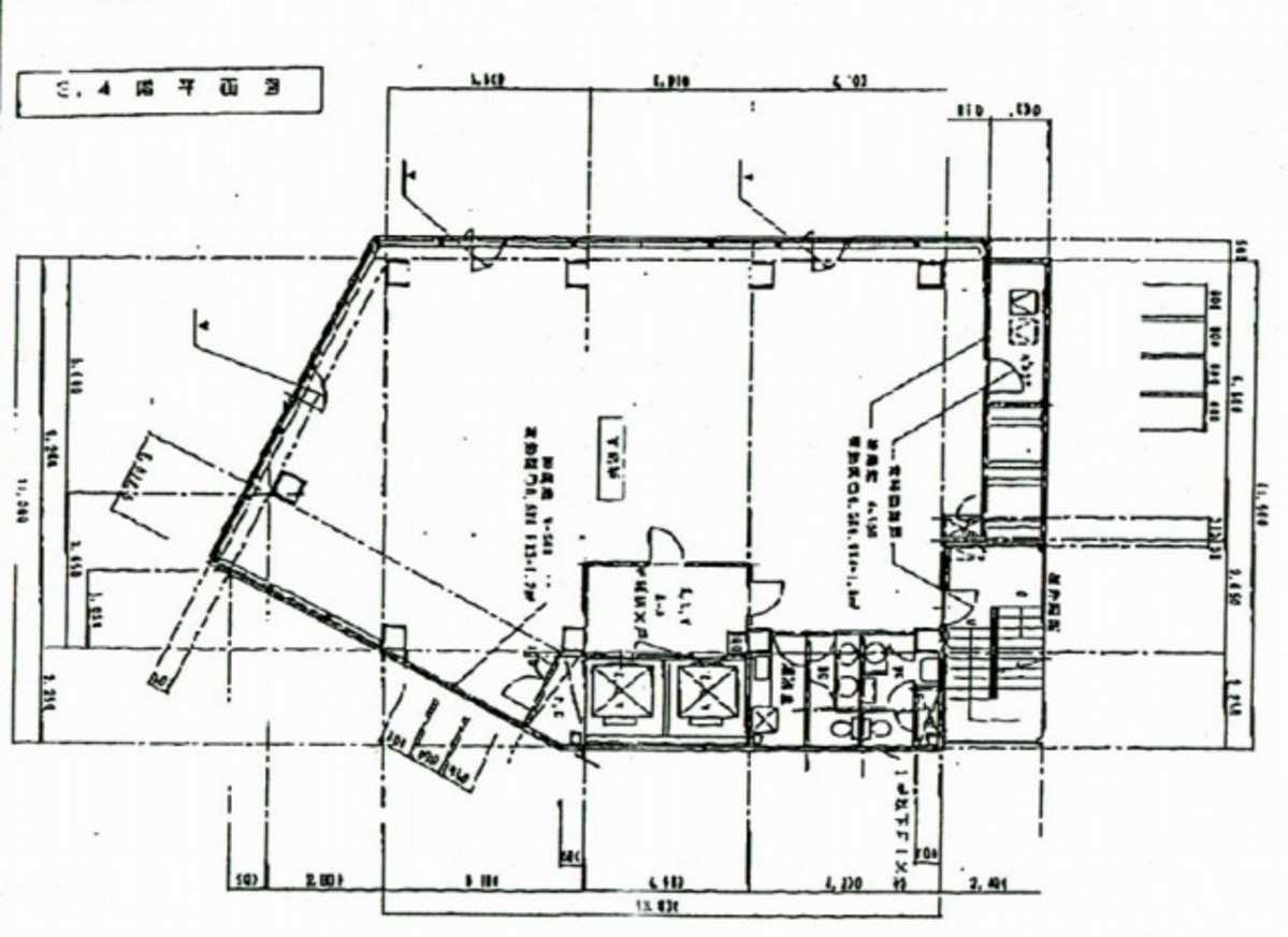
| 4階 | 53.44坪 (176.67m²) | 募集終了 | - | - |
| 5階 | 53.44坪 (176.66m²) | 募集終了 | - | - |
| 6階 | 53.44坪 (176.66m²) | 募集終了 | - | - |
| 7階 | 53.44坪 (176.66m²) | 募集終了 | - | - |
| 8階 | 53.44坪 (176.67m²) | 募集終了 | - | - |
| 9階 | 53.44坪 (176.66m²) | 募集終了 | - | - |
| 10階 | 41.07坪 (135.77m²) | 募集終了 | - | - |
読込中...
神田/秋葉原エリアで小川町メセナビルに似た条件の物件
読込中...
| 取扱様態 | 仲介 |
|---|---|
| 取扱会社 | 株式会社 アットオフィス |