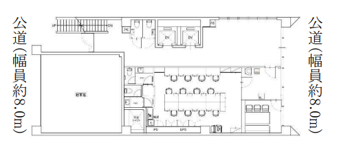
北大手町スクエア1階の賃貸情報
24.32 坪 (80.42m²)
437,760円 (坪:18,000 円)
※このサイトに記載がある賃貸条件は、敷金・保証金などの預かり金を除き、別途消費税がかかります。
北大手町スクエアの建物概要
設備詳細
| 空調 | 個別空調 |
|---|---|
| トイレ | 男女共用トイレ・室内 |
| 床仕様 | OA対応床(フリーアクセス) |
| エレベータ | 2 基 |
| 駐車場設備 | - |
| その他 | オートロック / 機械警備 / 24時間利用可 / 新耐震基準 / 1階の物件 |
北大手町スクエア1階の賃貸オフィス・事務所に関するお問い合わせ
北大手町スクエアについて
北大手町スクエアは、東京都千代田区内神田に位置する賃貸オフィスビルで、1996年に竣工しました。2020年にはエントランスを中心にリニューアル工事が施され、現代的で洗練されたデザインが魅力です。このビルは地上8階・地下1階建てで、最新の新耐震基準をクリアしており、安全性と快適性が両立しています。 ビル全体は機械警備システムを採用しており、セキュリティ面でも安心です。さらに、オフィスは24時間利用可能で、フレキシブルな働き方をサポートします。各フロアは約60坪の広さを持ち、1フロア1テナント形式のため、プライベート性と集中力を保ちながら働くことができます。個別空調やOAフロア、男女別のトイレも完備され、快適な作業環境が整っています。 アクセスも非常に良好で、JR「神田駅」から徒歩5分、東京メトロ「大手町駅」からも徒歩5分という利便性は、通勤のストレスを軽減します。さらに小川町駅、淡路町駅、新御茶ノ水駅も徒歩圏内にあり、多彩な交通手段を利用できます。 周辺には多くのオフィスビルが立ち並び、飲食店も点在しているため、ランチや打ち合わせの場としても便利です。駐車場施設も用意されており、車でのアクセスにも対応可能です。北大手町スクエアは、利便性と快適性を兼ね備えた理想的なオフィス環境を提供します。
その他の区画
| 階数 | 坪数 | 賃料 + 共益費 | 敷金/礼金敷金 礼金 | 検討 |
|---|---|---|---|---|
| 6階 | 63.38坪 (209.52m²) | 1,521,120円 (坪:24,000 円) | 7ヶ月 無7ヶ月/無 | |
| 8階 | 42.64坪 (140.95m²) | 1,066,000円 (坪:25,000 円) | 6ヶ月 無6ヶ月/無 |
自分で探すより問い合わせる方が早いことがあります
WEB非公開物件があるから
オーナー様のご希望により「WEBでは非公開」にしている物件があります。 それらはWEBでいくら検索しても見つかりません。 先ずは条件などお知らせ頂けましたら非公開物件含め ピッタリのオフィスをご提案させて頂きます。 無理なお勧めはしておりませんので、お気軽にお問い合わせください。
対面でのご相談も受け付けております
ご来店も歓迎です
オフィス移転は社内・社外ともに非公開に行われることが殆どです。そのためアットオフィスでは、基本的に訪問によるコンサルティングを行っておりますが、ご来店の相談も歓迎です。お一人おひとりに親身にご対応させて頂きたい為、要予約とさせて頂いております。ご来店の際は先ずは下記よりご予約下さい。
神田/秋葉原エリアで北大手町スクエアに似た条件の物件
読込中...
北大手町スクエアと同じ最寄駅の物件
読込中...
| 取扱様態 | 仲介 |
|---|---|
| 取扱会社 | 株式会社 アットオフィス |